間取り図
なら
仲介手数料 30% OFF
マンションは、“どこから買うか”で
支払う費用が変わります
仕組みを詳しく見る
月々の支払い目安を見る
※ローンの⽬安は、頭⾦ゼロ、借⼊年数35年、都市銀⾏・変動⾦利0.595%(優遇利⽤を想定。) 審査内容により、融資の⼀部または全部をご利⽤いただけない場合がございます。予めご了承ください。
間取り図
PARK VILLAGEタワー棟42F
編集部が実際に現地を訪れ、見たもの・感じたことをレポート。
図面だけでは伝わらない"リアルな空気感"をお届けします。
更新日:2026/01/23
更新日:2026/01/23
視界のすべてが、特等席

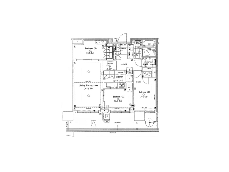
42階部分に位置するこちらのお部屋は、専有面積56.41㎡の2LDK+SIC。コンパクトすぎず、かといって持て余すこともない2人暮らしに最適なサイズ感が魅力です。ペットと暮らせる点も嬉しく、日々の生活に癒しをプラス。築浅ならではの美しい室内は、新築同様の気持ちよさで暮らしを始められそうです。

メインルームはホワイトクロスと木目調フローリングを組み合わせた、ナチュラルで洗練された内装。シンプルだからこそ北欧・モダン・ヴィンテージなど、どんな家具テイストもすっと馴染みます。無駄のない整った形状で、レイアウトも自由自在。北向きでありながらもやわらかな光が差し込み、落ち着いた時間が流れる空間に。

約3.1帖のキッチンスペースはゆとりを感じられる設計。対面式なので調理をしながら会話が弾み、暮らしの中心として活躍します。グリル付き3口コンロに加え、広めのワークトップで作業効率も良好。背面には大型カップボードを備えており、食器や家電の収納・配置もすっきりまとまりますよ。

高層42階から望む景色は、日常を忘れさせてくれる贅沢な眺め。晴れた日には澄んだ空と都心の街並みが視界いっぱいに広がり、夜には無数の灯りが織りなす夜景がロマンティックな雰囲気を演出します。昼と夜、まったく異なる表情を楽しめるのは高層階住戸ならではの特権ですね♡

玄関には大容量のシューズインクロークを完備。スニーカーやブーツをたくさんお持ちの方でも、余裕をもって収納できます。靴以外にも、折りたたみ傘やアウトドア用品などをまとめてしまえるのが嬉しいポイント。玄関まわりを常にすっきり保てるため、来客時の印象も良さそう。

サニタリールームには、洗面化粧台・洗濯機置き場・バスルームを集約。家事動線が短く効率よく動けるレイアウトです。洗面化粧台は収納が豊富で、洗面ボウル横には作業スペースも確保。忙しい朝でもストレスを感じにくい空間です。

上品なグレーでまとめられたバスルームは、1日の疲れを癒す場所。追い焚き機能付きで、好きなタイミングに快適な湯温をキープ可能。ワンタッチ操作で調整できるため、長風呂派の方にもぴったりです。もちろん浴室乾燥機も搭載し、天候を気にせず洗濯できるのも安心。

2つの洋室はそれぞれ約6.0帖と4.5帖。どちらにも収納があり、用途に合わせた使い分けが可能です。コンパクトな約4.5帖の洋室は、天井高のおかげで閉塞感が少なく、書斎やリモートワーク用のお部屋としても活躍します。
その他の室内・設備写真
▲ このお部屋の雰囲気がお好みの方へ
東京グラウンド編集部の住まいレビュー
都心からほどよい距離を保ちながら、海と空の開放感を存分に味わえるベイエリアに佇むのが『HARUMI FLAG SKY DUO TOWER』。街を歩くと視界の先に広がる水辺の景色が印象的で、都市にいながらもリゾートのような空気感が漂います。広大な敷地内にはコンビニや飲食店、コインランドリーなど日常使いに便利な施設が点在。生活動線がコンパクトにまとまっており、忙しい日々の中でも無駄なくスマートに暮らせそうです。レンタサイクルポートも随所に設けられているため、敷地内の移動やちょっとした外出も軽快◎整えられた街路や共用空間からは、大規模開発ならではの安心感と快適さが伝わってきました。
今回ご紹介するのは高層階42階部分に位置する一室。エレベーターを上がるたびに、日常から少しずつ離れていくような特別感がありました。間取りは専有面積は56.41㎡の2LDK+SICで、2人暮らしにちょうど良いゆとりあるサイズ感です。ペットの飼育も可能なので、大切な家族の一員とともに新生活をスタートできるのも嬉しいポイント。2025年8月築のため、室内はまだ新築のような清潔感が保たれています。扉を開けるとシンプルで洗練された室内空間が広がり、窓の先には空とビル群、海が溶け合うダイナミックな景色。時間帯によって表情を変える眺望は、この住まいで暮らす大きな魅力のひとつです✧
洗練された住空間が揃う一邸。ぜひ気になる方はお気軽にお問い合わせください。 ライター:hana【26A22】
この物件の毎月の支払いイメージを
試算してみませんか?
頭金や返済年数などを入力するだけで毎月の合計支払額をシミュレーションできます。
13,100
毎月の支払い予想シミュレーション
※試算結果はあくまで目安であり、実際の借り入れを保証するものではありません。
※物件によっては上記以外の別途費用が発生する場合もございます。詳しくはお問い合わせくださいませ。
住戸概要
間取り図
なら
仲介手数料 30% OFF
マンションは、“どこから買うか”で
支払う費用が変わります
仕組みを詳しく見る
月々の支払い目安を見る
※ローンの⽬安は、頭⾦ゼロ、借⼊年数35年、都市銀⾏・変動⾦利0.595%(優遇利⽤を想定。) 審査内容により、融資の⼀部または全部をご利⽤いただけない場合がございます。予めご了承ください。
間取り図
SUN VILLAGE タワー棟48F
この物件の毎月の支払いイメージを
試算してみませんか?
頭金や返済年数などを入力するだけで毎月の合計支払額をシミュレーションできます。
34,990
毎月の支払い予想シミュレーション
※試算結果はあくまで目安であり、実際の借り入れを保証するものではありません。
※物件によっては上記以外の別途費用が発生する場合もございます。詳しくはお問い合わせくださいませ。
住戸概要
間取り図
なら
仲介手数料 30% OFF
マンションは、“どこから買うか”で
支払う費用が変わります
仕組みを詳しく見る
月々の支払い目安を見る
※ローンの⽬安は、頭⾦ゼロ、借⼊年数35年、都市銀⾏・変動⾦利0.595%(優遇利⽤を想定。) 審査内容により、融資の⼀部または全部をご利⽤いただけない場合がございます。予めご了承ください。
間取り図
PARK VILLAGEタワー棟33F
この物件の毎月の支払いイメージを
試算してみませんか?
頭金や返済年数などを入力するだけで毎月の合計支払額をシミュレーションできます。
17,300
毎月の支払い予想シミュレーション
※試算結果はあくまで目安であり、実際の借り入れを保証するものではありません。
※物件によっては上記以外の別途費用が発生する場合もございます。詳しくはお問い合わせくださいませ。
住戸概要
[新しい気持ちで] HARUMI FLAG SKY DUO TOWER
勝どき駅
徒歩14分

勝どき駅から徒歩14分。『HARUMI FLAG SKY DUO TOWER』は、3方を海に囲まれた立地ならではの圧倒的な開放感が魅力の分譲区街です。視界を遮るものが少なく、空と海が溶け合うダイナミックな景色が日常の一部に。いくつもの棟が連なりながら一体感のある街並みを形成しており、都市にいながらもリゾートのような広がりを感じさせてくれます。

『HARUMI FLAG SKY DUO TOWER』の魅力は、住戸だけにとどまりません。敷地内にはコンビニや飲食店、コインランドリーが入り、暮らしの動線がコンパクトにまとまっています。さらに51種類もの共用施設がライフスタイルを豊かに彩り、日々の過ごし方に選択肢をプラス。レンタサイクルポートも各所に設けられており、広大な敷地を軽やかに移動できるのも嬉しいポイント。

約18haという広大な敷地には、マルチモビリティステーションや2つの公園、新設される小中学校などが整備される予定。住宅だけでなく、交通・商業・公園・教育・保育といった暮らしに必要な機能が一体となった街づくりが進められています。まさに「ALL IN TOWN」という言葉がふさわしい、新しい都市生活の形を体現するエリアです。

敷地内には防犯カメラが随所に設置され、セキュリティ性の高さが随所に感じられました。エレベーターは複数基稼働しており、移動もスムーズ。外階段と内階段の両方が確保されているため、非常時にはお部屋に近い階段から速やかに外へ避難できる点も安心材料。
その他の共用部・設備写真
物件概要
設備・特徴
エレベーター オートロック 宅配BOX 防犯カメラ 24時間有人管理24時間ゴミ出し可ゲストルームキッズルーム(託児所)スカイラウンジサニーラウンジパーティールームフロントサービス 新耐震基準適合 免震構造 制震構造
勝どき駅は都営大江戸線が利用でき、新宿・六本木・汐留といった都心主要エリアへダイレクトにアクセス可能。通勤や通学はもちろん、仕事終わりの外食や週末のお出かけもスムーズにこなせる利便性の高さが魅力です。銀座エリアへもほど近くタクシーやバス、自転車など移動手段の選択肢が多いのも嬉しいポイント。飲食店も豊富で、気軽に立ち寄れるカフェからしっかり食事を楽しめるレストランまで幅広く揃っています。再開発が進む一方で、運河や公園といった水と緑を感じられるスポットも多く、都市的な便利さと落ち着きを兼ね揃えた住環境。都心に近く、快適でバランスの取れた暮らしを求める方におすすめしたいエリアです。
アクセス
都営大江戸線 『勝どき』駅 徒歩14分
東京BRT 『晴海ふ頭公園』停 徒歩2分
買い物
学区
※掲載している学区情報は、記事制作時点での参考情報です。
区域によっては学校の指定が異なる場合もありますので、詳細は必ずご確認ください。
その他
こちらの物件は弊社運営の別サイトでもご紹介中♪
HARUMI FLAG Park Villageもご紹介中
HARUMI FLAG Sun Villageもご紹介中
HARUMI FLAG Sea Villageもご紹介中