間取り図
価格改定
なら
仲介手数料 無料!
追加費用も一切なし
マンションは、“どこから買うか”で
支払う費用が変わります
仕組みを詳しく見る
月々の支払い目安を見る
※ローンの⽬安は、頭⾦ゼロ、借⼊年数35年、都市銀⾏・変動⾦利0.595%(優遇利⽤を想定。) 審査内容により、融資の⼀部または全部をご利⽤いただけない場合がございます。予めご了承ください。
間取り図
407号室
編集部が実際に現地を訪れ、見たもの・感じたことをレポート。
図面だけでは伝わらない"リアルな空気感"をお届けします。
更新日:2026/04/04
更新日:2026/04/04
ナチュラル×ブラックが映える

4階フロアの角部屋という恵まれたポジションに誕生した、リノベーションが完了した1LDK。2025年10月に生まれ変わった室内は、自然素材を思わせる色合いでまとめられ、空間全体にのびやかな印象が広がります。光と風を感じながら過ごせる開放的な住まいで、ペットとともに暮らせるのも嬉しいポイント✦

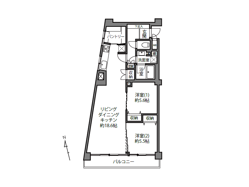
約12.6帖のリビングダイニングキッチンは、お家で過ごす時間の中心となるゆとりある空間。ホワイトを基調とした内装が自然光をやさしく受け止め、フローリングの木目がほどよい温かみを添えています。ソファとローテーブルを置いてくつろぎの場をつくり、窓際には観葉植物やワークデスクを配置するのも良さそう。

キッチンスペースには、開放感のあるペニンシュラタイプを採用。グレーカラーを基調としたデザインが空間に落ち着きをもたらし、LDK全体を洗練された印象にまとめています。食洗機とグリル付き3口コンロを備え、調理から後片付けまでをスムーズにこなせる、実用性の高いキッチンですよ◎

洋室にはオープンタイプのウォークインクローゼットを設置。視線が抜ける設計のため圧迫感が少なく、衣類や小物を効率よく収納できます。その隣にはカウンターを設け、収納と作業スペースを一体で考えた、実用性の高いレイアウトに✦

玄関にはゆとりある土間スペースを確保し、住まいの第一印象に余白をもたせた設計。L字型のシューズインクローゼットを備え、収納量を確保しながらも動線をすっきりとまとめています。お気に入りのシューズや小物を“見せる”収納としてお楽しみいただけますよ♩

リビングダイニングに隣接する洋室は、約6.1帖の使いやすい広さ。ブラックフレームの室内窓を採用することで、空間にメリハリを与えながらリビングとの一体感を演出しています。さらにバルコニーからの自然光が室内窓を通して洋室にも届き、明るい印象☀

パウダールームには、洗面化粧台と洗濯機置き場、バスルームをまとめた効率的なレイアウトを採用。水まわりの動線がコンパクトに整理され、日々の支度や家事をスムーズにこなせます。洗面化粧台は3面鏡仕様で収納力も十分。フロート施工により足元がすっきりと見え、空間全体に軽やかで洗練された印象を与えていますよ。

バスルームは、木目調デザインを取り入れた落ち着きのある空間。視覚的にも温もりを感じさせ、日々のバスタイムを穏やかなひと時へと導いてくれます。追い焚き機能と浴室乾燥機を備え、時間帯や天候を問わず快適にご使用いただけますよ◎
その他の室内・設備写真
▲ このお部屋の雰囲気がお好みの方へ
東京グラウンド編集部の住まいレビュー
赤坂六丁目、落ち着いた街並みの一角に佇む『メゾン赤坂(赤坂6丁目)』。その4階に位置する1LDKは、扉を開けた瞬間から丁寧に整えられた空気感が伝わってきました。。2025年10月にフルリノベーションを終えたばかりの室内は、細部まで手入れが行き届き、新築さながらの清潔感。これから始まる暮らしを、まっさらな気持ちで迎えられそうです。室内でまず目を引くのは、ミディアムブラウンのフローリングが醸し出す穏やかな温もりと、空間を引き締めるブラックフレームの室内窓。自然体でありながら洗練も感じさせ、家具やアートを選ぶ楽しみが広がります。リビングと洋室のつながりも心地よく、オンとオフを緩やかに切り替えられる間取り◎洋室には扉のないオープンタイプのウォークインクローゼットを備え、動線は驚くほどスムーズ。朝の身支度もストレスなく進みそうです。さらに玄関にはL字型のオープンシェルフを設置。収納力だけでなく、暮らしぶりがさりげなく表現できる余白が用意されています。北西向きではありますが、角部屋ならではの窓の多さが光をやわらかく取り込み、日中は明るく爽やかな印象。ぜひ現地で、この空気感をお確かめくださいね♩ ライター:mao【25L15】
この物件の毎月の支払いイメージを
試算してみませんか?
頭金や返済年数などを入力するだけで毎月の合計支払額をシミュレーションできます。
6,480
毎月の支払い予想シミュレーション
※試算結果はあくまで目安であり、実際の借り入れを保証するものではありません。
※物件によっては上記以外の別途費用が発生する場合もございます。詳しくはお問い合わせくださいませ。
住戸概要
間取り図
なら
仲介手数料 50% OFF
マンションは、“どこから買うか”で
支払う費用が変わります
仕組みを詳しく見る
月々の支払い目安を見る
※ローンの⽬安は、頭⾦ゼロ、借⼊年数35年、都市銀⾏・変動⾦利0.595%(優遇利⽤を想定。) 審査内容により、融資の⼀部または全部をご利⽤いただけない場合がございます。予めご了承ください。
間取り図
2F
この物件の毎月の支払いイメージを
試算してみませんか?
頭金や返済年数などを入力するだけで毎月の合計支払額をシミュレーションできます。
10,990
毎月の支払い予想シミュレーション
※試算結果はあくまで目安であり、実際の借り入れを保証するものではありません。
※物件によっては上記以外の別途費用が発生する場合もございます。詳しくはお問い合わせくださいませ。
住戸概要
[ナチュラル×ブラック] メゾン赤坂(赤坂6丁目)
赤坂駅
徒歩7分

こちらの建物が『メゾン赤坂』です。ちょっぴりレトロな総戸数42戸のマンション♪築年数は経過していますが、過去に大規模修繕工事を実施されているので、清潔感があります✧

アプローチはフラット仕様で、車椅子やベビーカーなど、どなたでも出入りがしやすい造りです♪

エントランスは広々としています✧管理人室や防犯カメラが完備されているので防犯面もとっても安心です◎

掃除が行き届いた共用部から、管理体制の良さを感じます。柔らかな陽差しと清々しい風を感じながら廊下を進み、お部屋へと向かいましょう。
その他の共用部・設備写真
物件概要
設備・特徴
エレベーター トランクルーム 防犯カメラ 24時間ゴミ出し可ランドリールーム 長期修繕計画有
『メゾン赤坂』は六本木駅から徒歩9分の場所にあります。「東京ミッドタウン」や「六本木ヒルズ」などの複合施設が建ち、たくさんの方で賑わっています。買い物や外食には困りませんね♡最寄り駅は赤坂駅で徒歩6分の距離。アクセス良好でどこに行くにもスムーズなので、自然とアクティブに過ごせそうです♪『メゾン赤坂』は「赤坂氷川神社」のすぐそばに♡自然を感じられるのが嬉しいですね。
アクセス
東京メトロ千代田線 『赤坂』駅 徒歩7分
東京メトロ南北線 『六本木一丁目』駅 徒歩8分
東京メトロ日比谷線/都営大江戸線 『六本木』駅 徒歩10分
東京メトロ銀座線/南北線 『溜池山王』駅 徒歩11分
買い物
学区
※掲載している学区情報は、記事制作時点での参考情報です。
区域によっては学校の指定が異なる場合もありますので、詳細は必ずご確認ください。
その他
こちらの物件は弊社運営の別サイトでもご紹介中♪
メゾン赤坂(赤坂4丁目)もご紹介中