間取り図
こちらの物件の仲介手数料は
個別にご案内いたします。
詳細をご希望の方は
お気軽にご相談ください。
お問い合わせはこちら
月々の支払い目安を見る
※ローンの⽬安は、頭⾦ゼロ、借⼊年数35年、都市銀⾏・変動⾦利0.595%(優遇利⽤を想定。) 審査内容により、融資の⼀部または全部をご利⽤いただけない場合がございます。予めご了承ください。
間取り図
806号室
編集部が実際に現地を訪れ、見たもの・感じたことをレポート。
図面だけでは伝わらない"リアルな空気感"をお届けします。
更新日:2026/04/05
更新日:2026/04/05
便利さのそばに、やさしい帰り道

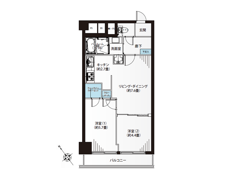
メインとなるのは、約7.6帖のリビングダイニング。ダイニングテーブルとソファを無理なく配置できるレイアウトで、食事とくつろぎのシーンをきちんと切り分けられるのがポイントです。壁面を活かしたレイアウトがしやすく、家具の配置に悩まないのも実用的。照明や内装のトーンも相まって、空間全体がやわらかくまとまり、帰ってきたときに自然と気持ちがほどけるような雰囲気♪

どんな色の家具やカーテンも合わせやすいナチュラルテイストな内装デザイン♡季節に合わせたインテリアをお楽しみいただけます。さらにはオシャレな家具&エアコン付きなので、引越し直後から快適な暮らしをスタートできそう。リノベーションにより居室内は隅々までピカピカ、安心のアフターサービス保証付きです。

独立性のあるキッチンスペースは、調理に集中しやすい落ち着いたつくり。作業動線がコンパクトにまとまっているため、無駄な動きが少なく、効率よく家事を進められます。設備も一新されており、日々の料理や後片付けがスムーズにこなせる環境。複数品の同時調理が可能なグリル付き3口コンロ、便利な食洗機を搭載◎

リビングと隣り合う配置でありながら、しっかりと独立性も確保されたバランスの良い洋室。ベッドを置いても余白が残りやすく、寝室として無理なく成立するサイズ感です。大容量のウォークインクローゼットが備わっているため、季節もののコートや丈の長いワンピース、かさばりやすいダウンジャケットなども綺麗に保管できます。

しっかりと体を預けられる1216サイズのバスルームは、1日の疲れをリセットする場所として十分な広さを確保。追焚き機能や浴室乾燥機も備わっており、時間帯や天候に左右されずに快適に使えるのもポイントです。シンプルに整えられた内装が清潔感を引き立て、日々のバスタイムをストレスなく過ごせる空間に仕上がっています。

約4.4帖とややコンパクトなサイズながら、使い方の自由度が高い1室。ワークスペースや書斎、趣味部屋としてはもちろん、あえて詰め込まない使い方をすることで、この空間の軽やかさが引き立ちます。バルコニーに面した窓からはたっぷりの採光が入り、お部屋全体が明るい印象♪エアコン付きなのも嬉しいポイントですね。

8階部分に位置するバルコニーは、周囲の建物に視界を遮られにくく、抜けのある景色が広がります。風通しも良く、外に出たときに感じる空気の軽さが日常に心地よさを添えてくれるポイント。洗濯物を干すだけでなく、ちょっと外に出て気分をリセットする場所としても使える、暮らしに余白を生むスペースです。

玄関にはシューズボックスが備わっており、靴や外出用品をすっきりと収めることが可能。廊下へとつながる動線もシンプルで、帰宅後の流れが自然に整います。無駄を削ぎ落としたつくりだからこそ、日々の出入りがスムーズでストレスが少ないのもポイント。コンパクトながら、暮らしのスタート地点としての役割をしっかり果たしています。
その他の室内・設備写真
▲ このお部屋の雰囲気がお好みの方へ
東京グラウンド編集部の住まいレビュー
大井町駅から徒歩5分という駅近の立地が魅力の『秀和南品川レジデンス』。複数路線が使える利便性を持ちながら、少し路地に入るだけで落ち着いた住宅街の空気に変わる南品川エリア。日常の動きやすさと、帰ってきたときの安心感、その両方が自然に揃う立地です。
ご紹介したのは8階部分の2LDK、専有面積47.50㎡の1~2人での暮らしにピッタリのお部屋です。内装は新規リノベーションによって整えられ、ヴィンテージマンションでありながらまるで新築のような感覚でお住まいいただけるのではないでしょうか。淡いトーンのフローリングと、ライトグレーのアクセントクロス、バランス良く取り入れられた間接照明など、ナチュラルながら上品な印象の空間設計が素敵でした。
家具付きのお部屋となっており、現在設置してあるダイニングセットやソファはそのままご利用いただけるのもオススメしたいポイント。引っ越しの負担を軽減できる上に、インテリア初心者さんでもお部屋作りがしやすいですね。
便利さをベースにしながら、自分なりの使い方で暮らしを整えていける1室。気負わず、でも快適に暮らしたい方にフィットしそうです。ご内見お待ちしております。 ライター:kayo【26C30】
この物件の毎月の支払いイメージを
試算してみませんか?
頭金や返済年数などを入力するだけで毎月の合計支払額をシミュレーションできます。
5,990
毎月の支払い予想シミュレーション
※試算結果はあくまで目安であり、実際の借り入れを保証するものではありません。
※物件によっては上記以外の別途費用が発生する場合もございます。詳しくはお問い合わせくださいませ。
住戸概要
こちらのお部屋は販売終了いたしました
過去に販売したお部屋の一部をご紹介。
住まい探しやリノベーションのヒントにご覧ください。
こちらのお部屋は販売終了いたしました
過去に販売したお部屋の一部をご紹介。
住まい探しやリノベーションのヒントにご覧ください。
[ヴィンテージマンションでHAPPYライフ] 秀和南品川レジデンス
大井町駅
徒歩5分

青と白のコントラストが印象的な「秀和カラー」をまとった外観。時代を超えて受け継がれてきたスタイルが、シンプルながらも記憶に残るこちらの10階建てマンションが『秀和南品川レジデンス』です。総戸数は86戸。

階段とスロープが並行して設けられたアプローチは、使う人それぞれに合わせた動線が用意された造り。手すりやアイアン調の柵が程よいアクセントになっていて、クラシカルな雰囲気もさりげなく感じられるのもポイントです。

清掃が行き届いたエントランスには住み込みの管理人さんがいる上、夜間はオートロックになるので防犯面は安心です。共用部の中心として設けられたエレベーターは、各フロアへの移動をスムーズに支える存在。日常的に使う設備だからこそ、シンプルで分かりやすい動線に収まっているのが安心感に繋がります。

外気に触れながら住戸へと向かう外廊下は、風や光を感じられる開放的な造り。時間帯によって変わる明るさや空気感が、日々の行き来にちょっとした変化を与えてくれます。住戸ごとの距離感も保たれやすく、プライベート感と開放感のバランスが取れた共用部。
その他の共用部・設備写真
物件概要
設備・特徴
エレベーター 夜間オートロック 防犯カメラ
南品川5丁目エリアは、昔ながらの商店街の賑わいと、落ち着いた住宅街がほどよく重なる暮らしやすい街です。青物横丁駅や大井町駅を最寄りとし、品川方面や都心へのアクセスもスムーズ。周辺には地元に根付いた商店や飲食店が並び、日常の買い物や外食が身近で完結します。少し奥に入ると住宅街が広がり、穏やかな空気の中で落ち着いて過ごせるのも魅力。利便性と生活感のバランスが良く、気負わず暮らせるリアルな住環境が整ったエリアです。
アクセス
JR京浜東北線/東急大井町線/りんかい線 『大井町』駅 徒歩5分
京急本線 『青物横丁』駅 徒歩10分
買い物
学区
※掲載している学区情報は、記事制作時点での参考情報です。
区域によっては学校の指定が異なる場合もありますので、詳細は必ずご確認ください。
その他
こちらの物件は弊社運営の別サイトでもご紹介中♪