間取り図
なら
仲介手数料 50% OFF
マンションは、“どこから買うか”で
支払う費用が変わります
仕組みを詳しく見る
月々の支払い目安を見る
※ローンの⽬安は、頭⾦ゼロ、借⼊年数35年、都市銀⾏・変動⾦利0.595%(優遇利⽤を想定。) 審査内容により、融資の⼀部または全部をご利⽤いただけない場合がございます。予めご了承ください。
間取り図
304号室
編集部が実際に現地を訪れ、見たもの・感じたことをレポート。
図面だけでは伝わらない"リアルな空気感"をお届けします。
更新日:2026/04/18
更新日:2026/04/18
穏やかな渋谷で暮らす

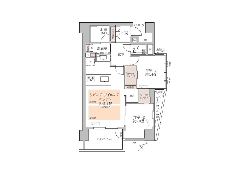
今回ご紹介するのは、"奥渋"の静かな街並みに佇むマンション『ユニーブル渋谷神南』の3階にあるお部屋です。専有面積65.76㎡の2SLDKで、太陽の光を最大限に生かせる東の角部屋♩2026年2月に完了したリノベーションにより、新しいお部屋に生まれ変わりました。

メインルームは約15.4帖の広さ。キッチンからリビングにかけて縦長の造りになっているので、家具の配置が決めやすいです。コーブ照明などのお洒落な照明や収納、DENスペースなど、細部に遊び心を感じるお部屋です!

キッチンはリビングダイニングと向かい合った形のセミオープン式。明るい照明や広く取られた調理スペースが非常に便利です。ソリッドなデザインがとてもクールで、機能性に長けております◎

リビングの隣には収納や書斎として活用できるDENスペースがありました。こちらは非常にコンパクトな空間で、生活家電やアウトドアグッズなどを収納しておくのに非常に便利です♩

こちらはメインルームに隣接した約5.8帖の洋室です。このお部屋は南東・北東向きの窓が付いていました。メインルームとの仕切りがガラス戸なので、メインルームからの光を取り込むことも可能な、明るいお部屋です◎

約5.8帖の洋室は引き戸で仕切られているため、メインルームと合体させることでゆとりのある1部屋として変形することもできます!世帯数やライフスタイルに合わせて、お部屋の使い方をアレンジしてみましょう。

こちらは玄関側にある約5.4帖の洋室です。北東向きの窓が大きく、日中は安定した外光を室内に取り込むことができます。東からの朝日が程よく室内に入るため、こちらは寝室にするのがベターです♩

バスルームは洗い場とバスタブが広く設けられた、上品な空間。日々の疲れを癒す極上のバスタイムを提供してくれるでしょう。
その他の室内・設備写真
▲ このお部屋の雰囲気がお好みの方へ
東京グラウンド編集部の住まいレビュー
渋谷駅前の喧騒をかき分けた先にある、通称”奥渋”エリア。オフィスや住宅が点在する落ち着いた住環境に佇むマンション、『ユニーブル渋谷神南』の3階のお部屋をご紹介。渋谷駅から歩いて8分の好立地で、このような落ち着いた生活環境があるのかという驚きがありました。
お部屋は専有面積65.76㎡の2LDK。ダークトーンのヘリンボーンフローリングに、グレーのアクセントクロス。落ち着きのある色合いでまとめられた空間は、華やかすぎず、それでいて品の良さを感じさせてくれます。約15.4帖のメインルームは、ペニンシュラキッチンとペンダントライトが自然と空間の中心となり、食事や会話の時間を心地よく引き立ててくれそうです。天井にはコーブ照明が施され、やわらかな光が広がるのも印象的でした。隣接する洋室は引き戸で仕切られており、開け放てばひと続きの広がりに。シーンに合わせて使い分けられる柔軟さも魅力です。さらにDENやオープン棚が設けられており、仕事や趣味のスペースとしても活用しやすい間取り。窓は南東向きで採光も抜群です。時間帯やシーンに合わせて照明や明るさを調節でき、生活のクオリティを高めてくれるお部屋でした♩
整ったデザインの中に、日々の暮らしやすさがしっかりと織り込まれた一室です。ご内見お待ちしております。 ライター:takumi【26C31】
この物件の毎月の支払いイメージを
試算してみませんか?
頭金や返済年数などを入力するだけで毎月の合計支払額をシミュレーションできます。
19,800
毎月の支払い予想シミュレーション
※試算結果はあくまで目安であり、実際の借り入れを保証するものではありません。
※物件によっては上記以外の別途費用が発生する場合もございます。詳しくはお問い合わせくださいませ。
住戸概要
こちらのお部屋は販売終了いたしました
過去に販売したお部屋の一部をご紹介。
住まい探しやリノベーションのヒントにご覧ください。
[奥渋の生活] ユニーブル渋谷神南
渋谷駅
徒歩8分

『ユニーブル渋谷神南』は2013年12月築の鉄筋コンクリート造陸屋根10階建てマンションです。落ち着いた色味のスタイリッシュな外観が、閑静な街並みに溶け込んでおりました。

アプローチは通りに面しているため、陽当たりが良く明るかったです。丁寧に整えられた植栽がお洒落で、管理体制のレベルの高さが伺えました。

オートロックのエントランスを抜けると、まるでホテルのようなロビーが広がっておりました。窓からの外光の入り具合や程よい照明の光が上品で、お仕事前や帰宅時に気分高めてくれそうです◎

マンションの裏手には駐車場がありました。屋根付きですがフロント部分にはカバー着用推奨です◎
その他の共用部・設備写真
物件概要
設備・特徴
エレベーター オートロック 宅配BOX 防犯カメラ 新耐震基準適合
『ユニーブル渋谷神南』が佇むエリアは通称”奥渋”と呼ばれています。センター街を抜け、渋谷の喧騒から少し離れた代々木公園の西側に位置し、オシャレなカフェや飲食店、セレクトショップなどが点在。渋谷駅からセンター街周辺の最先端のカルチャーが集うポップな側面と、宇田川町・神山町・富ヶ谷エリアの静かに嗜む上品で洗練された側面を、気分に合わせて選ぶことができる贅沢な住環境です。
アクセス
JR山手線/埼京線/湘南新宿ライン/京王井の頭線/東急東横線/田園都市線/東京メトロ銀座線/半蔵門線/副都心線 『渋谷』駅 徒歩8分
東京メトロ千代田線 『代々木公園』駅 徒歩10分
買い物
学区
※掲載している学区情報は、記事制作時点での参考情報です。
区域によっては学校の指定が異なる場合もありますので、詳細は必ずご確認ください。
その他