間取り図
価格改定
なら
仲介手数料 50% OFF
マンションは、“どこから買うか”で
支払う費用が変わります
仕組みを詳しく見る
月々の支払い目安を見る
※ローンの⽬安は、頭⾦ゼロ、借⼊年数35年、都市銀⾏・変動⾦利0.595%(優遇利⽤を想定。) 審査内容により、融資の⼀部または全部をご利⽤いただけない場合がございます。予めご了承ください。
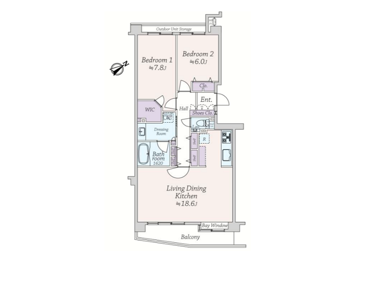
間取り図
2F
編集部が実際に現地を訪れ、見たもの・感じたことをレポート。
図面だけでは伝わらない"リアルな空気感"をお届けします。
更新日:2026/04/16
更新日:2026/04/16
都会暮らしの答え

『クリオ恵比寿弐番館』の2階にあるお部屋をご紹介します。専有面積75.04㎡の2LDKで、2025年12月にリノベーション工事が完了したお部屋。ゆったりとした暮らしを実現できます。

メインルームは約18.6帖の広さ。コーブ照明とダウンライトが、明るすぎない適度な明るさをキープ。木目調のフローリングがリラックスできる色味で、日常生活に温かみを持たせてくれます◎

メインルームの窓は南東向きで、朝からお昼過ぎの時間帯は陽光が室内を明るく照らします☀朝食を食ベながら太陽の光を感じられるため、自然な目覚めを促してくれますよ。

こちらがバルコニーです。洗濯物を干すのには十分なスペース◎向かい側には遮る物がなく陽当たりが良いので、観葉植物を育てるのにも適しております♩

キッチンはメインルームの奥に独立してありました。手の込んだお料理に没頭できるスペースです。リビングダイニングに油跳ねや臭いが残らず、消臭や掃除に囚われることもありません。

玄関から真っすぐと伸びる廊下はそれぞれ各部屋に枝分かれして伸びておりました。動線が複雑でなく、洗濯やお掃除などの家事もスムーズに行えますよ。

洗面化粧台はパッと明るく、便利な3面鏡仕様でした。メイクやヘアスタイリングに最適な空間で、朝の身支度もストレスなくスマートにこなせます◎

清潔感あふれるバスルームは日々の疲れを癒してくれます。ブラウン系の石目調のクロスが視覚的にリラックスさせてくれるため、疲労回復効果も抜群です♩
その他の室内・設備写真
▲ このお部屋の雰囲気がお好みの方へ
東京グラウンド編集部の住まいレビュー
今回ご紹介したのは目黒駅から歩いて8分の所にあるマンション、『クリオ恵比寿弐番館』の2階のお部屋です。
マンションが佇むのは通称”長者丸”とも呼ばれる、歴史ある閑静な高級住宅街。近隣には親しみやすい低層住宅・マンションが立ち並び、都会の騒々しさのようなイメージは全くありませんでした◎
お部屋は2階の2LDK、専有面積は75.04㎡です。メインルームは南東向きのバルコニーに面したポカポカした空間。撮影時はあいにくの天気でしたが、向かい側に高い建物がないため、悪天候時でも外光が室内に入り込んでおり明るい印象。室内の照明はコーブ照明をはじめとした、上品な雰囲気。昼夜問わず、必要に応じてちょうどよい明るさをキープしてくれます。洋室は2部屋あり、そのうち1室にはウォークインクローゼットを完備。お洋服だけでなく、アウトドア用品なども併せて収納できるのが強みです。また、廊下にも大容量収納が付いているため、そちらも活用しながらスタイリッシュなお部屋作りを意識しましょう♩
このお部屋が気になる方はぜひ、実際に足を運んでみてください! ライター:takumi【26C31】
この物件の毎月の支払いイメージを
試算してみませんか?
頭金や返済年数などを入力するだけで毎月の合計支払額をシミュレーションできます。
17,980
毎月の支払い予想シミュレーション
※試算結果はあくまで目安であり、実際の借り入れを保証するものではありません。
※物件によっては上記以外の別途費用が発生する場合もございます。詳しくはお問い合わせくださいませ。
住戸概要
こちらのお部屋は販売終了いたしました
過去に販売したお部屋の一部をご紹介。
住まい探しやリノベーションのヒントにご覧ください。
[品のある街並み] クリオ恵比寿弐番館
目黒駅
徒歩8分

閑静な住宅街に佇む5階建ての低層マンション、『クリオ恵比寿弐番館』は1999年築の鉄筋コンクリート造。落ち着いた街並みに馴染む外装と丁寧に整えられた植栽が特徴です。

エントランスの右手に駐車場がありました。屋内外に駐車スペースがあるため、車幅や車高などを考慮したうえで駐車スペースを選びましょう◎

エントランスはオートロック式、加えてホール内に管理人室が設置されておりセキュリティ面は盤石。また奥には宅配ボックスがあり、不在時も安心です。

廊下は内廊下です。天候や気候に影響されず、快適にご利用いただけます。近隣の住宅からの視線を気にする必要もなく、気持ちよくご利用いただけます。
その他の共用部・設備写真
物件概要
設備・特徴
エレベーター オートロック 宅配BOX 防犯カメラ 新耐震基準適合
『クリオ恵比寿弐番館』が佇むエリアは、通称”長者丸”とも呼ばれる歴史ある閑静な高級住宅街です。恵比寿ガーデンプレイスや自然教育園に隣接し、豪邸や高級低層マンションが並びます。都心に位置しながら豊かな自然を感じることができる、非常に治安が良く落ち着いた雰囲気の住環境。JR線と私鉄が交わる目黒・恵比寿駅が徒歩圏内で交通利便性も高く、恵比寿ガーデンプレイスやアトレ目黒・恵比寿などの生活特化の施設も備わります。あらゆる利便性を兼ね備えた、理想的な住環境です。
アクセス
JR山手線/東急目黒線/東京メトロ南北線/都営三田線 『目黒』駅 徒歩8分
JR山手線/埼京線/湘南新宿ライン/東京メトロ日比谷線 『恵比寿』駅 徒歩12分
買い物
学区
※掲載している学区情報は、記事制作時点での参考情報です。
区域によっては学校の指定が異なる場合もありますので、詳細は必ずご確認ください。
その他
こちらの物件は弊社運営の別サイトでもご紹介中♪