購入・売却・リノベ・無料相談はこちら 公式LINEで気軽に相談

パークタワー東京フロント

パークタワー東京フロント

URLとタイトルをコピーしました!

【仲介手数料無料・掲載写真170枚】大田区蒲田-19-5/京急蒲田駅徒歩2分/駐車場有/ペット飼育可/新耐震基準適合/定休日なしで内見予約・無料相談受付中です!
この物件の売却相談はこちら
仲介手数料無料
2305号室
14,000万円
仲介手数料無料
507号室
13,500万円

間取り図

URLとタイトルをコピーしました!
  • 価格改定

14,000万円
83.35㎡
2LDK
なら

仲介手数料 無料!

通常
468万円
当社
0

追加費用も一切なし

マンションは、“どこから買うか”で
支払う費用が変わります

仕組みを詳しく見る

月々の支払い目安を見る

ローンの目安
369,000円/月
管理費
19,840円/月
修繕積立金
20,840円/月
合計
409,680円/月

※ローンの⽬安は、頭⾦ゼロ、借⼊年数35年、都市銀⾏・変動⾦利0.595%(優遇利⽤を想定。) 審査内容により、融資の⼀部または全部をご利⽤いただけない場合がございます。予めご了承ください。

間取り図

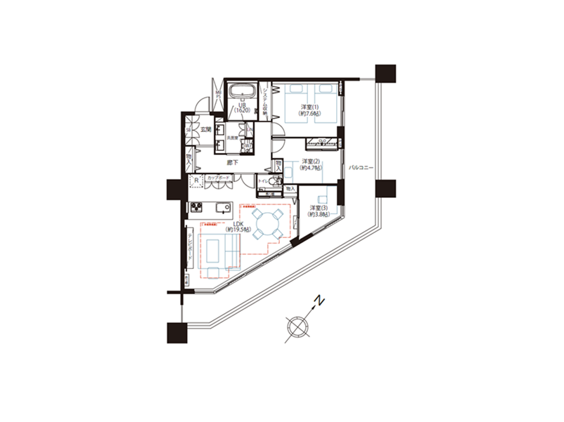
2305号室
83.35㎡ 2LDK

編集部の
部屋レポ

編集部が実際に現地を訪れ、見たもの・感じたことをレポート。
図面だけでは伝わらない"リアルな空気感"をお届けします。

更新日:2026/04/02

更新日:2026/04/02

スカイツリーを望む、特別な日常

その他の室内・設備写真

▲ このお部屋の雰囲気がお好みの方へ

東京グラウンド編集部の住まいレビュー

京急蒲田駅からわずか徒歩2分という利便性に恵まれた立地に建つ、免震構造タワーレジデンス『パークタワー東京フロント』。今回ご紹介するのは最上階、23階部分に位置するの2LDKのお部屋です。室内は新規リノベーションにより美しく生まれ変わり、まるで新築のような清潔感に満ちています✧メインルームは約21.1帖の広々空間。木目天井と間接照明が採用され、やわらかな光が空間に落ち着いた表情を与えていました。全居室に大きな窓が備わり、「東京スカイツリー」や東京湾など23階ならでは開放的な眺望を堪能できます。その他にもアイランドキッチンや豊富な収納、回遊性のある動線など、暮らしやすさに配慮された工夫も多数!実際に訪れることで、この住まいの快適さをより実感いただけるはずです。ぜひ一度、ご見学にお越しください♪ ライター:hana【25K06】

この物件の毎月の支払いイメージを
試算してみませんか?

頭金や返済年数などを入力するだけで毎月の合計支払額をシミュレーションできます。

14,000

万円

最初にまとめて支払うお金です。
頭金なしでもローンは組めますので
ご安心ください。

万円

ローンを何年かけて返済するかを
入力します。よくある期間は
35年、30年、20年など。

変動金利で0.3〜0.6%(低金利だが将来的に変動)、固定金利で1.0〜1.5%(返済額がずっと一定で安心)が一般的な目安です。

毎月の支払い予想シミュレーション

ローン支払い目安
369,000円/月
管理費
19,840円/月
修繕積立金
20,840円/月
合計
409,680円/月

※試算結果はあくまで目安であり、実際の借り入れを保証するものではありません。
※物件によっては上記以外の別途費用が発生する場合もございます。詳しくはお問い合わせくださいませ。

住戸概要

価格
14,000万円
所在階
23階
間取り
2LDK
専有面積
83.35㎡
バルコニー
24.13㎡
管理費
19,840円/月
修繕積立金
20,840円/月
リノベーションアフターサービス保証付住宅ローン控除対象

間取り図

パークタワー東京フロント_リビングダイニングキッチンの写真5
パークタワー東京フロント_リビングダイニングキッチンの写真3
パークタワー東京フロント_リビングダイニングキッチンの写真8
パークタワー東京フロント_お洒落なキッチンの写真2
パークタワー東京フロント_リビングダイニングキッチン収納の写真1
パークタワー東京フロント_約3.8帖の洋室の写真1
パークタワー東京フロント_約7.6帖の洋室の写真
パークタワー東京フロント_広々としたパウダールームの写真1
パークタワー東京フロント_リビングダイニングキッチンの写真5
パークタワー東京フロント_リビングダイニングキッチンの写真3
パークタワー東京フロント_リビングダイニングキッチンの写真8
パークタワー東京フロント_お洒落なキッチンの写真2
パークタワー東京フロント_リビングダイニングキッチン収納の写真1
パークタワー東京フロント_約3.8帖の洋室の写真1
パークタワー東京フロント_約7.6帖の洋室の写真
パークタワー東京フロント_広々としたパウダールームの写真1
URLとタイトルをコピーしました!
  • 価格改定

13,500万円
83.65㎡
3LDK
なら

仲介手数料 無料!

通常
452万円
当社
0

追加費用も一切なし

マンションは、“どこから買うか”で
支払う費用が変わります

仕組みを詳しく見る

月々の支払い目安を見る

ローンの目安
356,000円/月
管理費
19,910円/月
修繕積立金
20,910円/月
合計
396,820円/月

※ローンの⽬安は、頭⾦ゼロ、借⼊年数35年、都市銀⾏・変動⾦利0.595%(優遇利⽤を想定。) 審査内容により、融資の⼀部または全部をご利⽤いただけない場合がございます。予めご了承ください。

間取り図

507号室
83.65㎡ 3LDK

編集部の
部屋レポ

編集部が実際に現地を訪れ、見たもの・感じたことをレポート。
図面だけでは伝わらない"リアルな空気感"をお届けします。

更新日:2026/04/02

更新日:2026/04/02

アーバンライフはここから

その他の室内・設備写真

▲ このお部屋の雰囲気がお好みの方へ

東京グラウンド編集部の住まいレビュー

京急蒲田駅とJR蒲田駅の間のディープスポットに、都会暮らしの正解を見つけたような気がしました。

今回ご紹介したのは、大田区蒲田の4丁目に佇むマンション『パークタワー東京フロント』、5階のお部屋です。東京の南の端に位置する「蒲田」で都会の暮らしを体現することができる、エレガントなお部屋となっております。
メインルームはゆとりのある約19.5帖で、リビングとダイニングどちらも広々と設けられる十分な広さ。南東向きの窓はほぼ壁一面に広がっているため、日中は外からの採光がお部屋全体に届きます☀キッチンとリビングダイニングとの距離も近く、友人を招いてみんなでお料理を作るのも楽しそうです◎各寝室は朝日が心地よく、1日のスタートがベストな環境から迎えられそうです。上品で都会的なこのお部屋と、ディープで下町情緒あふれる街「蒲田」の組み合わせが意外にもマッチしているような気がします。
内見に行くと、ここで生活することをひとりでに考えてしまう、それほど魅力的なお部屋でした!

ぜひ実際に内見していただき、蒲田での生活についてイメージしてみてはいかがでしょうか。 ライター:takumi【26B18】

この物件の毎月の支払いイメージを
試算してみませんか?

頭金や返済年数などを入力するだけで毎月の合計支払額をシミュレーションできます。

13,500

万円

最初にまとめて支払うお金です。
頭金なしでもローンは組めますので
ご安心ください。

万円

ローンを何年かけて返済するかを
入力します。よくある期間は
35年、30年、20年など。

変動金利で0.3〜0.6%(低金利だが将来的に変動)、固定金利で1.0〜1.5%(返済額がずっと一定で安心)が一般的な目安です。

毎月の支払い予想シミュレーション

ローン支払い目安
356,000円/月
管理費
19,910円/月
修繕積立金
20,910円/月
合計
396,820円/月

※試算結果はあくまで目安であり、実際の借り入れを保証するものではありません。
※物件によっては上記以外の別途費用が発生する場合もございます。詳しくはお問い合わせくださいませ。

住戸概要

価格
13,500万円
所在階
5階
間取り
3LDK
専有面積
83.65㎡
バルコニー
31.87㎡
管理費
19,910円/月
修繕積立金
20,910円/月
リノベーション

建物と街のようす

[空港アクセスに恵まれた日常] パークタワー東京フロント

大田区蒲田-19-5MAP

京急蒲田駅

徒歩2分

外観・共用部

その他の共用部・設備写真

物件概要

物件名
パークタワー東京フロント
所在地
大田区蒲田-19-5
築年月
平成16年/2004年1月
構造
鉄筋コンクリート造
階数
23階建
土地
所有権
総戸数
159戸
分譲会社
三井不動産株式会社
管理会社
三井不動産レジデンシャルサービス株式会社
駐車場
有 (30,000~36,000円/月)
ペット飼育
可 (小型犬猫2匹迄可 ※細則有)

設備・特徴

エレベーター オートロック 宅配BOX 防犯カメラ 新耐震基準適合

アクセス・周辺環境

京急蒲田駅京急蒲田駅
ウィングキッチンウィングキッチン
駅直結の遊歩道駅直結の遊歩道
あすとウィズあすとウィズ
京浜蒲田商店街 あすと京浜蒲田商店街 あすと
駅前のアーケード街駅前のアーケード街
京急蒲田公園京急蒲田公園
ファミリーマート 蒲田五丁目店ファミリーマート 蒲田五丁目店
JR蒲田駅JR蒲田駅
京急蒲田駅京急蒲田駅
ウィングキッチンウィングキッチン
駅直結の遊歩道駅直結の遊歩道
あすとウィズあすとウィズ
京浜蒲田商店街 あすと京浜蒲田商店街 あすと
駅前のアーケード街駅前のアーケード街
京急蒲田公園京急蒲田公園
ファミリーマート 蒲田五丁目店ファミリーマート 蒲田五丁目店
JR蒲田駅JR蒲田駅

京急蒲田駅は京急本線と京急空港線の2路線が利用でき、品川や横浜などの主要ターミナルへスムーズにアクセスできる利便性の高い駅です。羽田空港へは直通でアクセス可能なため、出張や旅行の多い方にも便利な環境が整っています。駅周辺には商業施設「ウィングキッチン京急蒲田」をはじめ、スーパーやドラッグストア、飲食店が集まり日常の買い物から外食まで幅広く対応◎また、駅前からアーケード商店街が伸びており、下町らしい温かみのある雰囲気の中でお買い物を楽しめるのも魅力です。駅から少し歩くと落ち着いた住宅街が広がっており、都市の利便性と暮らしやすさを程よく両立。再開発が進んだこともあり、夜道も明るく人通りも多く治安面の安心感も高まっています。

アクセス

京急本線 『京急蒲田』駅 徒歩2分

JR京浜東北線 『蒲田』駅 徒歩7分

買い物

まいばすけっと 蒲田4丁目店
徒歩3分(190m)
西友 蒲田中央店
徒歩3分(190m)
ファミリーマート サンズ京急蒲田駅西口店
徒歩2分(140m)
ダイモン薬品
徒歩2分(170m)

学区

蒲田小学校
徒歩5分(350m)
蒲田中学校
徒歩11分(750m)

※掲載している学区情報は、記事制作時点での参考情報です。
区域によっては学校の指定が異なる場合もありますので、詳細は必ずご確認ください。

その他

京浜蒲田公園
徒歩1分(21m)
大田区民ホール・アプリコ
徒歩6分(450m)
大田区役所
徒歩8分(550m)

こちらの物件は弊社運営の別サイトでもご紹介中♪

こんなお部屋に住みたい方へ リフォーム:リノベーション

不動産にまつわるご相談・ご質問・資料請求など
まずはお気軽にお問い合わせくださいませ。