間取り図
こちらの物件の仲介手数料は
個別にご案内いたします。
詳細をご希望の方は
お気軽にご相談ください。
お問い合わせはこちら
月々の支払い目安を見る
※ローンの⽬安は、頭⾦ゼロ、借⼊年数35年、都市銀⾏・変動⾦利0.595%(優遇利⽤を想定。) 審査内容により、融資の⼀部または全部をご利⽤いただけない場合がございます。予めご了承ください。
間取り図
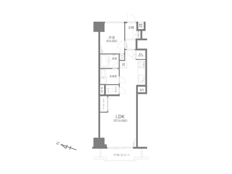
508号室
編集部が実際に現地を訪れ、見たもの・感じたことをレポート。
図面だけでは伝わらない"リアルな空気感"をお届けします。
更新日:2026/03/26
更新日:2026/03/26
光と抜けを日常に

約11.7帖のリビングダイニングキッチンは、空間の中央にゆとりを持たせたレイアウトがしやすい設計。家具を壁沿いにまとめれば動線がすっきりと整い、日常の動きが自然とスムーズになります。角部屋のため外からの光が入りやすく、時間帯によって表情が変わるのも魅力のひとつ。シンプルに整えられた内装が家具やインテリアを引き立て、自分らしい空間づくりを楽しめるリビングです。

どんな色の家具やカーテンも合わせやすいナチュラルテイストな内装デザイン。季節に合わせたインテリアをお楽しみいただけそうですね。窓からはたっぷりの採光と心地良い風が吹き込み、1年を通してポカポカと温かく、快適にお過ごしいただけます。安心のアフターサービス保証付きです。

シンプルなデザインのシステムキッチンは、調理スペースとシンクの距離感がほどよく作業の流れが途切れにくいのが特徴。食器洗浄乾燥機が備わっているため、食後の片付けも効率よく進められます。料理をしながら会話を楽しんだり、テレビを見ながら作業したりと、生活に自然と馴染むキッチンです。

ユニットバスは1216サイズが採用されており、日々の入浴時間を落ち着いて過ごせる広さが確保されています。浴槽にゆったりと体を預けることで、1日の疲れをしっかりとリセットできるのが魅力。浴室乾燥機付きのため、天候に左右されず洗濯物を乾かせる実用性も備えています。湿気対策にもつながり、空間を清潔に保ちやすい点もポイント。

おおよそ4.5帖の洋室は、書斎や趣味の部屋、在宅ワークスペースとして活用しやすい空間。リビングから少し離れた配置により、生活音を適度に遮りながら落ち着いて過ごせる居室です。大容量サイズのクローゼットには、季節もののコートや丈の長いワンピースなども綺麗に保管できます。

約3.5帖の洋室はリビングに隣接していて、主寝室としてもワークスペースとしても使いやすい位置にあります。扉でしっかりと仕切ることで落ち着いた時間を確保でき、就寝時や集中したいときにも安心感のある空間に。ベッドとサイドテーブルを置いても動線を確保しやすく、日常使いにちょうどよいサイズ感です。

5階部分に位置するバルコニーは、周囲の建物との距離感が保たれており、視線が抜ける心地よさを感じられます。空を感じる広がりがあり、室内にも自然な開放感をもたらしてくれる存在。洗濯物を干すだけでなく、外の空気を取り込んでリフレッシュする場所としても活用できます。角部屋ならではの風の通りも感じやすく、室内の空気を入れ替える際にも効果的。

日々の出入りをストレスなくこなせる、使い勝手のよい玄関。シューズボックスが備わっているため靴の整理がしやすく、玄関まわりをすっきりと保てます。一部姿見が備わっているので、外出前の身だしなみチェックもバッチリ。余計な装飾のないシンプルな内装が、清潔感のある印象を与えてくれます。
その他の室内・設備写真
▲ このお部屋の雰囲気がお好みの方へ
東京グラウンド編集部の住まいレビュー
東急東横線と東京メトロ日比谷線が行き交う中目黒駅から徒歩12分、JR山手線目黒駅から徒歩17分の都心のマンションをご紹介します。
周辺には「中目黒公園」やマンション1階の「セブンイレブン」など日常を支える環境が整い、閑静な住宅街の落ち着きも感じられる中古マンションです。
『ニックハイム中目黒』は総戸数81戸、鉄骨鉄筋コンクリート造の建物は、長期修繕計画があり管理体制も整った安心感のある住まい。防犯カメラやTVモニター付インターホンなどセキュリティ面にも配慮されています。
ご紹介のお部屋は、専有面積49.25㎡の2LDK。約11.7帖のリビングを中心に洋室を配置。
角部屋ならではの開放感と、5階部分につき眺望・日当たり良好な空間が広がります。システムキッチンやユニットバス、洗面化粧台など設備充実で、リノベーションにより快適に整えられています。
木の温もりを感じられるナチュラルテイストな内装デザインも魅力♡
都心で落ち着いた暮らしを求めるDINKsにオススメの1室です。ぜひ一度ご内覧ください。 ライター:rei【26C17】
この物件の毎月の支払いイメージを
試算してみませんか?
頭金や返済年数などを入力するだけで毎月の合計支払額をシミュレーションできます。
5,699
毎月の支払い予想シミュレーション
※試算結果はあくまで目安であり、実際の借り入れを保証するものではありません。
※物件によっては上記以外の別途費用が発生する場合もございます。詳しくはお問い合わせくださいませ。
住戸概要
間取り図
こちらの物件の仲介手数料は
個別にご案内いたします。
詳細をご希望の方は
お気軽にご相談ください。
お問い合わせはこちら
月々の支払い目安を見る
※ローンの⽬安は、頭⾦ゼロ、借⼊年数35年、都市銀⾏・変動⾦利0.595%(優遇利⽤を想定。) 審査内容により、融資の⼀部または全部をご利⽤いただけない場合がございます。予めご了承ください。
間取り図
1002号室
この物件の毎月の支払いイメージを
試算してみませんか?
頭金や返済年数などを入力するだけで毎月の合計支払額をシミュレーションできます。
5,990
毎月の支払い予想シミュレーション
※試算結果はあくまで目安であり、実際の借り入れを保証するものではありません。
※物件によっては上記以外の別途費用が発生する場合もございます。詳しくはお問い合わせくださいませ。
住戸概要
こちらのお部屋は販売終了いたしました
過去に販売したお部屋の一部をご紹介。
住まい探しやリノベーションのヒントにご覧ください。
東京グラウンド編集部の住まいレビュー
東急東横線・東京メトロ日比谷線が乗り入れる中目黒駅から徒歩12分、中目黒の街中を走る大通り沿いに佇む『ニックハイム中目黒』のご紹介でした。マンション周辺は、お洒落なレストランやカフェの多い贅沢な立地。上質な暮らしを送れるエリアを生活圏にできるのがとても魅力ですよね。目黒川にもほど近く、春には咲き乱れる美しい桜を楽しむことができそうです。9階に位置する専有面積49.25㎡・1LDKのお部屋はシンプルな真四角になっており、どんな家具でもしっくり収まる造り。ペット可能物件なので、動物好きの方にもありがたいですね。開放感たっぷりのメインルームに大きなソファを置いてペットと遊ぶのもよし、スペースを生かしてヨガなどを楽しむもよし、想像するだけでわくわくする素敵なお部屋ですね。バルコニーがついているおかげで風通しがよく、清潔で明るい暮らしが期待できそうです。朝・昼・夜を通して異なった表情を見せる中目黒で、街に溶け込むお洒落な生活を送ってみませんか✿内見のお問い合わせ、是非お待ちしております。 ライター:yurika【26A18】
こちらのお部屋は販売終了いたしました
過去に販売したお部屋の一部をご紹介。
住まい探しやリノベーションのヒントにご覧ください。
東京グラウンド編集部の住まいレビュー
東急東横線、東京メトロ日比谷線が行き交う中目黒駅から徒歩11分のマンションをご紹介します。目黒川の桜並木や人気のカフェ、ショップが徒歩圏に揃い都心らしい便利さと心地よさを両立した立地。目黒区中目黒アドレスに佇む『ニックハイム中目黒』は安心の鉄筋コンクリート造、管理体制も良好。エントランスにはオートロックを完備し、セキュリティ面も充実していました。ご紹介のお部屋は、専有面積約41㎡の1LDK。南西向きで陽当たりが良く、お部屋全体が明るくポカポカと温かな印象です。2025年9月末に新規内装リノベーションが完了したばかりの居室内は隅々までピカピカ。システムキッチンや浴室乾燥機、独立洗面化粧台など、設備も充実しています。メインとなるリビングダイニングキッチンは、10帖超えの広さを誇り、開放感に溢れています。シングルやDINKSにぴったりな間取り、ぜひ一度ご内見にいらしてください♪ ライター:rei【25K04】
[街ごとお洒落な暮らし] ニックハイム中目黒
中目黒駅
徒歩12分

大通り沿いにどっしりと佇む白い建物が『ニックハイム中目黒』。地上11階建て、総戸数81戸のマンションです。過去に大規模修繕工事が行われ、綺麗な外観が保たれています。

鮮やかな植栽が植えられたアプローチ。大きな庇の下で雨具を落ち着いて準備できますね。段差が無いのでスムーズにご通行いただけます。

オレンジ色のレンガ貼りが特徴的なエントランス。防犯カメラと常駐している管理人さんが安全を見守っています。エレベーターホールにはスロープが付いており、キャリーバッグやベビーカーをお持ちの際もスムーズ♪

爽やかな風を感じる外廊下を進んで、お部屋へと向かいましょう♪目隠しパネルが高い位置にあるため、外からの視線は感じません。
その他の共用部・設備写真
物件概要
設備・特徴
エレベーター 防犯カメラ 長期修繕計画有
テナント
インド料理シリバラジ餃子市場中華そばむら田セブンイレブン中目黒店
中目黒駅の魅力は、都心への抜群のアクセスと街そのものの洗練された雰囲気にあります。東急東横線・東京メトロ日比谷線が利用でき、渋谷や恵比寿、六本木へも直通。通勤やお出かけも快適です。駅周辺にはカフェやレストラン、セレクトショップが並び、感度の高いライフスタイルを楽しめるのも特徴。春には目黒川沿いの桜並木が街を彩り、日常に季節の潤いを添えてくれます。利便性と自然、トレンドと落ち着きが調和するロケーション。
アクセス
東急東横線/東京メトロ日比谷線 『中目黒』駅 徒歩12分
JR山手線/東急目黒線/東京メトロ南北線/都営三田線 『目黒』駅 徒歩17分
JR山手線/埼京線/湘南新宿ライン/東京メトロ日比谷線 『恵比寿』駅 徒歩18分
東急バス 『目黒警察署前』停 徒歩1分
買い物
学区
※掲載している学区情報は、記事制作時点での参考情報です。
区域によっては学校の指定が異なる場合もありますので、詳細は必ずご確認ください。
その他
こちらの物件は弊社運営の別サイトでもご紹介中♪