仲介物件の多くは『レインズ』という不動産会社だけが利用できる情報サイトに掲載されています。レインズはどの不動産会社も同じ情報にアクセスできる仕組みのため、会社によって紹介できる物件が限定されるということはほとんどありません。
当サイトに掲載されていない物件であっても、気になる物件があれば、仲介手数料無料または割引(規定上限額の30〜50%)でご案内可能です。そのため、物件の条件にかかわらず、常にお客さまのご負担を最小限に抑えたご提案を行っています。
【デュロス若松町 5F】はご成約となりましたが、弊社では売買物件も賃貸物件も一律仲介手数料30%Offで ご紹介しております。
また、売買も賃貸も仲介手数料無料物件も多数ご用意しております。
是非お問い合せを頂けましたら、皆様にぴったりなマンションをお探しさせて頂きます♪
デュロス若松町 5階

●住所 新宿区若松町6-7
●築年数 昭和63年4月
●構造 鉄骨鉄筋コンクリート造 地上12階建5階部分
●土地 所有権
●総戸数 39戸
●専有 99.91㎡
●バルコニー 12.50㎡
●間取り 3LDK
○管理費 32,100円
○修繕積立金 8,730円
○組合費 1,000円/月
○駐車場 無
○駐輪場 有(300円/月)
※ペット飼育 不可
※事務所使用 不可
ACCESS
・都営大江戸線 『若松河田』駅 徒歩4分
・都営大江戸線 『牛込柳町」駅 徒歩5分
・都営新宿線 『曙橋』駅 徒歩12分
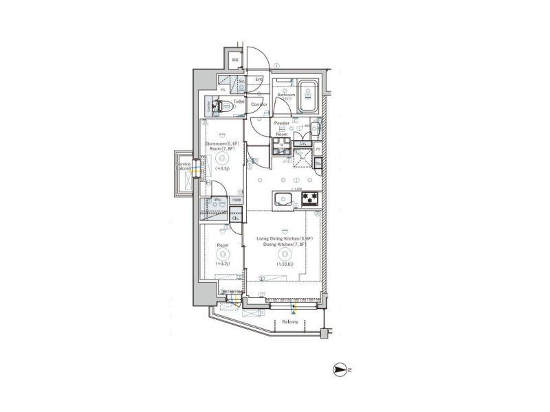
【間取り図】


徒歩圏内で利用できる駅は3駅。一番の最寄り駅となる『若松河田』駅は新宿からたった4分という利便性に加えて周辺には静かな住宅街が広がり、住環境もばっちり整っています。


周辺には小さいながらも人気のあるおしゃれなレストランも発見できます。公園などもあるので、子育ての環境もばっちり整っていますよ☆☆

食材や日用品のお買い物はもう一つの最寄り駅の牛込柳町の大きなスーパーマーケットが活躍しそうです(pq´▽`*)
大久保通り沿いに現れる『デュロス若松町』は大きなアーチ型のルーフが目印。総戸数たったの38戸ですがとても大きなマンションです。


長いアプローチはそれだけで防犯効果もありそう。。


前面ガラス張りの開放感溢れる明るいエントランス。日勤の管理人さんがてくれる管理体制も整ったマンションです。

今回ご紹介するのは新規にフルリフォームされた3LDKの広いお部屋です。
玄関には大きなシューズボックスが設置済み。施されたアクセントクロスも落ち着いていてすぐになじむことが出来ます。。

廊下を進むとすぐに2つの扉が並んでいます。

向かって右側の扉はサニタリールームへと繋がっています。扉が少し重いので思い切って開けましょう!

広々とした空間には洗面台、トイレ、洗濯パンに浴室が集まっています。カウンターと一体型のワイドな洗面台は掃除もしやすく使い勝手も抜群です。鏡の後ろは全て収納となっているので細かい物もしっかり収納が可能☆☆

トイレはそこまで広くはありませんが、タンクレスでスッキリとした印象。脇には小さいながらも扉付きの収納もしっかり設置されています。

浴室はたっぷりとしたスペースを確保。

これだけの広い浴室なら、家族でゆっくりバスタイムを楽しめそうです。
ただ浴槽は高さのあるものなので、小さいお子様は少し入り辛いかもしれません。


正面のドアの向こうに広がるのは約22.6帖のリビングダイニングキッチンです。
入るとすぐ手前にある、たくさんの引き出しと食洗機の付いた大きなカウンターキッチン。

カウンター下だけではなく収納は背後にも。用途別に収納が出来るので何がどこにあるのかも分かりやすく、スッキリとキープできそう☆
もちろん調理の出来るスペースもたっぷりとあり、使い勝手抜群です☆

南向きのワイドスパンのリビング部分は全体に光が行き渡って開放感ばっちりです。ダークカラーのフロアに真っ白い壁がより一層お部屋の幅を広く奥行き深く感じさせてくれます。

リビングの奥の居室に通じる通路。家族であってもプライバシーは大事です。。
脇には奥行きたっぷりのストレージ付☆

こちらのお部屋は約12.3帖の洋室です。


壁一面に収納が設置されたマスターベッドルームにもよさそうなお部屋。は北東に位置しているのでリビングと比べると若干薄暗く感じるかもしれません。

それでも窓の外を覗いてみるとすがすがしい青空が広がっています。


正面の扉の向こうは図面上では2つに分かれている洋室ですが、撮影に行ってみると1つの大きなお部屋でした。

そのため扉が2つある少し変わった間取りとなっています。

収納は若干心寂しいモノがありますが、外の廊下のクローゼットを上手く使えばそんなに困ることもなさそう。斜めになった登り梁は家具が置きづらいという欠点もありますが、空間を広く感じさせてくれる効果もあるんですヾ(*´∀`*)ノ

リビングから続く広々としたバルコニー。南向きなので洗濯物もよく乾きそうです。

新宿の喧騒とはかけ離れた静かで落ち着きのある街並みが広がっています。
高台に位置するので眺望もスカッと抜けていますよ☆
【og13A14】