間取り図
価格改定
なら
仲介手数料 50% OFF
マンションは、“どこから買うか”で
支払う費用が変わります
仕組みを詳しく見る
月々の支払い目安を見る
※ローンの⽬安は、頭⾦ゼロ、借⼊年数35年、都市銀⾏・変動⾦利0.595%(優遇利⽤を想定。) 審査内容により、融資の⼀部または全部をご利⽤いただけない場合がございます。予めご了承ください。
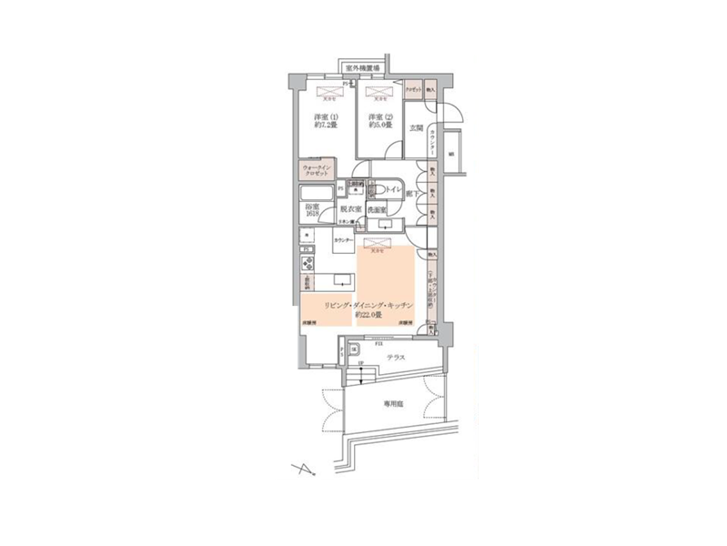
間取り図
105号室
編集部が実際に現地を訪れ、見たもの・感じたことをレポート。
図面だけでは伝わらない"リアルな空気感"をお届けします。
更新日:2026/03/17
更新日:2026/03/17
光とテラスが、日常をやわらかく広げる。

専有面積81㎡超のゆとりある2LDK。2026年2月にリノベーションが完了し、細部までこだわりを感じる美しい内装に仕上がっています。ペットと一緒に暮らせるのも嬉しいポイント。広さを活かした開放的な空間で、ゆったりとした時間を過ごしたりお気に入りのインテリアを楽しんだりと自分らしい暮らしを描けますよ✧

約22.0帖のゆとりあるリビングダイニングキッチン。空間の一面にあしらわれた木目の収納がアクセントとなり、さりげない存在感を放ちます。北東向きのやわらかな光が差し込み、インテリアを楽しむ余白もたっぷり。床暖房付きで、季節を問わず快適にお過ごしいただけますよ♩

キッチンはL型を採用し、コンロは壁側に配置された効率的なレイアウト。シンクの対面にはカウンターが設けられており、盛り付けや一時置き場としても使いやすいレイアウトです。動線がコンパクトにまとまっているため、料理の流れもスムーズ♥

木目の質感が印象的な一面収納が、リビングダイニングの主役に!たっぷりとした収納力で、日用品や細かなアイテムもすっきり収まりそうです。テレビボードとしても使えそうなデザインで、生活感を抑えつつすっきりとした美しい空間づくりが叶いますよ✧

ホワイトとグレーで整えられた、どこか都会的なパウダールーム。余計なものを置かない美しさと、洗面・脱衣を分けた機能性が心地よく共存しています。まるでホテルの一室のような空気感で、何気ない身支度の時間さえ少し特別に感じられそう♡

ゆったりとした1618サイズのバスルームは足を伸ばしても余裕があり、窮屈さを感じることなくリラックスできます。追い焚き機能付きで時間を気にせず入浴でき、浴室乾燥機も備わっているため、暮らしの利便性も◎毎日の疲れをしっかりとリセットしましょう。

お部屋の中でもひときわ目を惹くのが、テラスと専用庭の存在。合わせて約18㎡の広さを確保しており、開放的なプライベート空間として楽しめます。ちょっとしたアウトドア気分を味わったり、ペットと過ごしたりと、暮らしの幅を広げてくれる特別な場所に✿

第一印象を決める玄関から、すでにセンスの良さが光ります。カウンター収納とピクチャーレールを活かせば、自分らしいディスプレイも楽しめそう。さらに廊下には収納が3つ並び、日用品もすっきり収まる安心感。
その他の室内・設備写真
▲ このお部屋の雰囲気がお好みの方へ
東京グラウンド編集部の住まいレビュー
都営浅草線高輪台駅から徒歩5分、さらにビックターミナル品川駅も徒歩圏に収まる利便性の高い立地に佇む『高輪パークハウスコリーヌ』。都心に近いポジションでありながら、周囲には落ち着いた住宅街の空気が広がり、穏やかな時間を大切にできる住環境が印象的でした。
ご紹介したのは1階部分の2LDK、地上階ならではのゆったりとしたテラス&専用庭も備わっています。専有面積81.53㎡とゆったりとした空間設計となっており、室内に足を踏み入れると玄関からパウダールーム、約20.0帖のゆとりあるリビングダイニングキッチンが緩やかにつながっています。あえて扉を少ない構成にすることにより、両手がふさがっていてもスムーズに行き来することが可能に。玄関のカウンターやトイレのコーナーがアールになっており、モダンでスタイリッシュな内装の中に柔らかさが共存していました。約5.0帖と約7.2帖の洋室はそれぞれしっかり独立性があり、寝室と書斎、主寝室と子供部屋などライフスタイルに合わせた使い分けができそうです。
開放感、独立性、デザイン性、機能性すべてのバランスが良い計算されつくした一室でした。是非一度内見してみてくださいね。 ライター:kayo【26B20】
この物件の毎月の支払いイメージを
試算してみませんか?
頭金や返済年数などを入力するだけで毎月の合計支払額をシミュレーションできます。
27,900
毎月の支払い予想シミュレーション
※試算結果はあくまで目安であり、実際の借り入れを保証するものではありません。
※物件によっては上記以外の別途費用が発生する場合もございます。詳しくはお問い合わせくださいませ。
住戸概要
[都心動線を味方に] 高輪パークハウスコリーヌ
品川駅
徒歩10分

緑に包まれた穏やかな邸宅地に佇む、低層レジデンス『高輪パークハウスコリーヌ』。2003年1月築、地上5階建・総戸数37戸の、落ち着きある住まいで、やわらかなクリーム色の外壁が街並みに優しく溶け込みます。

雨の日も気兼ねなく使える屋内タイプの駐輪場。外にさらされないため、自転車の劣化を防ぎやすいのも嬉しいポイントです。

オートロックに加え、ディンプルキーを採用した安心のセキュリティ体制。エントランスを抜けると、管理人室とゆったりとしたソファが配置されたロビーが広がり、穏やかな時間が流れます。

敷地内には駐輪場の他に駐車場を完備。シャッターゲート付きで外部からの侵入を抑え、安心感のあるつくりでした。さらにターンテーブルも設置されており、車の出し入れもスムーズ◎
その他の共用部・設備写真
物件概要
設備・特徴
エレベーター オートロック 宅配BOX トランクルーム 防犯カメラ 新耐震基準適合
都心の主要ターミナルのひとつである品川は、ビジネスと暮らしが心地よく共存するエリア。駅周辺には商業施設や飲食店が充実しつつ、少し歩けば落ち着いた住宅街や緑も感じられるバランスの良さが魅力です。なかでも「品川シーズンテラス」や「高輪森の公園」は、都心にいながらリフレッシュできるスポット。さらに新幹線や羽田空港へのアクセスも良好で、全国・海外への移動もスムーズ。オンもオフも軽やかに過ごせる、利便性の高いロケーションですよ♩
アクセス
JR山手線/京浜東北線/常磐線/横須賀線/東海道本線/東海道新幹線/京急本線 『品川』駅 徒歩10分
買い物
学区
※掲載している学区情報は、記事制作時点での参考情報です。
区域によっては学校の指定が異なる場合もありますので、詳細は必ずご確認ください。
その他