間取り図
なら
仲介手数料 30% OFF
マンションは、“どこから買うか”で
支払う費用が変わります
仕組みを詳しく見る
月々の支払い目安を見る
※ローンの⽬安は、頭⾦ゼロ、借⼊年数35年、都市銀⾏・変動⾦利0.595%(優遇利⽤を想定。) 審査内容により、融資の⼀部または全部をご利⽤いただけない場合がございます。予めご了承ください。
間取り図
25F
編集部が実際に現地を訪れ、見たもの・感じたことをレポート。
図面だけでは伝わらない"リアルな空気感"をお届けします。
更新日:2025/11/28
更新日:2025/11/28
文句なしの収納力

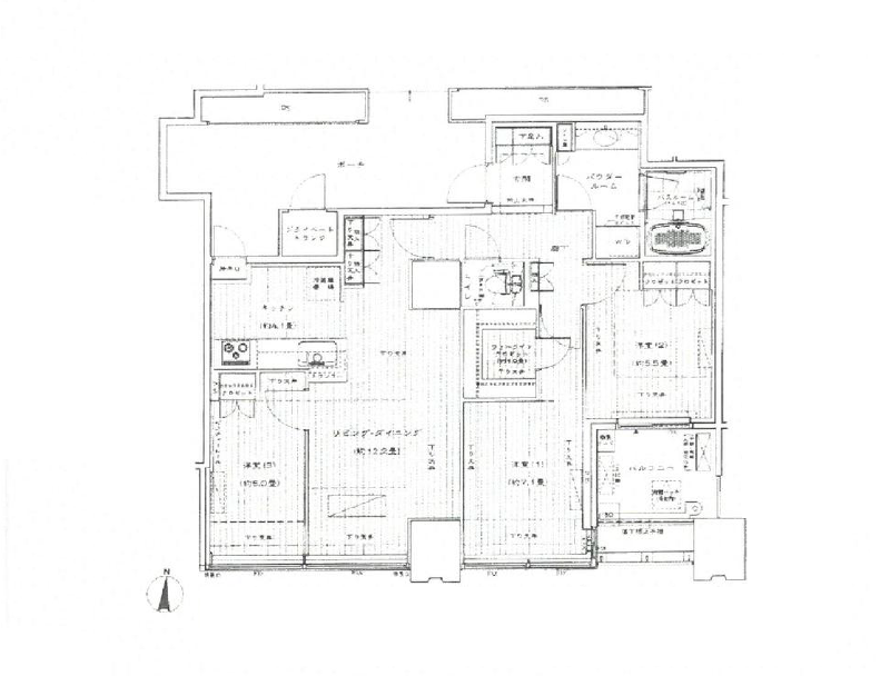
高層階25階に位置している、ファミリータイプの3LDKをご紹介します。現在は居住中で新規でリノベーションはされていませんが、2020年3月にリノベーションが実施されているので綺麗な状態が保たれています。

リビングダイニングはおよそ12.1帖、キッチンだけでおよそ3.5帖もの広さがあります。これだけゆとりがあれば余裕を持って暮らすことができそう◎IHクッキングヒーターやコンベック、食洗機、ディスポーザーなど便利な機能が満載です。

お部屋の前には8.69㎡もの大きなポーチがあり、プライベートトランクを備えています。ツーロックドアを開けると…真っ白な玄関がお出迎え!シューズボックス以外にワイドなシューズインクローゼットがあり、収納力バッチリ。

サニタリールームは廊下を進んで右手部分に。バスルームへ続くクリアなドアや大きなミラーが開放感をもたらしています。カウンターが広いので使い勝手が良さそうですね♪

サニタリールームからも見えていたバスルームは、窓が備わったビューバスになっています!お風呂に入りながら美しい景色をお楽しみいただけますよ。1418サイズなので、お子様と一緒に入浴する際も狭さを感じにくいはず。

スッキリとした見た目が美しいタンクレスタイプのトイレ。凹凸が少ないのでお手入れがしやすいというメリットも。独立した手洗い場があり、サニタリールームまで行かずに手を綺麗にすることができますね◎

東向きのバルコニーは12.96㎡のワイドな空間。リビングダイニングと約6.8帖・ 約5.2帖の洋室2部屋に面していますよ。もう1部屋の約5.0帖の洋室には窓が無さそうでした。その分時間帯を気にせずにお休みいただけますね。夜勤がある方の寝室やお子様のお昼寝場所にもピッタリ。

バルコニーからの眺望は日中ももちろん素敵ですが、夜になるとその真価を発揮します!お台場方面に面していて、ライトアップされたレインボーブリッジなどを望むことができるんです。ベイエリアならではの眺望ですよね。
その他の室内・設備写真
東京グラウンド編集部の住まいレビュー
今回ご紹介するのは天王洲アイル駅から徒歩5分の場所にあるタワーマンション、『ワールドシティタワーズアクアタワー』。青空に溶け込むようなガラス貼りの美しいデザインで、過去にはグッドデザイン賞を受賞しているんです!実際に駅から歩いてみるとやや距離を感じましたが、周辺環境が充実していて暮らしにくいとは思わないはず。マンション内にスーパーやクリニック、カフェがある上に、すぐ近くに大きな公園や保育園・幼稚園・小学校・中学校・大学のキャンパスがあり、教育環境はバッチリ◎まるで1つの街が凝縮したかのような、便利な住環境です。居住者専用の品川駅行のバスが利用できる点も、通勤のストレスを緩和してくれるはず。今回ご紹介するのは白を基調とした明るい3LDK。ご家族やペットとのびのび暮らせる間取りになっています。キッチンやサニタリールームなど水回りの機能性が高く、忙しい毎日をサポートしてくれますよ♪シューズインクローゼットやプライベートトランクなど収納が充実しているのも魅力的。バルコニーからの眺望も美しいので、ぜひ現地でご確認くださいね。 ライター:mii【25J25】
この物件の毎月の支払いイメージを
試算してみませんか?
頭金や返済年数などを入力するだけで毎月の合計支払額をシミュレーションできます。
19,500
毎月の支払い予想シミュレーション
※試算結果はあくまで目安であり、実際の借り入れを保証するものではありません。
※物件によっては上記以外の別途費用が発生する場合もございます。詳しくはお問い合わせくださいませ。
住戸概要
こちらのお部屋は販売終了いたしました
過去に販売したお部屋の一部をご紹介。
住まい探しやリノベーションのヒントにご覧ください。
水辺に佇むタワーマンション



東京グラウンド編集部の住まいレビュー
東京モノレール・りんかい線 天王洲アイル駅から徒歩9分の場所に位置するタワーマンション、『ワールドシティタワーズアクアタワー』。ビッグターミナル品川駅にも歩いて行くことは可能ですが、橋を渡ったりとかなり距離があるので、お車やバイクを使えば品川駅方面にもスムーズにお出かけできるはず。「ワールドシティタワーズ」内にスーパーやクリニック、カフェなどがあり、駅前に行かずにお買い物やお食事などを済ませられるのは嬉しいですよね。周辺には大きな公園や教育環境も整っていて、お子様のいらっしゃるご家族にもオススメのロケーションと言えます。今回は、そんなワールドシティタワーズアクアタワーの最上階に位置するメゾネットタイプの3LDKへ。ハイグレード仕様のお部屋は魅力が満載ですが、私が特にオススメしたいのは広々としたリビングダイニングキッチンです。角部屋ならではのコーナーサッシに加え、2階部分が吹き抜けになっていて開放感抜群ですよ。家具の配置がしやすく、レイアウトの自由度が高いのが魅力の1つ。また、ルーフバルコニーのジャグジーも必見です。美しい夜景を眺めながら、ご家族とのんびりリラックスしてみては。特別感のあるこちらのお部屋、ぜひ一度ご内覧ください。
《設備・条件・住宅性能》
〇最上階39階・40階に位置するメゾネットの3LDKをご紹介。専有面積130.80㎡の広々空間。
〇主要採光面は北西向きですが、角部屋なので窓が多く開放的です。
〇ペットの飼育が可能。リノベーションはされていないので、多少の使用感があります。
〇玄関前にはゆったりしたポーチを備えており、プライバシーを保ってくれますよ。トランクルームも完備。
〇39階部分はトイレ、約7.0帖と約6.2帖の洋室2部屋、リビングダイニングキッチンが配置されています。
〇リビングダイニングキッチンはおよそ24.8帖の広々空間。2面に窓がある上吹き抜けになっていて、とっても開放的。
〇床暖房とエアコンがあり、お引越しの初日から快適に過ごせますよ。
〇独立型のキッチンには食洗機やディスポーザー、カップボードなどを完備。
〇キッチンからもポーチに出入りが可能。動線の良い造りになっています。
〇メインルーム前のバルコニーへは約6.2帖の洋室から出入りが可能。
〇40階部分には10帖ほどの広さがある洋室と、2つ目のトイレ、サニタリールームが。
〇約10帖の洋室に大きなウォークインクローゼットがあり、たくさん荷物をしまえます。
〇サニタリールームには洗面化粧台と洗濯機置き場、リネン庫、バスルームがまとまっていました。
〇2ボウルタイプの洗面化粧台ならご家族と並んでご使用いただけます。
〇バスルームには追い焚き機能や浴室換気乾燥機をご用意。快適なバスタイムをサポートします。
〇サニタリールームからはルーフバルコニーへ出入りが可能。バルコニーは2面合わせて42㎡。
〇ルーフバルコニーにはジャグジーがあり、美しい景色を楽しみながら贅沢な時間を過ごせます。 ライター:mii【24C22】
こちらのお部屋は販売終了いたしました
過去に販売したお部屋の一部をご紹介。
住まい探しやリノベーションのヒントにご覧ください。
水平線を望みながら暮らす




東京グラウンド編集部の住まいレビュー
今回の舞台は東京モノレールとりんかい線の2路線が利用できる天王洲アイル駅です。りんかい線にはJR埼京線と直通している便があり、渋谷駅や新宿駅、池袋駅といった東京の主要駅にスムーズにアクセスすることが可能。運河があちこちに流れていて、美しい景色を楽しみながらお出かけできるのも嬉しいですね。3棟からなる大規模タワーレジデンス『ワールドシティタワーズ』から、今回は『ワールドシティタワーズアクアタワー』をご紹介します。1番運河に近い配置になっていて、エントランスホールからは南国のリゾートのような眺めを楽しめます。キッズランドという施設がリニューアルオープンしたようなので、お子様とぜひご利用くださいね。今回のお目当ては、高層階21階に位置する2LDK。高級感がありつつも、木目が多用され居心地の良い空間に仕上がっています。私のイチオシは、嬉しい機能が満載のサニタリールームです。特にゆったりした造りで、ご家族と一緒にご入浴しても狭さを感じにくいはず。水回りがまとまった配置になっていて、お掃除やお洗濯がしやすい動線の良さも魅力的です。デザイン性にも機能性にも優れたこちらの2LDK、是非一度ご覧ください。 ライター:mii【24H12】
[水辺に佇むタワーマンション] ワールドシティタワーズアクアタワー
天王洲アイル駅
徒歩4分

「アクアタワー」「ブリーズタワー」「キャピタルタワー」の3棟から成る『ワールドシティタワーズ』。実はそれぞれの建物が地下で繋がっていて1棟として数えられるため、日本最大の超高層集合住宅と言われています。総戸数は驚きの2,090戸。

圧倒的な存在感を誇るアプローチを進みましょう。ちなみにこの辺りから居住者専用のシャトルバスを利用でき、品川駅までは約5分でアクセスできます。敷地内には他にもスーパーやクリニックなど設備が充実しています。

ガラス貼りのエントランスにはオートロックを完備。24時間有人管理・制震構造で、安心安全な住まいと言えます。天井が高く開放的なエントランスホールでは、コンシェルジュサービスも利用できます。

エレベーターは行き先によって4カ所に分かれているので、迷わないようご注意くださいね。1カ所につき3基設置され、待ち時間が軽減されています。タッチキー式なのでセキュリティ面もバッチリ。各フロアにクリーンステーションがあるのもポイントです。
その他の共用部・設備写真
物件概要
設備・特徴
エレベーター オートロック 宅配BOX トランクルーム 防犯カメラ 24時間有人管理(夜間警備員)24時間ゴミ出し可各階ダストステーション洗車機セントラルパークビュースタジオスタディブースリラクゼーションルームアリーナガーデンコンシェルジュサービスアクアサイトプールジャグジーキッズプールトレーニングジムフィットネススタジオトレーニングジムウェルネスバススカイガーデンスカイダイニング居住者専用シャトルバス(品川駅~ワールドシティタワーズ ※120円/1回 6時から25時頃まで運行) 新耐震基準適合 大規模修繕履歴有 長期修繕計画有 建物状況調査済 免震構造 制震構造
テナント
マルエツ 港南ワールドシティ店クリニックカフェ
再開発で人気が高まる天王洲アイル駅。りんかい線と東京モノレールの2路線が利用できるこちらの駅からは、渋谷駅まで乗り換えなしで約15分とアクセス良好です。さらに、山手線をはじめ複数路線が利用可能な品川駅も徒歩圏内の好立地。劇場や商業施設、ホテルが集まった高層ビル群「シーフォートスクエア」や、さまざまな飲食店やフィットネスクラブが利用できる「スフィアタワー天王洲」などが駅前に。オフィス街ながら、生活しやすそうな印象でした。マンション周辺の歩道は緑が多く、しっかりと整備されているのが印象的でした。自転車と歩行者のエリアが分けられている箇所も。
アクセス
東京モノレール/りんかい線 『天王洲アイル』駅 徒歩4分
JR山手線/京浜東北線/常磐線/横須賀線/東海道本線/東海道新幹線/京急本線 『品川』駅 徒歩14分
買い物
学区
※掲載している学区情報は、記事制作時点での参考情報です。
区域によっては学校の指定が異なる場合もありますので、詳細は必ずご確認ください。
その他
こちらの物件は弊社運営の別サイトでもご紹介中♪
ワールドシティタワーズキャピタルタワーもご紹介中
ワールドシティタワーズブリーズタワーもご紹介中