間取り図
価格改定
なら
仲介手数料 無料!
追加費用も一切なし
マンションは、“どこから買うか”で
支払う費用が変わります
仕組みを詳しく見る
月々の支払い目安を見る
※ローンの⽬安は、頭⾦ゼロ、借⼊年数35年、都市銀⾏・変動⾦利0.595%(優遇利⽤を想定。) 審査内容により、融資の⼀部または全部をご利⽤いただけない場合がございます。予めご了承ください。
間取り図
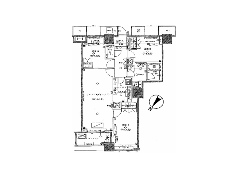
5519号室
編集部が実際に現地を訪れ、見たもの・感じたことをレポート。
図面だけでは伝わらない"リアルな空気感"をお届けします。
更新日:2026/01/08
更新日:2026/01/08
都心の眺望とくつろぎを享受する

約22帖のリビングダイニングは、大きな窓から広がる伸びやかな眺望が印象的で、足を踏み入れた瞬間に“都心で暮らす心地よさ”を実感できる空間です。高層階ならではの、時間帯ごとに表情の変わる眺望が日々の暮らしに彩りを添えます。

どんな色の家具やカーテンも合わせやすいナチュラルテイストな内装デザイン♡開放的でありながら落ち着きも感じられるバランスの良い空間で、家族それぞれが思い思いに過ごしながらも、一体感のある生活を育んでいけそう。

天井高が2.62㎡。一部アクセントクロスが採用されています。リビングには天井カセットエアコン&床暖房を搭載しているので、引越し直後から快適な暮らしをスタートできます。

約4.5帖のキッチンスペースには、食洗機付きのシステムキッチンを完備。コンロやシンクまわりにもゆとりがあり、複数人での調理もしやすいレイアウトです。背面にはカップボードや収納スペースが配置されているため、キッチン用品や食材を整然とまとめることができます。

窓の先に広がる眺望は、この住戸ならではの大きな魅力です。高層階から見える都市風景は遠くまで抜け、昼間は光が反射するビル群、夕方は空のグラデーション、夜にはきらめく夜景へと表情が変わり、日常の中に豊かな時間をもたらします。

3つの洋室は、いずれも独立性の高い配置で、プライベート空間として静かに過ごせる間取りです。それぞれに収納が配置されており、衣類や生活用品をすっきりまとめられる点も魅力。家族それぞれのライフスタイルを尊重しながら暮らしを組み立てられる、ゆとりある洋室群です。

なんとバスルームの手前には個室サウナが設置されていました。周囲を気にせず利用できるため、温度や入浴時間を体調や気分に合わせて調整しやすいのが魅力。移動の手間なく自宅で完結するため、忙しい日でも気軽にリフレッシュできます。

玄関は上質な素材が使われ、ホテルのような落ち着いた雰囲気が広がっています。扉を開けた瞬間に感じる抑えた照明と温かみのある色調が、帰宅時の気持ちを自然とほぐしてくれます。シューズインクローゼットが備わっており、靴やアウトドア用品をしっかり収納できるため、玄関まわりをいつでも整った状態に保てます。
その他の室内・設備写真
▲ このお部屋の雰囲気がお好みの方へ
東京グラウンド編集部の住まいレビュー
勝どき駅から徒歩6分という好立地に位置する『THE TOKYO TOWERS SEA TOWER(ザトーキョータワーズシータワー)』をご紹介します。再開発が進むエリアにあり、日常の利便性と新しい街並みの魅力をどちらも味わえます。免震構造を採用し、総戸数1,333戸の大規模マンションとして管理体制も整っています。オートロックやコンシェルジュサービスなどセキュリティ面も充実。ご紹介のお部屋は専有面積110.23㎡とゆとりある広さ。約22帖のリビングダイニングからは開放的な眺望が広がり、窓から差し込む光が心地よい時間を演出します。8.1帖程の主寝室をはじめ各洋室は収納を確保し、ウォークインクローゼットとシューズインクローゼットが備わるなど設備充実の間取り。キッチンはおおよそ4.5帖で作業スペースにゆとりがあります。個室サウナが新設されている点もこの住戸ならではの魅力です。さらにキッチンスペースにはワインセラーを完備。そんなラグジュアリーな都心生活にぴったりなお部屋をぜひ一度ご内覧ください♡ ライター:rei【25L09】
この物件の毎月の支払いイメージを
試算してみませんか?
頭金や返済年数などを入力するだけで毎月の合計支払額をシミュレーションできます。
28,980
毎月の支払い予想シミュレーション
※試算結果はあくまで目安であり、実際の借り入れを保証するものではありません。
※物件によっては上記以外の別途費用が発生する場合もございます。詳しくはお問い合わせくださいませ。
住戸概要
間取り図
なら
仲介手数料 無料!
追加費用も一切なし
マンションは、“どこから買うか”で
支払う費用が変わります
仕組みを詳しく見る
月々の支払い目安を見る
※ローンの⽬安は、頭⾦ゼロ、借⼊年数35年、都市銀⾏・変動⾦利0.595%(優遇利⽤を想定。) 審査内容により、融資の⼀部または全部をご利⽤いただけない場合がございます。予めご了承ください。
間取り図
3014号室
この物件の毎月の支払いイメージを
試算してみませんか?
頭金や返済年数などを入力するだけで毎月の合計支払額をシミュレーションできます。
17,480
毎月の支払い予想シミュレーション
※試算結果はあくまで目安であり、実際の借り入れを保証するものではありません。
※物件によっては上記以外の別途費用が発生する場合もございます。詳しくはお問い合わせくださいませ。
住戸概要
間取り図
なら
仲介手数料 無料!
追加費用も一切なし
マンションは、“どこから買うか”で
支払う費用が変わります
仕組みを詳しく見る
月々の支払い目安を見る
※ローンの⽬安は、頭⾦ゼロ、借⼊年数35年、都市銀⾏・変動⾦利0.595%(優遇利⽤を想定。) 審査内容により、融資の⼀部または全部をご利⽤いただけない場合がございます。予めご了承ください。
間取り図
4417号室
この物件の毎月の支払いイメージを
試算してみませんか?
頭金や返済年数などを入力するだけで毎月の合計支払額をシミュレーションできます。
19,200
毎月の支払い予想シミュレーション
※試算結果はあくまで目安であり、実際の借り入れを保証するものではありません。
※物件によっては上記以外の別途費用が発生する場合もございます。詳しくはお問い合わせくださいませ。
住戸概要
[運河の庭園へようこそ] THE TOKYO TOWERS SEA TOWER(ザトーキョータワーズシータワー)
勝どき駅
徒歩6分

今回ご紹介する『THE TOKYO TOWERS』は、『MID TOWER』と『SEA TOWER』のツインタワーから成る大規模レジデンスです。総戸数は2棟合わせて2,797戸。耐震・免震・制震構造になっていて地震に強いのが特徴です。

エスカレーターを利用して、3階部分へ向かいましょう。2つのタワーの中心には、「アクアステージ」が広がっています。カフェテラスのような開放的な空間。その先に広がる「パークアベニュー」では、お弁当を食べたり、日向ぼっこをしたり、居住者が思い思いのときを過ごす姿が見受けられました。

タッチキー式のオートロックの先には、広々としたエントランスラウンジが広がっていました。水が流れていて、涼やかな印象です。こちらではコンシェルジュサービスもご利用いただけます。

『MID TOWER』はお部屋の階によってエントランスが分けられていますが、『SEA TOWER』はエレベーターホールが2つに分けられていました。ダブルオートロックでしっかり守られています。24時間有人管理なのも嬉しいポイントですよね。
その他の共用部・設備写真
物件概要
設備・特徴
エレベーター オートロック 宅配BOX トランクルーム 防犯カメラ 24時間有人管理コンシェルジュサービス各階ダストステーション24時間ゴミ出し可パーティールームスカイゲストルーム保育所 新耐震基準適合 長期修繕計画有 免震構造 制震構造 オール電化
勝どき駅は、都心へのアクセスと湾岸エリアならではの開放感を同時に得られる点が大きな魅力。大江戸線で汐留・新宿方面へスムーズに移動でき、通勤やお出かけが効率的。駅周辺は再開発が進み、生活利便施設が充実しているため、日々の買い物や外食もしやすい環境です。運河沿いの散歩道や広々とした空が楽しめるロケーションは、都会にいながら心がほどけるようなゆとりを感じられます。利便性と住みやすさを両立した人気の高い生活拠点です。
アクセス
都営大江戸線 『勝どき』駅 徒歩6分
東京メトロ有楽町線/都営大江戸線 『月島』駅 徒歩14分
買い物
学区
※掲載している学区情報は、記事制作時点での参考情報です。
区域によっては学校の指定が異なる場合もありますので、詳細は必ずご確認ください。
その他
こちらの物件は弊社運営の別サイトでもご紹介中♪
THE TOKYO TOWERS MID TOWER(ザトーキョータワーズミッドタワー)もご紹介中