間取り図
価格改定
なら
仲介手数料 30% OFF
マンションは、“どこから買うか”で
支払う費用が変わります
仕組みを詳しく見る
月々の支払い目安を見る
※ローンの⽬安は、頭⾦ゼロ、借⼊年数35年、都市銀⾏・変動⾦利0.595%(優遇利⽤を想定。) 審査内容により、融資の⼀部または全部をご利⽤いただけない場合がございます。予めご了承ください。
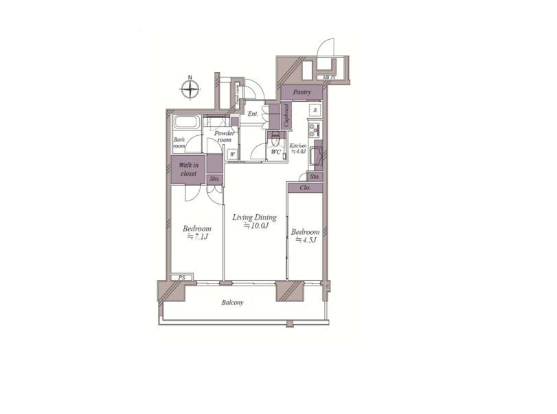
間取り図
1507号室
この物件の毎月の支払いイメージを
試算してみませんか?
頭金や返済年数などを入力するだけで毎月の合計支払額をシミュレーションできます。
12,280
毎月の支払い予想シミュレーション
※試算結果はあくまで目安であり、実際の借り入れを保証するものではありません。
※物件によっては上記以外の別途費用が発生する場合もございます。詳しくはお問い合わせくださいませ。
住戸概要
こちらのお部屋は販売終了いたしました
過去に販売したお部屋の一部をご紹介。
住まい探しやリノベーションのヒントにご覧ください。
東京グラウンド編集部の住まいレビュー
地上43階建て、総戸数825戸というスケールを誇るランドマークタワー。足元から見上げると、その高さと堂々としたフォルムに思わず息をのみます。エントランスへ足を踏み入れると、まず感じるのはホテルのような上質感。開放的なラウンジでは自動演奏のピアノが静かに音楽を奏で、やわらかな旋律が空間全体を優しく包み込んでいました。さらに共用施設も実に充実◎フィットネスジムで汗を流し、ガーデンラウンジで緑を感じながらひと息。スカイラウンジやスカイデッキからは都心と湾岸エリアを望む開放的な眺望が広がります。大切なゲストを迎える際にはゲストルームを利用できるのも心強いポイント。
今回ご紹介するのは、そんなタワーの22階部分に位置する2LDK住戸。専有面積は62.67㎡と、カップルやご夫婦での暮らしにちょうどよいゆとりある広さです。南向きの大きな開口部からたっぷりと陽光が差し込み、思わず「明るい!」と声が出るほど。高層階ならではの抜け感も相まって、心地よい開放感に包まれました。さらにペットの飼育も可能。愛犬や愛猫とともに、この明るい空間で穏やかな日々を重ねていけるのは大きな魅力。即入居可能という点も新生活をスムーズに始めたい方には嬉しい条件ですね♪
そしてこの住戸ならではの魅力が約4.6帖の和室。タワーマンションでは珍しい存在です。レトロすぎないナチュラルなデザインで、洋の空間とも違和感なく調和しています。畳の上に腰を下ろすと、どこかほっとする安心感。布団を敷いて寝室として使うのはもちろん、客間やリラックススペースとしても重宝しそうです。現代的なタワーの中にやさしい和のエッセンスが息づく空間でした。
駅から続く洗練された街並み、ホテルのような共用部、そして光あふれる室内空間。実際に足を運んでみると、この住まいが単なる“高層マンション”ではなく、日常そのものを豊かにする舞台であることを実感できます◎ ライター:hana【26B27】
こちらのお部屋は販売終了いたしました
過去に販売したお部屋の一部をご紹介。
住まい探しやリノベーションのヒントにご覧ください。
東京グラウンド編集部の住まいレビュー
東京メトロ有楽町線とゆりかもめの2路線が利用可能な豊洲駅。池袋駅やお台場方面まで1本でお出かけできます。また、JR京葉線が利用できる越中島駅もマンションの徒歩圏内にあり、東京駅まで電車で2駅5分でアクセス可能です。通勤・通学はもちろん、お休みの日のお出かけもしやすい好立地と言えますね♩『ザ・豊洲タワー』は、豊洲駅から歩いて6分の場所に。駅前の「晴海通り」から離れているので車や人の往来は少なめです。小さなお子さまも安心して登下校できそうだと感じました。マンション内は高級ホテルのようなラグジュアリーなデザインで、特別感満載。マンション内の共用施設が充実しており外出しなくても素敵な時間をお過ごしいただけます。43階建てのマンションなのでエレベーターは呼び出してから到着までにやや時間が掛かることも。通勤時間帯などはお時間に余裕を持ってお出かけするのをオススメします◎今回ご紹介する2LDKは、温かみを感じるナチュラルテイスト仕様の2LDKです。主採光は北側ですが、照明がしっかり設置されているので室内はとても明るかったです。北向きな分、陽差しや家具が日焼けしにくい上に、眺望が綺麗に見えるというメリットも。パートナーと2人で住み始めて、その後ライフステージが変わっても快適にお過ごしいただけます。 ライター:mii【25G01】
こちらのお部屋は販売終了いたしました
過去に販売したお部屋の一部をご紹介。
住まい探しやリノベーションのヒントにご覧ください。
東京グラウンド編集部の住まいレビュー
埋め立てにより綺麗に整備された街が広がる豊洲駅。電柱が地中に埋められているので、開放的な景色をお楽しみいただけます。また大型の商業施設が駅周辺に多く、お買い物しやすいのが特徴です。『ザ・豊洲タワー(THE TOYOSU TOWER)』周辺には公園や小学校などの教育環境が整っているので、子育てがしやすそうな住環境だと感じました。運河沿いで圧倒的な存在感を放つ『ザ・豊洲タワー(THE TOYOSU TOWER)』。マンション内はどこも特別感漂う仕様になっていて、ハイグレードなホテルにいるような感覚になりました。マンション内にコンビニがあったり、共用施設が充実していたりと、タワーマンションならではの魅力が満載です◎今回は高層階21階に位置する2LDKをご紹介。シンプルながら高級感のあるデザインで、家具のテイストを統一すればもっと素敵な雰囲気になるはず。デザインはもちろん、機能性の高さも文句なし。キッチンやサニタリールームなど水回りが一新されていて、快適な新生活をスタートできますよ♬ベイエリアならではの眺望には思わず息を吞みました。ぜひ現地でご覧いただきたいお部屋です。 ライター:mii【25B12】
[進化する湾岸ライフ] ザ・豊洲タワー(THE TOYOSU TOWER)
豊洲駅
徒歩6分

43階建てのタワーマンション『ザ・豊洲タワー(THE TOYOSU TOWER)』。総戸数は驚きの825戸です。ダブルチューブ工法を取り入れた免震構造で、地震などの揺れを防ぐのはもちろん、梁や柱が目立たないスタイリッシュな外観に。撮影した2025年7月には大規模修繕工事を実施中でした。

緑豊かなアプローチを抜け、エントランスへ。車寄せがあり、お車への乗り降りがスムーズに行えます。ALSOK綜合警備保障と共同開発したトータルセキュリティシステム、「プリズムアイ」を採用。24時間有人管理やダブルオートロックなど、充実したトリプルセキュリティ体制を備えていますよ。コンシェルジュサービスもご利用いただけます。

エスカレーターを上がると、開放的なラウンジが。自動演奏のピアノが素敵な音楽を奏でています。他にもフィットネスジムやガーデンラウンジ、トランクルーム、スカイラウンジ、スカイデッキ、ゲストルームなどをご利用いただけますよ。各フロアに24時間ゴミ出し可能なゴミ置き場があるのも便利です。

ダブルオートロックの先に広がる豪華なエレベーターホールには、複数のエレベーターが稼働しています。フロアによって利用できるものが決まっており、混雑緩和が期待できます。キーをかざさないと動かない、セキュリティ万全のエレベーターで上階へ。
その他の共用部・設備写真
物件概要
設備・特徴
エレベーター オートロック 宅配BOX トランクルーム 防犯カメラ 各階ダストステーション24時間ゴミ出し可コンシェルジュサービス24時間有人管理(夜間警備員)フィットネスジムライブラリーコンビニエンスストアマルチルームキッズルームガーデンダイニング 新耐震基準適合 大規模修繕履歴有 長期修繕計画有 免震構造 オール電化
再開発で人気が高まる豊洲駅。駅周辺にショッピングモール「アーバンドック ららぽーと豊洲」やホームセンター「スーパービバホーム 豊洲店」があり、お買い物には困りません。マンションの近くには学校や大きなグラウンドを有する公園も。子育て中のファミリーにも住みやすいエリアですね。マンション内にコンビニや小さな公園があるのもポイント。
アクセス
東京メトロ有楽町線/ゆりかもめ 『豊洲』駅 徒歩6分
JR京葉線 『越中島』駅 徒歩19分
買い物
学区
※掲載している学区情報は、記事制作時点での参考情報です。
区域によっては学校の指定が異なる場合もありますので、詳細は必ずご確認ください。
その他
こちらの物件は弊社運営の別サイトでもご紹介中♪