間取り図
価格改定
なら
仲介手数料 無料!
追加費用も一切なし
マンションは、“どこから買うか”で
支払う費用が変わります
仕組みを詳しく見る
月々の支払い目安を見る
※ローンの⽬安は、頭⾦ゼロ、借⼊年数35年、都市銀⾏・変動⾦利0.595%(優遇利⽤を想定。) 審査内容により、融資の⼀部または全部をご利⽤いただけない場合がございます。予めご了承ください。
間取り図
2F
編集部が実際に現地を訪れ、見たもの・感じたことをレポート。
図面だけでは伝わらない"リアルな空気感"をお届けします。
更新日:2026/04/28
更新日:2026/04/28
ドラマチックな毎日を

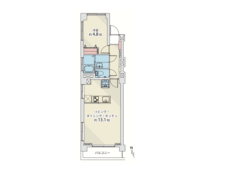
メインとなるのは、約11.4帖のリビングダイニングキッチン。2面採光で陽当たりが良く、日中は明るく、夜は落ち着いた雰囲気に。日々の何気ない時間を心地よく過ごせる、ちょうどいい広さのリビングです。リノベーションによってフローリングや建具が新しく整えられ、ダウンライトのやわらかな光が空間全体を包み込むように演出しています。

キッチンと一体となったレイアウトにより、料理をしながらでも自然と室内全体に視線が広がり、圧迫感を感じにくいのが特徴。ダイニングテーブルとソファをバランスよく配置すれば、食事とくつろぎの場を無理なく共存させることができます。エアコン1基が備わっているので、引越し直後から快適な暮らしをスタートできそう。

キッチンは新規交換されたシステムキッチンを採用し、清潔感と使いやすさが整えられています。コンパクトながらも調理スペースが確保されており、日々の料理を無理なくこなせる設計。奥にはパントリーがあるので、かさばりやすい調理家電や食器類、ストック用の食材などもたっぷり収納できます。

ユニットバスは新規交換され、清潔感のある落ち着いた空間に整えられます。浴室乾燥機も新設され、雨の日の洗濯や湿気対策にも活躍します。入浴からリラックスへと自然に切り替わる時間を支えてくれる、日常の中の大切な場所。忙しい日でも短時間でリフレッシュでき、休日にはゆっくりとくつろげる、使い勝手の良いバスルームです。

約4.4帖の洋室は、寝室として落ち着いて使えるコンパクトなプライベート空間です。ベッドを配置しながらも動線を確保しやすく、無駄のないレイアウトが特徴。こちらも2面採光でお部屋全体がポカポカと温かく、明るい空間です♪クローゼットも備わっているため、衣類や日用品を整理しやすく、空間をすっきりと保ちやすい点も魅力。

リビングに面したバルコニーは、室内に光と風を取り込む役割を担う空間です。窓を開けると外の空気がやわらかく流れ込み、室内の空気を自然に入れ替えることができます。視線が外へ抜けることで室内にも広がりを感じられ、日常の中にさりげない開放感を与えてくれる存在。南向きなので、洗濯物もよく乾きます。

玄関はすっきりと整えられた印象で、住まいの入口として落ち着いた雰囲気をつくっています。シューズボックス付きなので、靴や外出用品を整理しやすいのが特徴。玄関から廊下を通って室内へと続く配置のため、居住スペースが直接見えにくく、プライバシーにも配慮されています。帰宅時に自然と気持ちを切り替えられる空間です。

トイレも新規交換され、清潔感のある落ち着いた空間に整えられています。シンプルなつくりで日常的に使いやすく、リノベーションによって気持ちよく使い始められるのが魅力。日々の生活を支える設備として安心感のあるトイレです。お掃除用品やトイレットペーパーは、吊戸棚におまとめ下さい。
その他の室内・設備写真
▲ このお部屋の雰囲気がお好みの方へ
東京グラウンド編集部の住まいレビュー
東急東横線学芸大学駅から徒歩3分。昼夜問わず多くの人で賑わっていて、2024年には「世界で最もクールな街」にも選ばれたエリアです。
都心へのアクセスを身近に感じながら、周辺には「まいばすけっと」や「ファミリーマート」など日常使いしやすい店舗が点在し、暮らしやすさを実感できます。
駅近でありながら閑静な住宅街の落ち着きも感じられる『学芸大スカイマンション』は、鉄筋コンクリート造6階建。日勤管理によるセキュリティ面にも配慮されています。
ご紹介のお部屋は約40㎡台の1LDK。リビングと洋室がバランスよく配置された間取りです。
リノベーションにより新規交換のシステムキッチンやユニットバス、洗面化粧台など設備充実で、日当たり良好な空間に心地よさが広がります。
それぞれのお部屋は2面採光で、陽当たり&風通し良好。1年を通して快適にお過ごしいただけそう♪
都心近接で落ち着いた暮らしを求めるシングルやDINKsにおすすめ。ぜひ一度ご内覧にいらしてください。 ライター:rei【26C17】
この物件の毎月の支払いイメージを
試算してみませんか?
頭金や返済年数などを入力するだけで毎月の合計支払額をシミュレーションできます。
4,280
毎月の支払い予想シミュレーション
※試算結果はあくまで目安であり、実際の借り入れを保証するものではありません。
※物件によっては上記以外の別途費用が発生する場合もございます。詳しくはお問い合わせくださいませ。
住戸概要
間取り図
こちらの物件の仲介手数料は
個別にご案内いたします。
詳細をご希望の方は
お気軽にご相談ください。
お問い合わせはこちら
月々の支払い目安を見る
※ローンの⽬安は、頭⾦ゼロ、借⼊年数35年、都市銀⾏・変動⾦利0.595%(優遇利⽤を想定。) 審査内容により、融資の⼀部または全部をご利⽤いただけない場合がございます。予めご了承ください。
間取り図
201号室
この物件の毎月の支払いイメージを
試算してみませんか?
頭金や返済年数などを入力するだけで毎月の合計支払額をシミュレーションできます。
4,398
毎月の支払い予想シミュレーション
※試算結果はあくまで目安であり、実際の借り入れを保証するものではありません。
※物件によっては上記以外の別途費用が発生する場合もございます。詳しくはお問い合わせくださいませ。
住戸概要
こちらのお部屋は販売終了いたしました
過去に販売したお部屋の一部をご紹介。
住まい探しやリノベーションのヒントにご覧ください。
東京グラウンド編集部の住まいレビュー
今回ご紹介するのは、活気溢れる商店街が広がる学芸大学駅を最寄りとする好立地マンションです。スーパーやドラッグストア、100円ショップ、銀行、コンビニなど生活に便利な店舗は一通り揃っていて、生活至便な住環境。またオシャレなカフェやスイーツ店、居酒屋さんなども多く、グルメな方にもたまらない街ですよ。そんな幅広い世代に人気のある学芸大学駅から、歩いてすぐのところにある学芸大スカイマンションは、レトロな雰囲気が素敵な6階建て。室内フルリノベーションが施された1DKのご紹介です。”南西向きの角部屋”という好条件につき、陽当たり&風通しは抜群。1年を通してポカポカと温かくお過ごしいただけますよ。約3.8帖の洋室は北向きに位置していますが、こちらも2面採光で陽当たり良好。木の温もり溢れるナチュラルな内装は、どんな色の家具やカーテンも合わせやすく、季節に合わせたインテリアをお楽しみいただますよ。クローゼットはもちろん、廊下やサニタリールームなど収納部分も充実しているので、年々増えていくお荷物にも対応可能。一人暮らしやカップルにもオススメな間取りです。ぜひ一度ご内見いただき、その暖かさをご体感ください。 ライター:rei【24A10】
こちらのお部屋は販売終了いたしました
過去に販売したお部屋の一部をご紹介。
住まい探しやリノベーションのヒントにご覧ください。
東京グラウンド編集部の住まいレビュー
人気の東急東横線『学芸大学』駅より徒歩3分の好立地マンション『学芸大スカイマンション』。駅前には活気ある商店街があり、お買い物至便です。最寄り駅でなんでも買い揃えることができそうですよ♪
お部屋はリノベーション済みの1LDK。南向きで陽当たり良好なお部屋です。料理に精が出そうなⅡ型のキッチンもポイント。是非チェックしてみてください♬ ライター:小林【22D11】
[人気の東横沿線で生活しよう] 学芸大スカイマンション
学芸大学駅
徒歩3分

ブラウンのタイル貼りが目を惹く6階建てマンション、こちらが『学芸大スカイマンション』です。総戸数21戸の鉄筋コンクリート造。地下1階部分にはオシャレな雰囲気の雑貨店が併設されていました。

スロープ付きのエントランスを進み、お部屋へ向かっていきましょう。段差がないので、スーツケースなども運びやすい♪

敷地内には駐車場・駐輪場を完備しています。屋根付きなので雨風の影響も少なく、無償で停めておくことができます。

エレベーターは1基あり、1・3・5階の奇数階に止まるようになっていました。偶数階は階段の踊り場部分に位置しています。
その他の共用部・設備写真
物件概要
設備・特徴
エレベーター 長期修繕計画有
学芸大学駅は東急東横線が利用でき、渋谷へダイレクトにアクセスできる軽快さが魅力です。中目黒や代官山、横浜方面へも乗り換え少なく移動でき、通勤・通学はもちろん休日のお出かけの幅も広がります。駅周辺には活気ある商店街が広がり、日常の買い物や外食に困らない利便性もポイント。一方で少し離れると落ち着いた住宅街が広がり、都心に近い利便性と穏やかな暮らしやすさのバランスが取れたエリアです。
アクセス
東急東横線 『学芸大学』駅 徒歩3分
買い物
学区
※掲載している学区情報は、記事制作時点での参考情報です。
区域によっては学校の指定が異なる場合もありますので、詳細は必ずご確認ください。
その他
こちらの物件は弊社運営の別サイトでもご紹介中♪
学芸大学スカイハイツもご紹介中