間取り図
価格改定
こちらの物件の仲介手数料は
個別にご案内いたします。
詳細をご希望の方は
お気軽にご相談ください。
お問い合わせはこちら
月々の支払い目安を見る
※ローンの⽬安は、頭⾦ゼロ、借⼊年数35年、都市銀⾏・変動⾦利0.595%(優遇利⽤を想定。) 審査内容により、融資の⼀部または全部をご利⽤いただけない場合がございます。予めご了承ください。
間取り図
707号室
編集部が実際に現地を訪れ、見たもの・感じたことをレポート。
図面だけでは伝わらない"リアルな空気感"をお届けします。
更新日:2026/04/25
更新日:2026/04/25
渋谷で落ち着いた暮らしがしたい

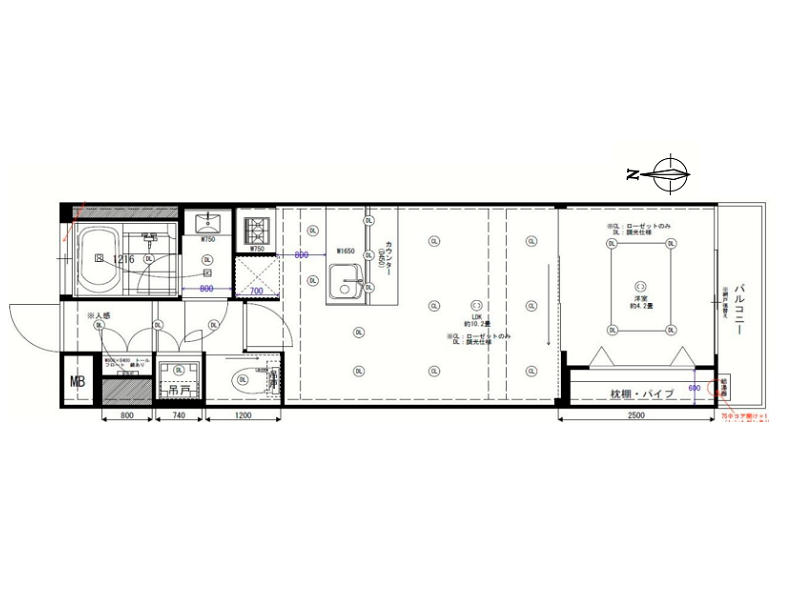
渋谷の喧騒からちょっぴり離れた、渋谷桜丘エリアの鶯谷町にある『渋谷マンション』の7階のお部屋にお邪魔しました♩専有面積は35.18㎡のコンパクトな1LDKで、2026年3月に完了したリノベーション工事で生まれ変わったばかりです!

LDKは約9.62帖の広さ。白いクロスとウッド調フローリングでまとめられた優しい色味の空間。テレビやソファを置いて、ゆっくり過ごす時間にちょうどいいサイズ感です。コーブ照明とダウンライトがリラックスできる落ち着いた明るさを保ってくれます◎

キッチンはスタイリッシュまとまりつつ、収納と作業スペースがバランスよく確保されております。グレー系の面材がほどよいアクセントを空間にもたらしていました。リビングダイニングと相対した配置で、生活の様子を感じながら作業ができる点も魅力です。

約4.01帖の洋室は、バルコニーに面した窓から光を取り込めるお部屋。建物の向かい側は開けているので、日中は採光をしっかりと感じることができます。大きなクローゼットが設けられており、衣類や荷物の収納にも困りません◎

洋室の引き戸を開けることで、LDKと洋室を一体化することも!空間が横に広がり、約14帖の開放感を感じられます。家具のサイズやレイアウトの自由度も高まり、生活スタイルに合わせてフレキシブルにお部屋の形を変えてみましょう♩

南西向きのバルコニーは、日中しっかりと光が届く位置にあります。室内に自然光を取り込む役割だけでなく、もちろん洗濯物を干すスペースとしても使いやすいです。暖かい日には椅子を置いてのんびりと読書するのも素敵!

洗面化粧台は収納付きで、化粧品類などをすっきりとまとめられる設計。鏡は3面鏡仕様で身支度がしやすく、朝の準備がスムーズに進みます。木目調の面材が空間にやわらかさを加え、優しい色味の水まわりです。

シンプルに整えられたバスルーム。窓が設けられているため換気がしやすく、蒸し暑い夏の夜でも湿気がこもりにくいです。日々の入浴をすっきりと過ごせる、リラックス空間になっております。
その他の室内・設備写真
▲ このお部屋の雰囲気がお好みの方へ
東京グラウンド編集部の住まいレビュー
『渋谷マンション』は渋谷駅から徒歩7分。利便性の高い立地にありながら、落ち着いた街並みが広がる桜丘エリアの鶯谷町に佇むマンションです。
1971年築の歴史ある建物ですが、管理会社による全部委託で管理体制も整っており古さも感じません。ペットの飼育が可能なので、愛犬家・愛猫家の方は嬉しいですね♩
今回訪れたお部屋は7階にある、専有面積35.18㎡の1LDK。白を基調とした内装とウッド調フローリングでまとめられたシンプルな空間です。メインルームと居室が隣接しており、扉は引き戸になっている造り。引き戸で区切ることで落ち着いて過ごせるリビングダイニングとして使え、引き戸を開放することでバルコニー窓からの採光を取り込むことができ、奥行きのある空間へと変化します♩マンションの向かい側が開けているので、採光の取り込み具合も抜群。南西向きの窓からの光を活かしながら、生活スタイルに合わせて使い分けできるのが魅力です!
シングルで心地よく暮らしたい方や、カップルさんの新生活に。
気になる方は、ぜひ一度ご内覧ください。 ライター:takumi【26C19】
この物件の毎月の支払いイメージを
試算してみませんか?
頭金や返済年数などを入力するだけで毎月の合計支払額をシミュレーションできます。
5,290
毎月の支払い予想シミュレーション
※試算結果はあくまで目安であり、実際の借り入れを保証するものではありません。
※物件によっては上記以外の別途費用が発生する場合もございます。詳しくはお問い合わせくださいませ。
住戸概要
こちらのお部屋は販売終了いたしました
過去に販売したお部屋の一部をご紹介。
住まい探しやリノベーションのヒントにご覧ください。
東京グラウンド編集部の住まいレビュー
JR、私鉄、地下鉄の計9路線が乗り入れる渋谷駅から徒歩7分に位置する『渋谷マンション』。再開発が進み続ける渋谷の中心にありながら、物件のある鶯谷町周辺は落ち着いた空気が流れ、オンとオフを切り替えやすい環境が保たれています。坂が多いエリアとなっており、マンション自体も坂の中腹に位置していました。メインエントランスは3階に位置し、駐輪場やゴミ置き場がある1階からも出入りが可能です。
お部屋は8階部分の南西向き住戸。1~2人暮らしにおすすめの1LDKです。約10帖のメインルームと、約4帖の洋室は大開口可能の引き戸で区切られており、扉を開いておけば大きなワンルームとして開放的な暮らしをすることも。新規内装リフォームにより、キッチン・浴室・洗面・トイレなどの水回り設備を含め、室内は一新されています。配管更新まで行われている点も、長く住むうえで安心材料のひとつですよね。建物が林立するエリアでありながら、高台にあるためかバルコニーから望む形式は清々しく渋谷の街を一望できる点も魅力的なポイントですよ。
大都市渋谷を生活圏に、のびのびと自分のリズムを大切にした暮らしがイメージしやすい一室でした。是非内見してみてくださいね。 ライター:kayo【26B02】
こちらのお部屋は販売終了いたしました
過去に販売したお部屋の一部をご紹介。
住まい探しやリノベーションのヒントにご覧ください。
[渋谷の秘密基地] 渋谷マンション
渋谷駅
徒歩7分

『渋谷マンション』は、鉄筋コンクリート造の地上12階建てマンション。1971年築と年数は経過しておりますが、管理体制が整っているためか古さを感じません。

マンションの裏手に駐輪場がありました。屋根付きで、大抵の雨風は防ぐことができます◎

エレベーターは1基ありました。階段が3つ付いているため、混雑する時間帯は併せてご利用ください。

廊下は外廊下です。廊下側にはオフィスビルが建ちますが、密接していないのでプライバシーも守られております。
その他の共用部・設備写真
物件概要
設備・特徴
エレベーター 宅配BOX 防犯カメラ 長期修繕計画有
『マンション渋谷』が佇む渋谷区鶯谷町は、渋谷駅・代官山駅・恵比寿駅に囲まれた、静かで落ち着いた雰囲気の住宅街です。渋谷の喧騒から少し離れた交通・生活利便性の高い立地で、住宅の他にも低層マンションやアトリエ、小規模オフィスなどが混在します。小ぢんまりとしたレストランやカフェなどが潜むお洒落な側面と、学校や公園が点在し治安が安定しているという側面がある、洗練された住みよい住環境が魅力的です◎
アクセス
JR山手線/埼京線/湘南新宿ライン/京王井の頭線/東急東横線/田園都市線/東京メトロ銀座線/半蔵門線/副都心線 『渋谷』駅 徒歩7分
東急東横線 『代官山』駅 徒歩10分
京王井の頭線 『神泉』駅 徒歩14分
買い物
学区
※掲載している学区情報は、記事制作時点での参考情報です。
区域によっては学校の指定が異なる場合もありますので、詳細は必ずご確認ください。
その他
こちらの物件は弊社運営の別サイトでもご紹介中♪