間取り図
なら
仲介手数料 30% OFF
マンションは、“どこから買うか”で
支払う費用が変わります
仕組みを詳しく見る
月々の支払い目安を見る
※ローンの⽬安は、頭⾦ゼロ、借⼊年数35年、都市銀⾏・変動⾦利0.595%(優遇利⽤を想定。) 審査内容により、融資の⼀部または全部をご利⽤いただけない場合がございます。予めご了承ください。
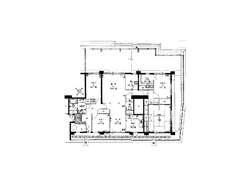
間取り図
8F
東京グラウンド編集部の住まいレビュー
東京メトロ丸ノ内線・中野富士見町駅から歩くこと約5分。落ち着いた住宅街の中を進んでいくと、穏やかな街並みに溶け込みながらも存在感を放つマンション『杉並和田ハイム』が✧1981年築の建物ですが、共用部は丁寧に管理されており、年月を重ねたからこその落ち着いた雰囲気が感じられます。オートロックを抜けると静かな通路が続き、エントランスは住戸ごとに分かれた4つの入り口。プライベート感のある設計が印象的でした♩
今回ご紹介するのは最上階8階部分、専有面積146.02㎡のゆとりある4SLDK。玄関を開けると右手にシューズボックスが備わりすっきりとした第一印象。廊下を進むと左手にパウダールームがあり、洗面化粧台とバスルームがまとまった使いやすい配置です。玄関近くには約7.2帖と約5.5帖の洋室が並び、どちらも収納付き。子ども部屋やゲストルームなど、ライフスタイルに合わせて活用できそうですね。
住まいの中心となるのは、ゆとりある縦長のリビングダイニングキッチン。リビングとダイニングを自然にゾーニングできる広さがあり、凹凸のない壁面は家具やインテリアのレイアウトもしやすく、自由な空間づくりをお楽しみいただけますよ。キッチンは約5.8帖のL型レイアウトで作業効率も良好。独立性があるため、来客時にも手元が見えにくい点が嬉しいポイントです◎
さらに奥へ進むと、収納としてはもちろんワークスペースにも活用できる納戸スペースが。隣には約7.1帖の洋室があり、約2.9帖のワードローブ付きで主寝室にぴったり。衣類をたっぷり収納できるため、ファッション好きの方にも嬉しい設計です。そして最後に広がるのが約10帖の和室。畳の香りに包まれた落ち着きのある空間で、ゆったりとした時間を満喫できそう✿
そしてこの住まい最大の魅力は、100㎡超えの広大なテラス。最上階ならではの開放感の中、自宅にいながらアウトドアのような時間を楽しめる贅沢な空間が広がっていました。
家族それぞれの時間も、みんなで過ごす時間も大切にできるゆとりの住まい。是非新生活にいかがでしょうか✧ ライター:mao【26D20】
この物件の毎月の支払いイメージを
試算してみませんか?
頭金や返済年数などを入力するだけで毎月の合計支払額をシミュレーションできます。
12,900
毎月の支払い予想シミュレーション
※試算結果はあくまで目安であり、実際の借り入れを保証するものではありません。
※物件によっては上記以外の別途費用が発生する場合もございます。詳しくはお問い合わせくださいませ。
住戸概要
こちらのお部屋は販売終了いたしました
過去に販売したお部屋の一部をご紹介。
住まい探しやリノベーションのヒントにご覧ください。
東京グラウンド編集部の住まいレビュー
今回は東京メトロ丸ノ内線中野富士見町駅から徒歩6分のマンションをご紹介しました♪中野富士見町は中野区の南側に位置し、自然が豊かで閑静な住宅街が広がり、都会の喧騒からは離れた落ち着きのあるエリアです❀ビックターミナルである新宿駅まで乗り換え無しで行けるため、交通アクセスに恵まれていますよ。お部屋は2022年10月にリノベーションが施された3LDK。2ヶ所にウォークインクローゼットが備わっており、収納力は抜群です。廊下のウォークインクローゼットは、書斎や趣味のお部屋としてご利用いただける程の広さがあるので、あらゆる用途でご使用いただけますよ。トイレのタイル貼りや、リビングダイニングキッチンのアクセントウォールがお洒落な空間を演出しています◎バルコニーは広々としているので、プランターを置いたり椅子やテーブルを置いて外でのひと時を楽しんでみるのも良いかもしれませんね♡ぜひ一度ご内覧ください。 ライター:坂口【22L28】
こちらのお部屋は販売終了いたしました
過去に販売したお部屋の一部をご紹介。
住まい探しやリノベーションのヒントにご覧ください。
[緑に囲まれ、いい気分] 杉並和田ハイム
中野富士見町駅
徒歩5分

穏やかな住宅街の中で存在感を放つ『杉並和田ハイム』。1981年2月築、鉄筋コンクリート造地上8階建て・総戸数58戸のレジデンスです。丁寧な管理が行き届き、築年数を感じさせない落ち着いた佇まいが印象的✧

敷地はゆとりある広さがあり、アプローチもゆったりとした雰囲気。緑が多く、季節ごとの景観を楽しめる住環境ですよ❀

アプローチ右側には屋根付きの駐輪場とバイク置き場を完備。天候を気にせず保管できるのは嬉しいポイントですね。さらに向かいには平置き駐車場も設けられており、車をお持ちの方にも安心の環境が整っています◎

オートロックを通ると、住戸へと続く落ち着いた通路が広がります。エントランスは住戸ごとに分かれており、全部で4つの入り口が設けられていました✧
その他の共用部・設備写真
物件概要
設備・特徴
エレベーター オートロック 宅配BOX 防犯カメラ
東京メトロ丸ノ内線の支線が乗り入れる中野富士見町駅は、都心へのアクセスの良さと落ち着いた住環境を兼ね備えたエリア。新宿方面へ直通でアクセスできる利便性がありながら、駅周辺は穏やかな住宅街が広がり、ゆったりとした時間が流れています。スーパーやドラッグストア、飲食店など日常生活に便利なお店も揃っており、暮らしやすさを感じられる街並み◎少し足を伸ばすと自然を感じられる公園も点在しており、散歩やリフレッシュにもぴったり。さらに隣駅の方南町駅まで行けば始発電車も利用できるため、通勤時も座って移動しやすいのが魅力です!
アクセス
東京メトロ丸ノ内線 『中野富士見町』駅 徒歩5分
東京メトロ丸ノ内線 『方南町』駅 徒歩12分
東京メトロ丸ノ内線 『東高円寺』駅 徒歩13分
買い物
学区
※掲載している学区情報は、記事制作時点での参考情報です。
区域によっては学校の指定が異なる場合もありますので、詳細は必ずご確認ください。
その他
こちらの物件は弊社運営の別サイトでもご紹介中♪