間取り図
価格改定
なら
仲介手数料 無料!
追加費用も一切なし
マンションは、“どこから買うか”で
支払う費用が変わります
仕組みを詳しく見る
月々の支払い目安を見る
※ローンの⽬安は、頭⾦ゼロ、借⼊年数35年、都市銀⾏・変動⾦利0.595%(優遇利⽤を想定。) 審査内容により、融資の⼀部または全部をご利⽤いただけない場合がございます。予めご了承ください。
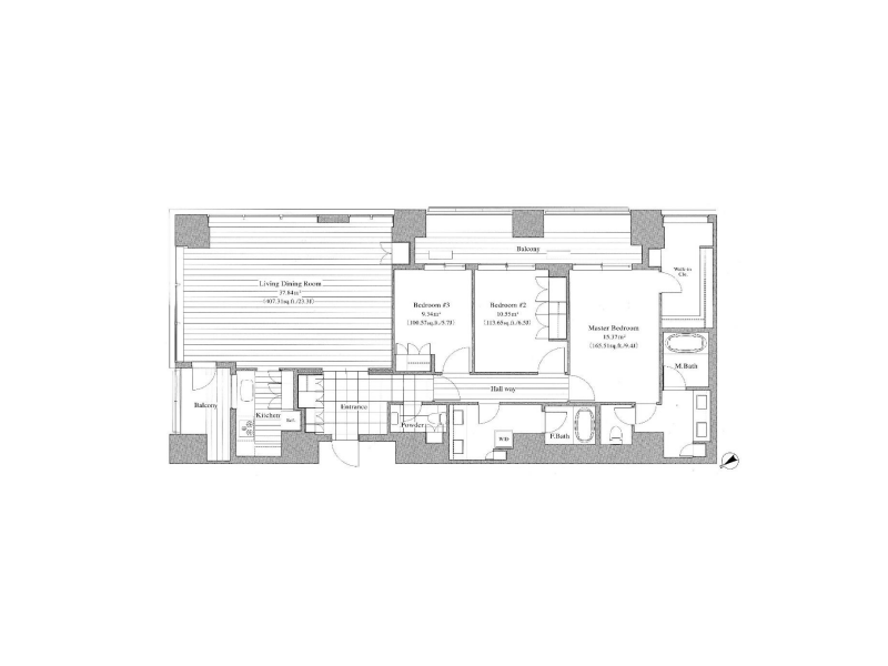
間取り図
1903号室
編集部が実際に現地を訪れ、見たもの・感じたことをレポート。
図面だけでは伝わらない"リアルな空気感"をお届けします。
更新日:2026/02/02
更新日:2026/02/02
広がる都心の眺望を日常に

リビングダイニングは高層階ならではの抜け感が印象的で、窓の先に都心の景色が広がります。約23.8帖の広さが確保され、開放感たっぷり。床暖房が全室に備わっているため、冬場でも足元からじんわりと温もりを感じられます。

2025年8月に新規内装リノベーションが完了。天井や照明計画も落ち着いており、昼は景色を楽しみ、夜は静かにくつろげます。時間帯によって表情を変える上質な場所。

玄関は住まいの第一印象を決める重要な空間。入った瞬間に感じるのは、ホテルの客室を思わせる落ち着いた雰囲気です。シューズインクローゼットが設けられ、足元をすっきりと保てるのもポイント。靴だけでなく、アウトドア用品や季節物も収納しやすく、玄関まわりが散らかりにくい設計です。

特注仕様のシステムキッチンには食洗機や浄水器が備わり、日々の家事を静かに支えてくれます。作業スペースにもゆとりがあり、料理中も慌ただしさを感じにくい印象。リビングダイニングと一体感がありながら、生活感が出すぎないため、日常も来客時も心地よい距離感を保てます。

主寝室は都心にいることを忘れさせてくれる落ち着いた雰囲気が魅力。ベッドを置いても余白が残る広さで、朝起きたときも圧迫感を感じにくい空間です。ウォークインクローゼットが備わり、衣類や身の回りの物をまとめて収納可能♪

サニタリールームには洗面台・洗濯機置き場・バスルームが集結。水回りの機能がまとまっていると、家事動線もスムーズですよね。ラグジュアリーなデザインで、2面ボウル付の洗面化粧台が採用されています。

バスルームはLIXILスパージュが採用されています。追焚き機能&浴室乾燥機を搭載していて、快適性と実用性を両立。照明や質感も落ち着いており、単なる入浴ではなく「整う時間」を過ごせるバスルームです。

北西向きのバルコニーに出ると都心の街並みを高層階から見渡す眺望が広がります。空が近く、視線が遠くまで抜けるため、室内とはまた違った開放感。都心暮らしの豊かさを実感できますね。
その他の室内・設備写真
▲ このお部屋の雰囲気がお好みの方へ
東京グラウンド編集部の住まいレビュー
溜池山王駅から徒歩3分、六本木一丁目駅からも徒歩5分という好立地。複数路線が使える利便性の高い立地でありながら、建物周辺は落ち着いた雰囲気が広がる都心の一角に佇むマンションです。建物は鉄筋コンクリート造26階建、総戸数87戸。24時間コンシェルジュサービスや共用施設も備わり、セキュリティと安心感のある住環境が整っています。ご紹介のお部屋は、専有面積107.48㎡の2LDK。リビングダイニングキッチンを中心にゆとりある動線が確保され、各洋室にはウォークインクローゼットやシューズインクローゼットを備えています。2025年8月完成の新規フルリノベーションにより、システムキッチンやユニットバス、洗面化粧台など設備も充実。19階部分ならではの眺望と日当たり良好な室内が、くつろぎの時間を演出します。都心立地で上質な暮らしを求めるファミリーにおすすめの一邸です。ぜひ一度ご内覧にいらしてください♡ ライター:rei【25L01】
この物件の毎月の支払いイメージを
試算してみませんか?
頭金や返済年数などを入力するだけで毎月の合計支払額をシミュレーションできます。
64,980
毎月の支払い予想シミュレーション
※試算結果はあくまで目安であり、実際の借り入れを保証するものではありません。
※物件によっては上記以外の別途費用が発生する場合もございます。詳しくはお問い合わせくださいませ。
住戸概要
間取り図
価格改定
なら
仲介手数料 30% OFF
マンションは、“どこから買うか”で
支払う費用が変わります
仕組みを詳しく見る
月々の支払い目安を見る
※ローンの⽬安は、頭⾦ゼロ、借⼊年数35年、都市銀⾏・変動⾦利0.595%(優遇利⽤を想定。) 審査内容により、融資の⼀部または全部をご利⽤いただけない場合がございます。予めご了承ください。
間取り図
22F
東京グラウンド編集部の住まいレビュー
溜池山王駅から徒歩3分。赤坂・虎ノ門・永田町を日常使いできるこの地は、都心でありながら落ち着きと品格を兼ね備えたエリアです。大通りから1歩入ると街の喧騒がすっと遠のき、整った街並みと洗練された空気感が広がりますよ✿
赤坂一丁目の空に美しいラインを描く、26階建てレジデンス『SAION SAKURAZAKA』。総戸数87戸の落ち着いた規模感にスカイラウンジや屋上庭園といった共用施設が用意され、日常にささやかな非日常を添えてくれます。
ご紹介するのは22階部分、日当たり良好な角住戸。専有面積142.85㎡の3LDKは、ゆとりと動線美を大切にしたプランニングが印象的です。玄関には収納を備え、廊下を進むと手洗い付きの独立トイレ、続いてダブルボウル洗面台を配したパウダールームとバスルームがまとまり、生活動線は非常にスムーズ。
約15.3帖の主寝室にはウォークインクローゼットに加え、専用のパウダールーム・トイレ・バスルームを完備。まるで上質なホテルスイートのようなプライベート空間が広がります。ほか2つの洋室も10帖超・9帖超と十分な広さを確保し、全居室から南東向きバルコニーへアクセス可能。
約37.8帖のリビングダイニングは、思わず深呼吸したくなるほどの開放感✦独立風のキッチンにはカップボードを備え、生活感を程よく隠しながら美しい住空間を保てますよ。北西側にもバルコニーを備え、光と風、そして都心の景色を存分に取り込む一邸です。
ペットとの暮らしも可能なため、大切なペットとお引越しをお考えの方にもオススメ♩ ライター:mao【26B02】
この物件の毎月の支払いイメージを
試算してみませんか?
頭金や返済年数などを入力するだけで毎月の合計支払額をシミュレーションできます。
85,000
毎月の支払い予想シミュレーション
※試算結果はあくまで目安であり、実際の借り入れを保証するものではありません。
※物件によっては上記以外の別途費用が発生する場合もございます。詳しくはお問い合わせくださいませ。
住戸概要
[大人の東京がここにある] SAION SAKURAZAKA
溜池山王駅
徒歩3分

赤坂一丁目の空にスッと伸びる、26階建てのフォルムが印象的な『SAION SAKURAZAKA』。総戸数は87戸。ガラス面と端正な外壁が織りなす外観は、昼は周辺の高層ビル群と調和し、夜は柔らかな灯りがともることでホテルライクな雰囲気をまといます。

建物へと続くアプローチは、街の喧騒から少し距離を置きながらエントランスへと導いてくれる落ち着いた動線です。足元の舗装がきれいに整えられ、視線の先には高層棟がゆったりと構えることで、歩きながら自然と気持ちがオフモードへ切り替わっていきます。

共用部には美しい紅葉、綺麗に整えられた植栽が広がっていました。帰宅時には一日の疲れをほどきながら、ゲストを迎えるときにはこの先に広がるホテルライクな空間への期待を高めてくれます。

エントランスにはオートロック&防犯カメラを完備しています。タワーレジデンスらしいホテルライクな空間。さらには、24時間コンシェルジュサービスのご用意も✧
その他の共用部・設備写真
物件概要
設備・特徴
エレベーター オートロック 宅配BOX 防犯カメラ ゲストルーム24時間コンシェルジュサービス 新耐震基準適合
溜池山王駅周辺に住むメリットは、都心ならではの高い交通利便性と落ち着いた街並みを享受できる点にあります。東京メトロ複数路線が利用でき、赤坂・虎ノ門・永田町といった主要エリアへスムーズにアクセス可能。ビジネス街に近い立地ながら、一本入ると閑静な住宅街が広がり、日常は穏やかに過ごせます。周辺には飲食店や生活利便施設も揃い、平日も休日も時間を有効に使える環境。都心でのスマートな暮らしを求める方にとって、バランスの取れた住環境が魅力のエリアです。
アクセス
東京メトロ銀座線/南北線 『溜池山王』駅 徒歩3分
東京メトロ南北線 『六本木一丁目』駅 徒歩5分
買い物
学区
※掲載している学区情報は、記事制作時点での参考情報です。
区域によっては学校の指定が異なる場合もありますので、詳細は必ずご確認ください。
その他