間取り図
価格改定
なら
仲介手数料 無料!
追加費用も一切なし
マンションは、“どこから買うか”で
支払う費用が変わります
仕組みを詳しく見る
月々の支払い目安を見る
※ローンの⽬安は、頭⾦ゼロ、借⼊年数35年、都市銀⾏・変動⾦利0.595%(優遇利⽤を想定。) 審査内容により、融資の⼀部または全部をご利⽤いただけない場合がございます。予めご了承ください。
間取り図
805号室
編集部が実際に現地を訪れ、見たもの・感じたことをレポート。
図面だけでは伝わらない"リアルな空気感"をお届けします。
更新日:2026/04/22
更新日:2026/04/22
新宿の夜景を、日常のワンシーンに

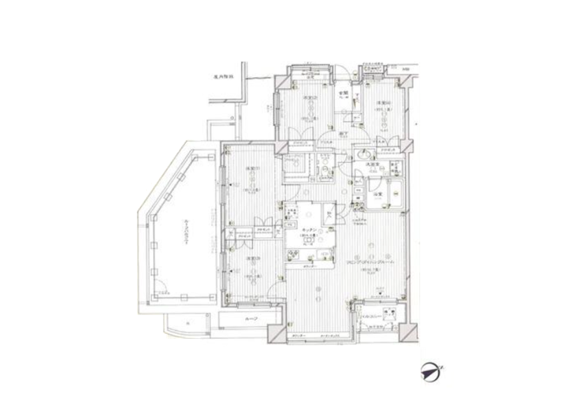
フルリノベーションを施したばかりの美しい1LDKのお部屋。専有面積50.65㎡とゆとりある広さで、ゆったりとした1人暮らしを望む方にぴったりです。洗練された家具に加えエアコン・照明も完備されているため、引越し後すぐに快適な空間が整いますよ✧

生活の中心となるリビングダイニングキッチンは約14.0帖のゆとりある広さ。2方向から光が入り、いつでも明るく開放的です。3方角部屋ならではのプライベート感と、心地よい空気のながれが日々の暮らしをより快適にしてくれます。

一部にアクセントクロスをあしらったリビングは、シンプルな中に上品な表情が生まれる空間設計。さらにテレビボードが備わっているので、家具購入の負担が少なくお部屋全体に統一感が生まれます。

視界の広がる上層階の住戸につき、外の景色を楽しみながら暮らすことができます。バルコニーは2面に設けられ、風通し・日当たりが抜群。夜には新宿副都心の夜景を見ながらロマンティックなひとときを過ごせそうですね。

キッチンはリビングとの一体感が心地よいカウンタースタイル。ゲストとの会話を楽しみながら調理ができるのが嬉しいポイントです。3口ガスコンロに食洗機つきで、日々の料理や後片付けもスムーズに♪

洗面化粧台は人気の三面鏡仕様。身支度のしやすさはもちろん収納力も高いため、歯ブラシやスキンケア用品などをゆとりを持ってしまえるのが魅力。生活感を見せず整った空間を保てますよ◎

穏やかなトーンのバスルームは、毎日の疲れを癒す心地よい空間。追焚き機能でゆっくり入浴でき、浴室乾燥機は衣類乾燥やカビ防止にも便利です。快適なくつろぎ時間を叶えてくれます♡

玄関はナチュラルな雰囲気で、帰ってくるたびほっとする空間。大容量のシューズクローゼットを備えているため、玄関周りをいつもすっきり保てます。棚板は可動式になっているので、ブーツやローファーなど高さの異なる靴も無理なく整理可能な点も嬉しいポイント。
その他の室内・設備写真
▲ このお部屋の雰囲気がお好みの方へ
東京グラウンド編集部の住まいレビュー
『ディオレ西新宿』は西新宿五丁目駅から徒歩4分。今回ご紹介する住戸は8階部分に位置する3方角部屋。北・東・西の3方向から光と風が舞い込み、都心にいながらも開放感を存分に味わえる設計です。窓辺から見えるのは新宿の高層ビル群が連なる都会らしいパノラマビュー。日常のひとときに、少しだけ特別感を添えてくれそう・・・♡室内はフルリノベーションが施され、ナチュラルな空間にアクセントクロスが調和したスタイリッシュな雰囲気に整えられています。さらに家具もセレクト済みのため、引っ越してすぐに心地よい暮らしを始められるのも魅力のひとつ。暮らしとデザインが自然に溶け合う住まいを、ぜひ現地にてご体感ください。 ライター:hana【25K06】
この物件の毎月の支払いイメージを
試算してみませんか?
頭金や返済年数などを入力するだけで毎月の合計支払額をシミュレーションできます。
7,999
毎月の支払い予想シミュレーション
※試算結果はあくまで目安であり、実際の借り入れを保証するものではありません。
※物件によっては上記以外の別途費用が発生する場合もございます。詳しくはお問い合わせくださいませ。
住戸概要
間取り図
なら
仲介手数料 30% OFF
マンションは、“どこから買うか”で
支払う費用が変わります
仕組みを詳しく見る
月々の支払い目安を見る
※ローンの⽬安は、頭⾦ゼロ、借⼊年数35年、都市銀⾏・変動⾦利0.595%(優遇利⽤を想定。) 審査内容により、融資の⼀部または全部をご利⽤いただけない場合がございます。予めご了承ください。
間取り図
15F
この物件の毎月の支払いイメージを
試算してみませんか?
頭金や返済年数などを入力するだけで毎月の合計支払額をシミュレーションできます。
18,000
毎月の支払い予想シミュレーション
※試算結果はあくまで目安であり、実際の借り入れを保証するものではありません。
※物件によっては上記以外の別途費用が発生する場合もございます。詳しくはお問い合わせくださいませ。
住戸概要
こちらのお部屋は販売終了いたしました
過去に販売したお部屋の一部をご紹介。
住まい探しやリノベーションのヒントにご覧ください。
東京グラウンド編集部の住まいレビュー
マンションやオフィスビルが立ち並ぶ一方で、閑静な住宅街の一面もある西新宿五丁目。公園や緑地が多く、自然を感じながら暮らすことができる魅力的なエリアです。今回ご紹介の『グランドステージ初台』は都営大江戸線が乗り入れる西新宿五丁目駅より徒歩4分の駅近物件。ビッグターミナルである新宿駅へのアクセスが良く、通勤や通学、日頃のお出かけに便利な立地です♪お目当ての『ディオレ西新宿』は「山手通り」に建つ地上15階建て、総戸数69戸のマンション。24時間のセキュリティ体制に加えて、オートロックや管理人室を備えているため安心してご入居いただけます。ご紹介のお部屋は9階部分に位置する専有面積50.65㎡の2LDKで、2024年10月にリノベーションが完了し新築同様のお部屋へと生まれ変わりました。三方角部屋につき全居室居心地がよく、明るく開放的な空間は新生活スタートにピッタリ。それではお部屋を詳しく見ていきましょう。 ライター:mao【24K14】
こちらのお部屋は販売終了いたしました
過去に販売したお部屋の一部をご紹介。
住まい探しやリノベーションのヒントにご覧ください。
東京グラウンド編集部の住まいレビュー
今回ご紹介したのは、都営大江戸線西新宿五丁目駅から徒歩4分の山手通り沿いに佇むマンションです♪周辺には高速道路のICがあり、行動手段がお車の方も遠方へのアクセスが良好です◎飲食店が多く建ち並ぶので外食には困らなさそうです♪お部屋は最上階角部屋で、専用面積約100㎡の広々とした3LDK。2022年10月にリフォームが完了し、綺麗な状態が保たれています✧なんといっても各部屋から眺められる絶景が魅力的♡ワンランク上の生活が叶いますよ。一際目を惹くアイランドキッチンは料理好きには憧れの空間ではないでしょうか。ぜひ、一度ご内覧くださいね。 ライター:坂口【22K14】
[煌びやかな夜景を一望] ディオレ西新宿
西新宿五丁目駅
徒歩4分

カーブを描いたバルコニーが張り出した外観で一際目を惹く『ディオレ西新宿』。1999年2月築で鉄骨鉄筋コンクリート造15階建て総戸数68戸のマンションです。

高級感のあるアプローチは、スロープ付でベビーカーやスーツケースでも快適に移動できます。駐輪場や駐車場、バイク置き場への出入りもこちらです。

エントランスには、防犯カメラ、オートロック、管理人室が備わっており、セキュリティ面はとても安心♡宅配ボックス付きのため、配達時間を気にせず配達物の受け取りができちゃいます。

オートロックの先のエントランスホールは、太陽の光が差し込み毎朝気持ちよく送り出してくれますよ。待ち合わせなどにご利用いただける椅子とテーブルのご用意がありました。
その他の共用部・設備写真
物件概要
設備・特徴
エレベーター オートロック 宅配BOX 防犯カメラ 24時間ゴミ出し可24時間セキュリティ 新耐震基準適合 長期修繕計画有
都営大江戸線が乗り入れる西新宿五丁目駅は、新宿駅や都心主要エリアへのアクセスが良好で通勤・通学に便利な立地です。駅周辺にはスーパー、コンビニ、ドラッグストアなどの生活利便施設が点在し、日々のお買い物はスムーズ。また飲食店も適度に揃っており外食派の方にも嬉しい環境です♪駅を少し離れると落ち着いた住宅街が広がり、都会に近いながらも穏やかな住まいの雰囲気が感じられます。新宿副都心を身近にしながら日常の暮らしやすさも両立できる、バランスの取れたエリアです。
アクセス
都営大江戸線 『西新宿五丁目』駅 徒歩4分
東京メトロ丸ノ内線/都営大江戸線 『中野坂上』駅 徒歩10分
京王新線 『初台』駅 徒歩15分
買い物
学区
※掲載している学区情報は、記事制作時点での参考情報です。
区域によっては学校の指定が異なる場合もありますので、詳細は必ずご確認ください。
その他
こちらの物件は弊社運営の別サイトでもご紹介中♪