購入・売却・リノベ・無料相談はこちら 公式LINEで気軽に相談

コスモ小石川

URLとタイトルをコピーしました!

【仲介手数料割引・掲載写真80枚】文京区小石川3‐27‐6/後楽園駅徒歩6分/新耐震基準適合/総戸数63戸/平成7年/1995年2月/定休日なしで内見予約・無料相談受付中です!
この物件の売却相談はこちら
仲介手数料半額
505号室
9,480万円
成約済み
販売終了物件

間取り図

URLとタイトルをコピーしました!
9,480万円
52.64㎡
1SLDK
なら

仲介手数料 50% OFF

通常
319万円
159万円お得
当社
160万円

マンションは、“どこから買うか”で
支払う費用が変わります

仕組みを詳しく見る

月々の支払い目安を見る

ローンの目安
250,000円/月
管理費
18,800円/月
修繕積立金
15,690円/月
合計
284,490円/月

※ローンの⽬安は、頭⾦ゼロ、借⼊年数35年、都市銀⾏・変動⾦利0.595%(優遇利⽤を想定。) 審査内容により、融資の⼀部または全部をご利⽤いただけない場合がございます。予めご了承ください。

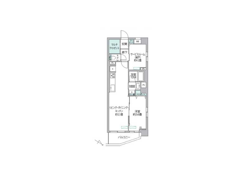
間取り図

505号室
52.64㎡ 1SLDK

編集部の
部屋レポ

編集部が実際に現地を訪れ、見たもの・感じたことをレポート。
図面だけでは伝わらない"リアルな空気感"をお届けします。

更新日:2026/03/26

更新日:2026/03/26

さりげないこだわりに惹かれて

その他の室内・設備写真

▲ このお部屋の雰囲気がお好みの方へ

東京グラウンド編集部の住まいレビュー

治安が良いとされる文京区の中でも特に治安が良いと人気の春日駅。現代的な街並みと懐かしい雰囲気の街並みが同居した、様々な魅力を味わえる街です。『コスモ小石川』の徒歩2分圏内にスーパー・コンビニ・ドラッグストアがあるので、毎日のお買い物はとってもスムーズ。お子様にお使いを頼んでも、この距離なら安心ですね。

タイル張りの高級感漂うデザインが美しい『コスモ小石川』。エントランスは大通りの「千川通り」とは反対側に位置しているので、人通りが少なくプライベート性が高い造りと言えます。セキュリティもしっかりしていて、ご家族と暮らすマイホームにピッタリ。

今回は5階部分に位置する1SLDKをご紹介しました。サービスルームを含むすべてのお部屋にエアコンが付いていて、オールシーズン快適です。間取りは若干コンパクトに感じましたが、その分動線が良く、暮らしやすさに配慮した設備が備わっているので、住み心地は良さそうです♩ ライター:mii【26C26】

この物件の毎月の支払いイメージを
試算してみませんか?

頭金や返済年数などを入力するだけで毎月の合計支払額をシミュレーションできます。

9,480

万円

最初にまとめて支払うお金です。
頭金なしでもローンは組めますので
ご安心ください。

万円

ローンを何年かけて返済するかを
入力します。よくある期間は
35年、30年、20年など。

変動金利で0.3〜0.6%(低金利だが将来的に変動)、固定金利で1.0〜1.5%(返済額がずっと一定で安心)が一般的な目安です。

毎月の支払い予想シミュレーション

ローン支払い目安
250,000円/月
管理費
18,800円/月
修繕積立金
15,690円/月
合計
284,490円/月

※試算結果はあくまで目安であり、実際の借り入れを保証するものではありません。
※物件によっては上記以外の別途費用が発生する場合もございます。詳しくはお問い合わせくださいませ。

住戸概要

価格
9,480万円
所在階
5階
間取り
1SLDK
専有面積
52.64㎡
バルコニー
4.40㎡
管理費
18,800円/月
修繕積立金
15,690円/月
町会費
200円/月
リノベーションアフターサービス保証付

こちらのお部屋は販売終了いたしました

編集部の
部屋レポ

過去に販売したお部屋の一部をご紹介。
住まい探しやリノベーションのヒントにご覧ください。

▲ このお部屋の雰囲気がお好みの方へ

建物と街のようす

[東京ドームも徒歩圏内] コスモ小石川

文京区小石川3‐27‐6MAP

後楽園駅

徒歩6分

外観・共用部

その他の共用部・設備写真

物件概要

物件名
コスモ小石川
所在地
文京区小石川3‐27‐6
築年月
平成7年/1995年2月
構造
鉄骨鉄筋コンクリート造
階数
地下1階付 14階建
土地
所有権
総戸数
63戸
分譲会社
株式会社リクルートコスモス・株式会社フジタ
管理会社
大和ライフネクスト株式会社
駐車場
駐輪場
有 (大人用:3,000円/年、子供用:2,000円/月)
バイク置き場
ペット飼育
不可
事務所使用
不可
備考・その他
トランクルーム:1,000円/月
町会費:200円/月

設備・特徴

エレベーター オートロック 宅配BOX トランクルーム 防犯カメラ 新耐震基準適合 建物状況調査済

テナント

クリニック

アクセス・周辺環境

春日駅春日駅
白山通り白山通り
文京GARDEN文京GARDEN
ファミリーマート 文京春日白山通り店ファミリーマート 文京春日白山通り店
マルエツ 春日駅前店マルエツ 春日駅前店
源覚寺源覚寺
えんま通り商店街えんま通り商店街
ローソン 小石川一丁目店ローソン 小石川一丁目店
どらっぐぱぱす 小石川1丁目店どらっぐぱぱす 小石川1丁目店
ダイエー 小石川店ダイエー 小石川店
コスモ小石川周辺コスモ小石川周辺
クリニッククリニック
春日駅春日駅
白山通り白山通り
文京GARDEN文京GARDEN
ファミリーマート 文京春日白山通り店ファミリーマート 文京春日白山通り店
マルエツ 春日駅前店マルエツ 春日駅前店
源覚寺源覚寺
えんま通り商店街えんま通り商店街
ローソン 小石川一丁目店ローソン 小石川一丁目店
どらっぐぱぱす 小石川1丁目店どらっぐぱぱす 小石川1丁目店
ダイエー 小石川店ダイエー 小石川店
コスモ小石川周辺コスモ小石川周辺
クリニッククリニック

抜群の交通利便性の良さを誇る春日駅。後楽園駅が近く、駅の出口によっては2駅両方にアクセスできるものもありますよ。そうすると4路線が利用できるということになり、通勤・通学に便利です。駅直結の「文京GARDEN」や「えんま通り商店街」など周辺にはお買い物できるスポットが充実しています。『コスモ小石川』のお隣のマンションに24時間営業のスーパーが入っているので、いつでもすぐに買い出しできるのは便利ですね。

アクセス

東京メトロ丸ノ内線/南北線 『後楽園』駅 徒歩6分

都営大江戸線/三田線 『春日』駅 徒歩6分

買い物

ダイエー 小石川店
徒歩1分(88m)
ローソン 小石川一丁目店
徒歩2分(130m)
どらっぐぱぱす 小石川1丁目店
徒歩2分(120m)

学区

柳町小学校
徒歩3分(230m)
第三中学校
徒歩11分(700m)

※掲載している学区情報は、記事制作時点での参考情報です。
区域によっては学校の指定が異なる場合もありますので、詳細は必ずご確認ください。

その他

文京区立小石川一丁目児童遊園
徒歩2分(150m)
こんなお部屋に住みたい方へ リフォーム:リノベーション

不動産にまつわるご相談・ご質問・資料請求など
まずはお気軽にお問い合わせくださいませ。