仲介物件の多くは『レインズ』という不動産会社だけが利用できる情報サイトに掲載されています。レインズはどの不動産会社も同じ情報にアクセスできる仕組みのため、会社によって紹介できる物件が限定されるということはほとんどありません。
当サイトに掲載されていない物件であっても、気になる物件があれば、仲介手数料無料または割引(規定上限額の30〜50%)でご案内可能です。そのため、物件の条件にかかわらず、常にお客さまのご負担を最小限に抑えたご提案を行っています。
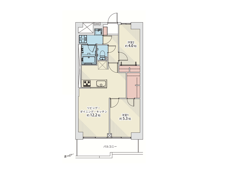
こちらのお部屋は販売終了いたしました
[ビッグコミュニティならではの安心感] メゾン田町
田町駅
徒歩12分

交差点沿いに佇むこちらのマンションが、今回ご紹介する『メゾン田町』です。11階建て、総戸数184戸のビッグコミュニティ。安心の新耐震基準適合マンション。これまで大規模修繕工事など何度か改修工事が行われている上、長期修繕計画があるので、これからますます快適にお過ごしいただけるはず。

アプローチの右手にスロープが備わっていました。ベビーカーや車いすをご利用の方でも行き来がスムーズですね。夜間オートロックを完備しているので、大通りに面したマンションですが、安心してお休みいただけます。

エントランスには、落ち着いた雰囲気が漂っていました。管理人室と防犯カメラを設けています。万が一困ったことがあっても管理人さんにご相談しやすいですね。エントランス内にもスロープが設けられていました◎

エレベーターは2基稼動しています。ビッグコミュニティながら待ち時間は少なくて済みそう。居住フロアは、風通しの良い外廊下仕様。数年前に新規交換された玄関扉はしっかりした造りのツーロックドアです。防犯性に優れているたけでなく、廊下の音をしっかりシャットアウトしてくれます。
その他の共用部・設備写真
物件概要
設備・特徴
エレベーター 夜間オートロック 宅配BOX 防犯カメラ 新耐震基準適合 長期修繕計画有
オフィス街として知られる田町駅。駅周辺は綺麗に整備されており歩きやすかったです。飲食店が多く、ランチ時には多くの会社員の方で賑わっていました。「八千代橋」を渡り、マンションの位置する芝浦4丁目方面へ。駅周辺よりもマンションが多く、穏やかな雰囲気が漂っています。マンションのお隣には大きなグラウンドを有する小学校「港区立芝浦小学校」が。幼稚園も併設されていました。教育環境が充実しており、子育て世代にもピッタリな周辺環境と言えますね。
アクセス
JR山手線/京浜東北線 『田町』駅 徒歩12分
都営三田線/浅草線 『三田』駅 徒歩13分
JR山手線/京浜東北線 『高輪ゲートウェイ』駅 徒歩14分
買い物
学区
※掲載している学区情報は、記事制作時点での参考情報です。
区域によっては学校の指定が異なる場合もありますので、詳細は必ずご確認ください。
その他
グランドメゾン田町もご紹介中