間取り図
価格改定
なら
仲介手数料 50% OFF
マンションは、“どこから買うか”で
支払う費用が変わります
仕組みを詳しく見る
月々の支払い目安を見る
※ローンの⽬安は、頭⾦ゼロ、借⼊年数35年、都市銀⾏・変動⾦利0.595%(優遇利⽤を想定。) 審査内容により、融資の⼀部または全部をご利⽤いただけない場合がございます。予めご了承ください。
間取り図
5F
編集部が実際に現地を訪れ、見たもの・感じたことをレポート。
図面だけでは伝わらない"リアルな空気感"をお届けします。
更新日:2025/12/05
更新日:2025/12/05
自分らしく飾る

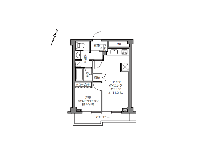
今回ご紹介するお部屋は、デザイン性の高い1LDK。2025年10月にフルリノベーションが完了され、新築のような綺麗さでした。明るいカラーの木目のフローリングとホワイトカラーのクロスで爽やかな印象ですね。

約11.2帖のメインルームは、背の低い家具を置くことで、より広く見せることができます。玄関からメインルームへと入るドア前の壁には、ピクチャーレールが備わっており、お好きな絵画やポスターをを飾ることができますよ。

メインルームにはギャラリーニッチがあり、魅せる収納ができます。雑誌や本、写真集を置いて、自分カラーの空間を演出できますよ。観葉植物・花 グリーンを飾ることもオススメです。

メインルームには、扉付きの収納があります。活動の中心となるメインルームに収納があることで、生活に必要な物を効率良く片付けることができますね。可動式となっており、棚の幅を変えれば、デットスペースなく収納できますよ。

約4.9帖の洋室は、正方形に近い形です。壁沿いに家具を配置することで、中央にスペースができ、自由な空間が確保できますね。家具のカラーをクロスやフローリングと統一することで、空間にまとまりができ、視覚的な広がりを演出できます。

約4.9帖の洋室にあるクローゼット。オープンタイプとなっていますが、カーテンレールが備わっているため、隠す収納にすることもできます。オープンタイプのクローゼットは、出し入れがしやすく、収納している物が一目で分かるのが特徴です。しかしカーテンをすることで、急な来客時でも、生活感を隠すことができ、日焼け防止対策にもなります。オープンタイプとクローズドタイプそれぞれの良さを引き出すことができますね。

お洒落なタイルが印象的なキッチン。ニッチがあり、調味料を置いておくのに便利です。浄水器付きのため、綺麗な水をお気軽にご利用いただけますよ。さらにグリル付き3口コンロ、食洗機が完備されており、効率よく料理ができますね。冷蔵庫置場が隠れた仕様になっているため、生活感が出ないも嬉しいポイントですね♪

上品なカラーのバスルームは、追い焚き機能付きでいつでも温かい湯船に入ることができます。さらに浴室乾燥機能付きで、雨や花粉を気にせず洗濯ができ、生活が豊かになりますね。
その他の室内・設備写真
東京グラウンド編集部の住まいレビュー
今回訪れたのは、中目黒駅から徒歩10分、恵比寿駅から徒歩14分の『朝日第2中目黒マンション』。中目黒駅周辺は飲食店が多く立ち並んでおり、活気ある雰囲気が広がっていました。『朝日第2中目黒マンション』は目黒川沿いに位置し、春は桜並木を眺めることができます。伺った時期は秋でしたが、紅葉が美しく、マンション周辺で四季を楽しむことができそうでした。ご紹介したお部屋はデザイン性があり、お洒落な印象です。メインルームのニッチ棚や絵画用ワイヤーで、住む方の個性を演出できそうですよ。雑貨や絵画をお好きな方にピッタリのお部屋だと感じました。約4.9帖の洋室には、カーテンレールの付いたオープンタイプのクローゼットが備わっており、オープンとクローズドの両方の良さを引き出すことができます。ぜひ内見して、お部屋の魅力を感じてくださいね。 ライター:nana【25L03】
この物件の毎月の支払いイメージを
試算してみませんか?
頭金や返済年数などを入力するだけで毎月の合計支払額をシミュレーションできます。
4,980
毎月の支払い予想シミュレーション
※試算結果はあくまで目安であり、実際の借り入れを保証するものではありません。
※物件によっては上記以外の別途費用が発生する場合もございます。詳しくはお問い合わせくださいませ。
住戸概要
[シンプルの中にこだわりのデザインを] 朝日第2中目黒マンション
中目黒駅
徒歩10分

鉄筋コンクリート造地上7階建ての『朝日第2中目黒マンション』。ベージュカラーの重厚感のある外観で存在感がありました。植栽がマンションを囲み、落ち着いた雰囲気です。

趣のある階段を上ると、エントランスにたどり着きます。階段には屋根があるので、雨の日でも濡れずに傘をしまったり、準備したりすることができ、慌てずに安心して出入りできますね。

屋根付きの駐車場で、雨や紫外線、雪などから車を保護できます。また車の乗り降り際に、雨に濡れずに済みますよ。駐輪場も同じエリアにありました。

マンションのエントランスは手動でドアを開ける仕様です。すぐに管理人室があるため、防犯面で安心ですね。床は特徴的な深いブラウンカラーで、落ち着きのある空間が広がっていました。
その他の共用部・設備写真
物件概要
設備・特徴
エレベーター 防犯カメラ 長期修繕計画有
中目黒駅は、東急東横線と東京メトロ日比谷線が乗り入れています。東横線は渋谷駅や横浜方面へのアクセスが良く、みなとみらい線にも直通運転をしています。駅周辺には、モダンな商業施設と昔ながらの商店街が共存し、にぎわいを見せています。洗練された飲食店や居酒屋が多く、大人がゆったり楽しめる上品な街並みが広がっているのが特徴です。また、目黒川の桜並木は全国的に知られ、満開の時期には毎年多くの人々が訪れます。
アクセス
東急東横線/東京メトロ日比谷線 『中目黒』駅 徒歩10分
JR山手線/埼京線/湘南新宿ライン/東京メトロ日比谷線 『恵比寿』駅 徒歩14分
さんまバス 『なかめ公園橋前』 徒歩1分
買い物
学区
※掲載している学区情報は、記事制作時点での参考情報です。
区域によっては学校の指定が異なる場合もありますので、詳細は必ずご確認ください。
その他
こちらの物件は弊社運営の別サイトでもご紹介中♪
朝日中目黒マンションもご紹介中
中目黒マンションもご紹介中
ニュー中目黒マンションもご紹介中