間取り図
価格改定
なら
仲介手数料 無料!
追加費用も一切なし
マンションは、“どこから買うか”で
支払う費用が変わります
仕組みを詳しく見る
月々の支払い目安を見る
※ローンの⽬安は、頭⾦ゼロ、借⼊年数35年、都市銀⾏・変動⾦利0.595%(優遇利⽤を想定。) 審査内容により、融資の⼀部または全部をご利⽤いただけない場合がございます。予めご了承ください。
間取り図
3F
編集部が実際に現地を訪れ、見たもの・感じたことをレポート。
図面だけでは伝わらない"リアルな空気感"をお届けします。
更新日:2026/04/07
更新日:2026/04/07
心ほどけるナチュラルテイスト

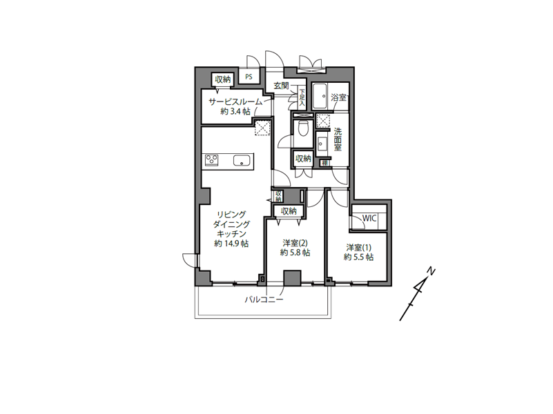
木目×ナチュラルカラーの組み合わせが優しく生活に寄り添う2SLDKのお部屋は、パートナーとの2人暮らしにおすすめの間取りです。ふんわりと温かな光を持たらす2種類の照明は空間内の役割を自然と分け、お食事やリラックスの時間を引き立てます。

メインルームは角部屋につき南と西からの2面採光を実現し、心地のよい明るさに溢れる上品な住環境。お部屋のどこにいても気持ちのほぐれるような柔らかさが魅力です。壁にはピクチャーレールが備わっており、お気に入りの絵やアートを飾っておくスペース込みで計算された空間にセンスを感じます。

お部屋の1番のポイントは、なんといってもこの大きなオープンキッチンです。実際に見てみるとワークトップそのものがかなり大きめに造られており、まな板をそのまま置けてしまいそうなサイズ感でした。キッチンシンクも広々と使いやすそうです。コンロには操作パネルが搭載されており、お料理中の細かいこだわりにも対応してくれます。シルバーでまとめ上げられ、メインルーム内に洗練をもたらすデザインです。

およそ5.5帖の洋室は、余裕たっぷりの大きめクローゼットを備えているのがポイント。2方向に設けられたハンガーポールには十分な量のお洋服を収納できそうです。隣り合う2つの洋室はほぼ同じ大きさになっており、それぞれのプライベートな時間を大切にしたい方にはぴったりですね。

柔らかなニュアンスカラーでまとめられたパウダールーム。美しい模様の入ったワークトップがアクセントとなった洗面化粧台は、ワークトップの両側にスペースが設けられ、スキンケア用品や歯ブラシなど毎日使うものを置いておいても窮屈さを感じません。左部のシェルフにはリネン類をしまえば、お風呂上りや洗顔後にさっと使えて便利です。

パウダールームの奥に設けられたバスルームはホワイトと木目調のパネルが爽やかさを演出するリラックス空間。広々としたバスタブには追い焚き機能を備え、毎日湯舟をお楽しみいただけます。その他浴室乾燥機能を搭載し、24時間換気によりカビを防止するほか、雨の日の室内干しにも対応。

廊下に設けられた収納は、お掃除道具やお部屋周りで使うものの収納に便利。扉付きで、普段は目隠ししておけるのも利点◎メインルームやパウダールームなど、ちょっとした場所に細かくシェルフが設けられた造りになっており、日用品の収納が個々のエリア内で完結する快適さが感じられました。

洋室とは別にサービスルームが完備されています。メインルームからは一番遠いお部屋になるので、アウトドア用品やシーズン物のお洋服など、使用頻度が低いものの保管にぴったりですね。窓がなく太陽の光が入らないことから、室温の変化に弱いデリケートなお洋服や備蓄用の食糧などを保存するパントリー的な使い方も◎
その他の室内・設備写真
▲ このお部屋の雰囲気がお好みの方へ
東京グラウンド編集部の住まいレビュー
東急東横線学芸大学駅から徒歩8分の場所に建つ『ロイヤルヴィーゼ学芸大学』。マンション周辺は緩やかな戸建てやその庭に咲く植栽が街を彩る軽やかな空気感に溢れ、肩ひじ張らずに自分のままでいられる雰囲気が魅力。毎日のお買い物やちょっとしたグルメを楽しむのにぴったりな学芸大学駅付近の商店街が生活圏にあり、その日の気分に合わせて緩急のある生活を楽しめそうです。
今回ご紹介したのは、フルリノベを終え、デザイン性の高さの中に癒しを感じる住まいに生まれ変わった2SLDKのお部屋。
なんといっても目を引くのは、機能性と快適さをフルに兼ね備えた大きなキッチン。2人そろって並んでの作業も余裕で行えるゆったりサイズは、お料理好きの方にきっと気に入っていただけると思います。
キッチン自体のシャープなカラーはお洒落なカフェのオープンキッチンを彷彿とさせ、ゲストを呼んでのおもてなしもはかどりそうです。
L字型に設けられた廊下を中心としてその周囲に居室や各種設備が設けられた造りは、生活動線が整理されてストレスフリー。
お仕事に疲れて帰宅しても、室内の優しい色合いと雰囲気が気持ちを和らげ、ゆったりとした時間を過ごせそうだなと感じました。
是非1度現地へ足を運び、陽だまりに溢れた癒しの空間を体感してみて下さいね✿ ライター:yurika【26C08】
この物件の毎月の支払いイメージを
試算してみませんか?
頭金や返済年数などを入力するだけで毎月の合計支払額をシミュレーションできます。
11,290
毎月の支払い予想シミュレーション
※試算結果はあくまで目安であり、実際の借り入れを保証するものではありません。
※物件によっては上記以外の別途費用が発生する場合もございます。詳しくはお問い合わせくださいませ。
住戸概要
こちらのお部屋は販売終了いたしました
過去に販売したお部屋の一部をご紹介。
住まい探しやリノベーションのヒントにご覧ください。
[癒しが日々に溶け込んでゆく] ロイヤルヴィーゼ学芸大学
学芸大学駅
徒歩8分

住宅街の小さな交差点の角に立つ『ロイヤルヴィーゼ学芸大学』。鉄筋コンクリート造・地上5階建てで、総戸数は15戸のスモールコミュニティが特徴。1989年築ですが外観は美しさが保たれ、耐震基準もクリアしています◎

2本の円柱がどっしりと構えるエントランス。雨よけの役割を果たすガラス状の庇がお洒落ですね。植栽なども手入れがなされ、青々と迎えてくれます。エントランスから左手へ回ると駐車・駐輪スペースが設けられていました。

エントランスへ入ると、ポストと一緒に宅配ボックスが設置されていました。お仕事などで日中の受け取りが難しい方でも楽々受け取れありがたいですね。居住エリアへはオートロックを通過する必要があり、外部の人間が立ち入れない安心の構造。

エレベーターを下りると、各戸の扉が並ぶ廊下が続きます。気温の変化や害虫の被害を受けにくい内廊下タイプ。窓が大きく取られ開放的なため、じめじめした感じやどんよりと暗い雰囲気はありませんでした◎
その他の共用部・設備写真
物件概要
設備・特徴
エレベーター オートロック 宅配BOX 防犯カメラ 24時間ゴミ出し可 新耐震基準適合 長期修繕計画有
学芸大学駅は、東急東横線沿線の中でも、生活の温度がほどよく残る街として知られる駅。渋谷まで約7分とアクセスの良さを持ち合わせながら、駅前には庶民的な商店街が広がり、個人経営の飲食店や昔ながらの八百屋、個性的なカフェなどが混在しています。少し歩くと低層住宅が中心の穏やかな住宅街が広がり、路地には植木や小さな公園も点在。派手さはありませんが、日常を丁寧に楽しめる、どこか下町のような安心感が魅力のエリアです。
アクセス
東急東横線 『学芸大学』駅 徒歩8分
東急東横線 『祐天寺』駅 徒歩13分
東急バス『中央町』停 徒歩3分
買い物
学区
※掲載している学区情報は、記事制作時点での参考情報です。
区域によっては学校の指定が異なる場合もありますので、詳細は必ずご確認ください。
その他