間取り図
なら
仲介手数料 30% OFF
マンションは、“どこから買うか”で
支払う費用が変わります
仕組みを詳しく見る
月々の支払い目安を見る
※ローンの⽬安は、頭⾦ゼロ、借⼊年数35年、都市銀⾏・変動⾦利0.595%(優遇利⽤を想定。) 審査内容により、融資の⼀部または全部をご利⽤いただけない場合がございます。予めご了承ください。
間取り図
16F
編集部が実際に現地を訪れ、見たもの・感じたことをレポート。
図面だけでは伝わらない"リアルな空気感"をお届けします。
更新日:2026/04/17
更新日:2026/04/17
東京タワーを日常の景色に

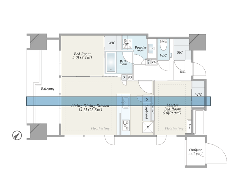
64.23㎡のゆとりある2LDKは、16階部分に位置する南東角住戸。高層階ならではの開放的な眺めと、明るく風通しの良い室内が印象的です。角住戸ならではの独立性も確保され、都心生活に程よいプライベート感をプラス◎ペット飼育可能で、ライフスタイルの幅が広がる一室となっています。

約13.0帖のリビングダイニングキッチンは、南西・南東の2方向に窓を配した角住戸。ハイサッシ越しに光が入り、時間帯によって表情が変わります。天井高2.62mのゆとりも相まって、自然と深呼吸したくなるような居心地の良さが魅力ですよ✧

このお部屋で何より印象に残るのは、「東京タワー」を足元から望む眺望。室内にいながら、その存在感を日常の風景として楽しめる贅沢さがあります。住まい選びにおいて、眺めを重視したい方にぜひ注目してほしいポイントです◎

約6.0帖と約5.0帖の洋室はいずれもバルコニーに面した配置で、室内にいながら外の気配を感じられる点が印象的♥約6.0帖の洋室にはウォークインクローゼットを設け、収納力もしっかり確保。プライベート空間として、無理のない使い勝手が考えられていますね。

ウォークインクローゼットに加え、玄関にはシューズインクローゼットを備えた収納充実の住まい。身の回りの物をまとめてしまえるため、空間に余白が生まれます。見せない収納を上手に取り入れた、すっきりとした暮らしが叶いそうですね✧

約3.2帖のキッチンスペースは、ペニンシュラタイプ。グレーのキッチンがホワイトの内装の中で程よいアクセントとなり、空間にメリハリを生んでいます。インテリアの一部としても馴染みやすく、毎日の家事時間を穏やかに支えてくれますよ♩

バルコニーは2面合わせて20.24㎡とゆったりとした広さ。チェアを置いて過ごす時間も絵になる空間です。室内の延長として使えるため、暮らしに自然な広がりをもたらしてくれそう。日々の過ごし方に選択肢が増えるポイントではないでしょうか。

水回りは洗面化粧台・バスルーム・洗濯機置き場をひとまとめにした使い勝手の良い配置。トイレは独立し、来客時にも気を遣わずに使えます◎動線や空間のバランスは写真だけでは伝わりきらない部分。ぜひ現地でその快適さを確かめてくださいね✦
その他の室内・設備写真
▲ このお部屋の雰囲気がお好みの方へ
東京グラウンド編集部の住まいレビュー
東京メトロ日比谷線「神谷町」駅から徒歩2分。再開発が進む虎ノ門エリアは、都心でありながらもどこか整然とした空気が流れ、歩いているだけで街の変化と成熟を感じさせてくれます。駅周辺には新しいオフィスや商業施設が立ち並ぶ一方、少し足を伸ばせば愛宕の緑も身近に感じられる、バランスの取れたロケーションです。
ご紹介したのは、地上28階建・全144邸を誇る『シティタワー虎ノ門』。エントランスに足を踏み入れるとタワーレジデンスらしい落ち着きと品格が漂います。
室内に入った瞬間、まず感じたのは光の入り方の綺麗さ✦16階・南東角住戸という条件が、そのまま空気感に表れている印象です。約13.0帖のリビングダイニングキッチンは南西・南東の2方向から光を受け止め、天井高2.62mの高さも相まって数字以上の伸びやかさ。視線の先には「東京タワー」を足元から望む景色があり、これが日常になる贅沢さを思わず想像してしまいました。
洋室は約6.0帖と約5.0帖の2部屋。どちらもバルコニーに面しており、プライベート空間にも外の気配が自然に入り込むつくりです。約6.0帖の洋室にはウォークインクローゼット、玄関にはシューズインクローゼットを備え、収納面も安心。
水回りの動線や空間の心地よさは、ぜひ現地で確かめてほしいポイントです! ライター:mao【26B10】
この物件の毎月の支払いイメージを
試算してみませんか?
頭金や返済年数などを入力するだけで毎月の合計支払額をシミュレーションできます。
37,800
毎月の支払い予想シミュレーション
※試算結果はあくまで目安であり、実際の借り入れを保証するものではありません。
※物件によっては上記以外の別途費用が発生する場合もございます。詳しくはお問い合わせくださいませ。
住戸概要
間取り図
なら
仲介手数料 30% OFF
マンションは、“どこから買うか”で
支払う費用が変わります
仕組みを詳しく見る
月々の支払い目安を見る
※ローンの⽬安は、頭⾦ゼロ、借⼊年数35年、都市銀⾏・変動⾦利0.595%(優遇利⽤を想定。) 審査内容により、融資の⼀部または全部をご利⽤いただけない場合がございます。予めご了承ください。
間取り図
11F
編集部が実際に現地を訪れ、見たもの・感じたことをレポート。
図面だけでは伝わらない"リアルな空気感"をお届けします。
更新日:2026/04/17
更新日:2026/04/17
光に包まれる、心地よい住まい

11階部分に位置するこちらのお部屋は、専有面積63.74㎡の2LDK住戸。ご夫婦やカップルでの暮らしにちょうど良い広さが確保されています。メインルームは約11.0帖で、ソファやダイニングテーブルを配置してもゆとりを感じられる空間。南東向きの大きな窓からはたっぷりと陽光が差し込み、日中は明るく心地よい雰囲気に包まれます◎

約3.2帖のキッチンスペースは、落ち着いたブラックの大理石調デザインが印象的。広々としたワークトップとグリル付きコンロにより、複数の料理を同時に進めやすい仕様です。背面にはカップボードが設置されており、キッチン周りをすっきり保てる収納力も魅力♪

メインルームに隣接する約5.0帖の洋室は、スライドドアで仕切られた設計。扉を開ければリビングと一体感のある開放的な空間として使え、閉めれば独立した個室として活用できます。ライフスタイルに合わせた柔軟な使い方ができそうです。

もう1つの洋室は約7.0帖。ゆとりある広さが魅力で主寝室として使うのにぴったり。大型ベッドを配置しても圧迫感を感じにくい空間です。ウォークインクローゼット付きなので収納力も高く、荷物の多い方でも安心して暮らせますよ。

バスルームにはワイドミラーが採用されており、浴室全体をより広く感じさせてくれます。バスタブは足を伸ばして入れるサイズで、追い焚き機能も完備。お好みの温度で長く入浴できるので、リラックスタイムを大切にしたい方にも嬉しい設備ですね♡

サニタリールームに設けられた洗面化粧台は、タイルデザインがアクセントとなりおしゃれな印象。洗面ボウルの横にはカウンターが設けられており、メイク道具やスキンケア用品を広げながら身支度ができる便利な仕様に。

各居室には南東向きの窓が設けられており、室内にはたっぷりの自然光が差し込みます。やわらかな陽光が空間全体を優しく包み込み、明るく心地よい雰囲気。日中は照明をつけなくても十分に過ごせそうなほど、開放感のある住空間が広がっていました。

バルコニーは13.55㎡とゆとりある広さを確保。洗濯物をたっぷり干せる実用性に加え、視界が開けているため開放感も感じられます。テラスチェアを置いて、朝のコーヒータイムやのんびりとしたひとときを過ごすのにもぴったりです。
その他の室内・設備写真
▲ このお部屋の雰囲気がお好みの方へ
東京グラウンド編集部の住まいレビュー
神谷町駅からわずか徒歩2分という利便性の高い立地に佇む『シティタワー虎ノ門』。さらに御成門駅や芝公園駅も徒歩圏内にあり、複数路線を使い分けられるアクセスの良さが魅力です。都心ならではの機動力を持ちながら、周辺には落ち着いた街並みも広がっており、仕事もプライベートも快適に過ごせそうな環境。駅からマンションまでは大通り沿いを中心とした分かりやすい道のりで、夜遅くの帰宅時でも安心感がありました。
今回ご紹介するのは、そんなマンションの11階部分に位置する2LDKのお部屋。専有面積は63.74㎡と、ご夫婦やカップルでの暮らしにちょうど良いサイズ感です。室内へ入ると、まず感じたのは明るさ。すべての居室に南東向きの窓が設けられており、日中は照明をつけなくても過ごせそうなほど自然光が差し込んでいました。メインルームは約11.0帖のLDK。ソファやダイニングテーブルを配置してもゆとりがあり、くつろぎのスペースと食事スペースをバランス良くレイアウトできそう◎メインルームに隣接する約5.0帖の洋室は、スライドドアで仕切られた設計。扉を開ければLDKとつながり開放的な空間として使え、閉めればしっかりと独立した個室として活用できます。ライフスタイルに合わせて柔軟に使えるのは嬉しいですよね♪
そして南東向きに設けられたバルコニーは13.55㎡とゆとりある広さ。洗濯物をたっぷり干せるだけでなく、視界が開けているため開放感も十分。テラスチェアを置いて、朝のコーヒータイムやちょっとしたリフレッシュを楽しむのも素敵ですね。駅徒歩2分という利便性と、ゆとりある室内空間。都心での暮らしを快適に楽しみたい方におすすめしたい一室。ぜひ、気になる方はお気軽にお問い合わせください。 ライター:hana【26C16】
この物件の毎月の支払いイメージを
試算してみませんか?
頭金や返済年数などを入力するだけで毎月の合計支払額をシミュレーションできます。
24,750
毎月の支払い予想シミュレーション
※試算結果はあくまで目安であり、実際の借り入れを保証するものではありません。
※物件によっては上記以外の別途費用が発生する場合もございます。詳しくはお問い合わせくださいませ。
住戸概要
間取り図
価格改定
なら
仲介手数料 無料!
追加費用も一切なし
マンションは、“どこから買うか”で
支払う費用が変わります
仕組みを詳しく見る
月々の支払い目安を見る
※ローンの⽬安は、頭⾦ゼロ、借⼊年数35年、都市銀⾏・変動⾦利0.595%(優遇利⽤を想定。) 審査内容により、融資の⼀部または全部をご利⽤いただけない場合がございます。予めご了承ください。
間取り図
22F
この物件の毎月の支払いイメージを
試算してみませんか?
頭金や返済年数などを入力するだけで毎月の合計支払額をシミュレーションできます。
32,500
毎月の支払い予想シミュレーション
※試算結果はあくまで目安であり、実際の借り入れを保証するものではありません。
※物件によっては上記以外の別途費用が発生する場合もございます。詳しくはお問い合わせくださいませ。
住戸概要
[緑と摩天楼が自然に溶け合う] シティタワー虎ノ門
神谷町駅
徒歩2分

大規模な再開発により、街の景色が日々更新されていく虎ノ門。その中心エリアに佇むのが『シティタワー虎ノ門』です。総戸数144戸、敷地面積1,400㎡超、地下1階・地上28階建のスケールを誇る、高級感あふれるタワーレジデンスとなっています。

天然石やタイルを用いたマテリアルが、建物全体に上質な空気をまとわせています✦エントランス周りには天然石やタイルを配し、控えめながらも重厚感のある佇まい。都心にありながら品のある個性が静かに際立つ印象!

人・車・自転車、それぞれの動線を分離することで、建物に入るまでの流れがとてもスムーズ。1階からエレベーターで3階へ進むと喧騒から切り離されたようなエントランスホールが現れます。住戸フロアが5階以上に設けられている点も安心感につながりますね。

エレベーターを降りるとホテルライクな内廊下が広がります。静かで上品な空気に包まれ、住戸へ向かうわずかな時間さえも穏やかに感じられました。エレベーターは複数基用意されており、日常の動線にも余裕が感じられます。
その他の共用部・設備写真
物件概要
設備・特徴
エレベーター オートロック 宅配BOX 防犯カメラ 新耐震基準適合
神谷町駅・御成門駅・芝公園駅を生活圏に収めるこのエリアは、都心でありながら落ち着いた空気が流れるのが印象的です。再開発が進む神谷町周辺には洗練されたオフィスや飲食店が増え、日常使いできるカフェやレストランも充実。一方、御成門や芝公園方面へ足を伸ばすと「東京タワー」や「芝公園」の緑が広がり、都会の中でほっと一息つける環境が整っていますよ✿日比谷線・三田線の利用により、霞ケ関・六本木・銀座方面へのアクセスも良好で、通勤や外出のストレスを感じにくい立地。
アクセス
東京メトロ日比谷線 『神谷町』駅 徒歩2分
都営三田線 『御成門』駅 徒歩2分
都営三田線 『芝公園』駅 徒歩7分
買い物
学区
※掲載している学区情報は、記事制作時点での参考情報です。
区域によっては学校の指定が異なる場合もありますので、詳細は必ずご確認ください。
その他