間取り図
価格改定
なら
仲介手数料 無料!
追加費用も一切なし
マンションは、“どこから買うか”で
支払う費用が変わります
仕組みを詳しく見る
月々の支払い目安を見る
※ローンの⽬安は、頭⾦ゼロ、借⼊年数35年、都市銀⾏・変動⾦利0.595%(優遇利⽤を想定。) 審査内容により、融資の⼀部または全部をご利⽤いただけない場合がございます。予めご了承ください。
間取り図
306号室
編集部が実際に現地を訪れ、見たもの・感じたことをレポート。
図面だけでは伝わらない"リアルな空気感"をお届けします。
更新日:2025/11/17
更新日:2025/11/17
都心の真ん中で、上質な日常を

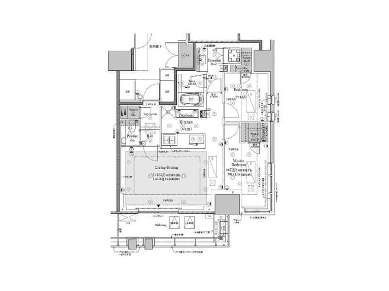
広々とした専有面積77.11㎡の3LDKは、上質なファミリーライフにふさわしい空間。新築未入居のため、どこを見ても新しさと清潔感が感じられます。ペットと共に暮らせる環境で、穏やかで豊かな毎日をスタートできそうです。

約17.2帖のリビングダイニングキッチンは、開放感あふれる明るい空間大きな窓が多く、自然光がたっぷりと差し込みます。床暖房付きで寒い季節も快適に。家族共有の収納棚も備わり、整理整頓もラクラクです♪

料理好きの方に嬉しい設備がそろったシステムキッチン。3口コンロにグリル、食洗機と、調理から後片付けまでより快適に♪上下の収納スペースで、整ったキッチンライフを叶えます。

独立洗面台・洗濯機置き場・バスルームがひと続きに配置されたサニタリールーム。ミラーキャビネット付きで、洗面周りの小物もスッキリ収納できます◎2人並んで使えるほどの広さで、朝の支度もスムーズですよ。

バスルームは上品な木目調パネルが印象的なリラクゼーション空間。追い焚き機能や浴室乾燥機を備え、日々の疲れを癒す快適な設備が整っています。安全性にも配慮され、どなたにも優しいバスルームです。

3つの洋室はいずれも程よい広さで、家族それぞれのプライベート空間を確保。各室にクローゼットを完備し、衣類の整理もスムーズに♪さらにウォークインクローゼットも備えられており、季節家電やスーツケースの収納にも便利ですね。

新築未入居ならではの清々しさを、玄関から感じられる上質な住まい。ワイドなシューズボックスを備え、見た目の美しさと収納力を両立しています。防災用品もまとめてしまえる実用的な玄関空間ですね✧

2室にまたがる広々としたバルコニーは、南向きで心地よいアウトドア空間。周囲の緑が見える穏やかな景色に癒されます。季節の花を飾ったり、日々のリラックスタイムを楽しむのも素敵ですね✿
その他の室内・設備写真
東京グラウンド編集部の住まいレビュー
都心の真ん中、渋谷駅からほど近く、『プラウドタワー渋谷』は、都会のエネルギーと落ち着いた時間が絶妙に交差する場所に佇みます。街の賑わいを抜けた先に広がるのは、緑が点在する静かな住宅エリア。アクティブな日常の中にも心を休める穏やかな瞬間がある、そんな暮らしがここで叶います✧『プラウドタワー渋谷』2025年3月に誕生した新築タワーで、ホテルライクな共用空間と先進の設備が融合した安心の住まいです。ご紹介する3階に位置するお部屋は、新築後未入居のためとても綺麗でした。間取りはご家族での暮らしにぴったりな3LDK。シンプルな内装デザインでどんなテイストの家具とも相性抜群です◎まだ誰も住んでいない新しい空間で、自分らしい渋谷ライフをはじめてみませんか♪ ライター:hana【25K12】
この物件の毎月の支払いイメージを
試算してみませんか?
頭金や返済年数などを入力するだけで毎月の合計支払額をシミュレーションできます。
32,800
毎月の支払い予想シミュレーション
※試算結果はあくまで目安であり、実際の借り入れを保証するものではありません。
※物件によっては上記以外の別途費用が発生する場合もございます。詳しくはお問い合わせくださいませ。
住戸概要
間取り図
価格改定
こちらの物件の仲介手数料は
個別にご案内いたします。
詳細をご希望の方は
お気軽にご相談ください。
お問い合わせはこちら
月々の支払い目安を見る
※ローンの⽬安は、頭⾦ゼロ、借⼊年数35年、都市銀⾏・変動⾦利0.595%(優遇利⽤を想定。) 審査内容により、融資の⼀部または全部をご利⽤いただけない場合がございます。予めご了承ください。
間取り図
303号室
編集部が実際に現地を訪れ、見たもの・感じたことをレポート。
図面だけでは伝わらない"リアルな空気感"をお届けします。
更新日:2025/11/17
更新日:2025/11/17
大都会を堪能する

メインルームはおよそ13帖のゆったりとした空間。リビングダイニングスペースだけでも約10帖あり、のびのびと生活していただけそうです。南西にバルコニーにアクセスできる大きな窓が設けられ、明るく爽やかな印象でした。

グレー基調のスタイリッシュなキッチン。開放的な対面型のレイアウトになっています。大きな食洗機を内蔵しており、洗い物の負担が軽減されるのではないでしょうか。

サニタリールームもキッチン同様グレーが基調とされていました。バスルームの扉が透明になっていて、まるで海外のホテルのような洗練された雰囲気を醸し出しています。

ミストサウナとジャグジーもご利用いただけるバスルーム。優雅なリラックスタイムをお楽しみいただけそうですね。入って左側にはカウンターが設けられていました。

洗濯機置き場は洗面化粧台の左の観音扉の中にありました。開いた状態でも扉が出っ張らないようになっているので、動線を塞がずに開閉することが可能です。

洋室には大きなFIX窓が取り入れられ、開放的溢れる空間でした。およそ6帖ほどの広さがあり、大きいベッドも余裕をもって配置することが可能です。WICと扉付きの棚も完備されています。

こちらは約3.5帖のDENスペース。書斎やストレージルームに最適です。全てのお部屋にビルドインエアコンが設置されており、1年を通して快適に生活していただけそうです。

玄関は白いストーン調のタイルがあしらわれ、上品な空間に仕上がっています。大容量のシューズクロゼットが設置されているのも嬉しいポイントですよね。
その他の室内・設備写真
東京グラウンド編集部の住まいレビュー
2025年3月に完成したばかりの『プラウドタワー渋谷』。渋谷駅から徒歩5分という恵まれた立地にて、最新のトレンドが集まる日本随一の大都会をテリトリーに充実した毎日を過ごしていただけるのではないでしょうか。実際に行ってみて、繁華街のすぐ近くでありながら、マンション付近は比較的穏やかで住みやすそうな雰囲気が漂っていた事に驚きました。それでいて、徒歩3分圏内にスーパーやコンビニ、ドラッグストア、飲食店が全て揃っており申し分ない住環境が整っています。今回ご紹介したのは、モノトーンが基調となった洗練された都会的な内装が魅力の1SLDK。3階に位置しお部屋からはタワーマンションならではの爽快な眺望はお楽しみいただけませんが、最上階26階にスカイデッキがあり渋谷の街を一望することが可能です。都心で優雅な生活をしたい方にオススメです。 ライター:kayo【25H06】
この物件の毎月の支払いイメージを
試算してみませんか?
頭金や返済年数などを入力するだけで毎月の合計支払額をシミュレーションできます。
22,900
毎月の支払い予想シミュレーション
※試算結果はあくまで目安であり、実際の借り入れを保証するものではありません。
※物件によっては上記以外の別途費用が発生する場合もございます。詳しくはお問い合わせくださいませ。
住戸概要
間取り図
なら
仲介手数料 30% OFF
マンションは、“どこから買うか”で
支払う費用が変わります
仕組みを詳しく見る
月々の支払い目安を見る
※ローンの⽬安は、頭⾦ゼロ、借⼊年数35年、都市銀⾏・変動⾦利0.595%(優遇利⽤を想定。) 審査内容により、融資の⼀部または全部をご利⽤いただけない場合がございます。予めご了承ください。
間取り図
17F
この物件の毎月の支払いイメージを
試算してみませんか?
頭金や返済年数などを入力するだけで毎月の合計支払額をシミュレーションできます。
54,000
毎月の支払い予想シミュレーション
※試算結果はあくまで目安であり、実際の借り入れを保証するものではありません。
※物件によっては上記以外の別途費用が発生する場合もございます。詳しくはお問い合わせくださいませ。
住戸概要
間取り図
こちらの物件の仲介手数料は
個別にご案内いたします。
詳細をご希望の方は
お気軽にご相談ください。
お問い合わせはこちら
月々の支払い目安を見る
※ローンの⽬安は、頭⾦ゼロ、借⼊年数35年、都市銀⾏・変動⾦利0.595%(優遇利⽤を想定。) 審査内容により、融資の⼀部または全部をご利⽤いただけない場合がございます。予めご了承ください。
間取り図
13F
この物件の毎月の支払いイメージを
試算してみませんか?
頭金や返済年数などを入力するだけで毎月の合計支払額をシミュレーションできます。
45,800
毎月の支払い予想シミュレーション
※試算結果はあくまで目安であり、実際の借り入れを保証するものではありません。
※物件によっては上記以外の別途費用が発生する場合もございます。詳しくはお問い合わせくださいませ。
住戸概要
[渋谷に住まう、時代を生きる] プラウドタワー渋谷
渋谷駅
徒歩5分

2025年3月に建てられたばかりの『プラウドタワー渋谷』。鉄筋コンクリート造26階建て、総戸数132戸のタワーマンションです。すらっと高さのあるの外観は、規則た正しく窓とバルコニーが並び、幾何学的でスタイリッシュな印象です。

オートロックを完備した自動ドアを抜けてエントランスに進むと、ゆったりとしたラウンジスペースがありました。モノトーン基調の洗練された空間となっており、お客様がいらした際に好印象を抱いていただけそうです。

メールコーナーは、ポストと宅配ボックスが一体型となったシステムロッカーが採用されていました。エレベーターホールのすぐ近くに配置されており、郵便物や荷物をスムーズにお部屋へ運ぶことが出来そうです。

お目当てのフロアに到着したら、ホテルライクの重厚な内廊下を通りお部屋へ。お部屋によっては廊下に専用のトランクルームが設置されているそうです。
その他の共用部・設備写真
物件概要
設備・特徴
エレベーター オートロック 宅配BOX トランクルーム 防犯カメラ コンシェルジュサービス24時間セキュリティシステム 新耐震基準適合 免震構造
再開発が進み、駅直結の商業施設をはじめ、さまざまな百貨店や、トレンドを取り入れた店舗が立ち並ふ渋谷エリア。最新のファッションやグルメをイチ早く感じることができます。一方で、少し歩けば「奥渋」と呼ばれるエリアがあり、おしゃれなカフェや個性的なショップが点在し、落ち着いた雰囲気を味わうことも可能です。交通の利便性も抜群で、JR、私鉄、地下鉄など多くの路線が乗り入れており、都内各所へのアクセスが非常にスムーズ◎オフィスビル群や、歴史的な神社、美術館、大きな公園もあり、ショッピングや食事のみではなく、ビジネス、エンターテイメント、カルチャーなど、多様な表情を持つ、あらゆるニーズに応える利便性の高い街です。
アクセス
JR山手線/埼京線/湘南新宿ライン/京王井の頭線/東急東横線/田園都市線/東京メトロ銀座線/半蔵門線/副都心線 『渋谷』駅 徒歩5分
買い物
学区
※掲載している学区情報は、記事制作時点での参考情報です。
区域によっては学校の指定が異なる場合もありますので、詳細は必ずご確認ください。
その他
こちらの物件は弊社運営の別サイトでもご紹介中♪