間取り図
なら
仲介手数料 30% OFF
マンションは、“どこから買うか”で
支払う費用が変わります
仕組みを詳しく見る
月々の支払い目安を見る
※ローンの⽬安は、頭⾦ゼロ、借⼊年数35年、都市銀⾏・変動⾦利0.595%(優遇利⽤を想定。) 審査内容により、融資の⼀部または全部をご利⽤いただけない場合がございます。予めご了承ください。
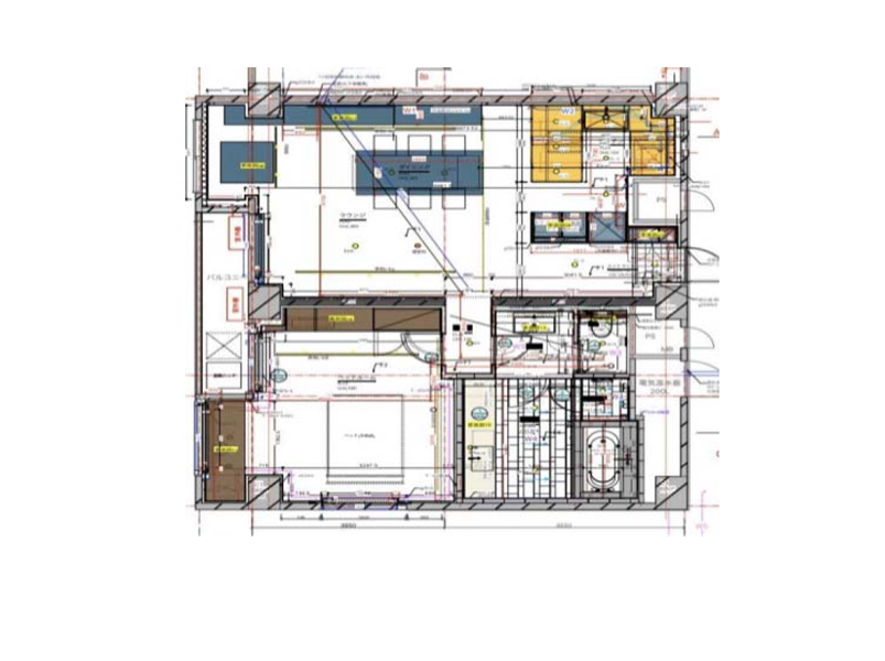
間取り図
1001号室
東京グラウンド編集部の住まいレビュー
渋谷駅から徒歩6分。賑わいの中心地から少し距離を置いた宇田川町の住宅街に佇む『ノア渋谷パート2』。ブラウンを基調とした明るい外観が印象的で、街並みに自然と溶け込む存在です。階段を上った先にあるエントランスは、都心らしい人の流れを感じつつも、管理人室や防犯カメラがきちんと配され、落ち着いた空気感を保っています。
今回ご紹介するのは10階部分の1SLDK。外廊下を抜けて玄関扉を開けると、まず感じるのは室内の整い方。過去にリノベーションが施されており、現在も丁寧に使われてきたことが伝わる、清潔感のある空間です。ネイビーのアクセントウォールやタイル使いが随所に取り入れられ、シンプルながらもセンスが光る内装に仕上がっています。
LDKは家具配置のイメージがしやすい、程よく引き締まった広さ。ダークトーンを基調とした室内は、昼は落ち着いた大人の雰囲気、夜は照明次第でバーのような表情も楽しめそうです。サービスルームはワークスペースや収納、趣味の部屋としても活躍しそうなサイズ感。事務所利用も可能なマンションのため、住まいと仕事を緩やかに切り分けたい方にもフィットします。
ガラス張りのバスルームは、空間全体に開放感をもたらすオープンなデザイン。日本ではあまり見かけない仕様で、住空間の中でも印象に残るポイントです◎
渋谷という立地を日常に取り込みながら、住空間は一歩引いた静けさを確保できる一室。都市での暮らしをスマートに楽しみたい方に、ぜひ一度ご覧いただきたいお部屋です。 ライター:mao【26A03】
この物件の毎月の支払いイメージを
試算してみませんか?
頭金や返済年数などを入力するだけで毎月の合計支払額をシミュレーションできます。
11,500
毎月の支払い予想シミュレーション
※試算結果はあくまで目安であり、実際の借り入れを保証するものではありません。
※物件によっては上記以外の別途費用が発生する場合もございます。詳しくはお問い合わせくださいませ。
住戸概要
こちらのお部屋は販売終了いたしました
過去に販売したお部屋の一部をご紹介。
住まい探しやリノベーションのヒントにご覧ください。
東京グラウンド編集部の住まいレビュー
毎日活気に満ち溢れている渋谷。近年再開発が進む渋谷エリアは若者の街からオフィス街へと進化を遂げており、世代問わずに人気のエリアです。駅直結の商業ビルが増え、充実した買い物環境が整っています。ファッションビルも多く、オシャレなファッショニスタに最適なロケーションですね♡今回は観光客で賑わう「渋谷センター街」を通り『ノア渋谷パート2』へと向かいましたが、飲食店の多さが目に留まりました。居酒屋からお洒落なカフェ、隠れ家レストランなど、あらゆるシーンでお食事をお楽しみいただけます。宇田川町に佇む『ノア渋谷パート2』は、喧騒とした駅周辺とは打って変わって閑静な住宅街に佇んでいました✧リノベーションが完了し、デザイン性の高い内装に仕上がったお部屋では、ワンランク上の暮らしが叶いますよ。インテリアにもこだわり自分だけのお気に入り空間を完成させ、新生活をお楽しみくださいね♪ ライター:坂口【23H01】
[この街と共に暮らす] ノア渋谷パート2
渋谷駅
徒歩6分

ブラウンを基調とした明るい外観の『ノア渋谷パート2』。宇田川町の閑静な住宅街に静かに佇むマンションです。階段を上ってエントランスへ向かう際は、高さがある分、雨の日は滑りやすいので足元にご注意ください。

ブラウンタイルが目を引くエントランス。事務所利用のお部屋も多く、朝夕は人の出入りがちょっと賑やかですが、管理人さんと防犯カメラがしっかり見守ってくれるので安心です◎

フロア間の移動はエレベーター、もしくは外階段で。朝の通勤・通学時間帯は、63戸分の人の流れで少し混雑するかもしれません。ゆったりめのスケジュールで行動するのがおすすめです✧

風がすーっと通る外廊下を歩けば、気分もすっきり!お部屋に着くまでのひとときが、毎日の小さなリフレッシュタイムになりますね☀
その他の共用部・設備写真
物件概要
設備・特徴
防犯カメラ
渋谷駅周辺は、常に新しいカルチャーとトレンドが生まれる活気ある街として知られています。駅前には大型商業施設や多彩な飲食店が集まり、日常の買い物から外食、休日のショッピングまで徒歩圏で完結する利便性が魅力✧一方で、少し駅から離れると落ち着いた住宅街や静かな路地が広がり、賑わいと穏やかさのバランスが取れた住環境が整っています。交通面では、JR山手線をはじめ複数路線が乗り入れるターミナル駅ならではの高い利便性を誇ります。新宿・東京・品川といった主要エリアへも短時間でアクセスでき、通勤・通学はもちろん、プライベートの移動もスムーズ。終電時間が遅く、夜遅くの帰宅にも安心感があります。刺激のある都市生活を楽しみながら、暮らしやすさもしっかり確保できる点が、渋谷駅エリアならではのおすすめポイント♩
アクセス
JR山手線/埼京線/湘南新宿ライン/京王井の頭線/東急東横線/田園都市線/東京メトロ銀座線/半蔵門線/副都心線 『渋谷』駅 徒歩6分
京王井の頭線 『神泉』駅 徒歩9分
買い物
学区
※掲載している学区情報は、記事制作時点での参考情報です。
区域によっては学校の指定が異なる場合もありますので、詳細は必ずご確認ください。
その他
こちらの物件は弊社運営の別サイトでもご紹介中♪