間取り図
なら
仲介手数料 無料!
追加費用も一切なし
マンションは、“どこから買うか”で
支払う費用が変わります
仕組みを詳しく見る
月々の支払い目安を見る
※ローンの⽬安は、頭⾦ゼロ、借⼊年数35年、都市銀⾏・変動⾦利0.595%(優遇利⽤を想定。) 審査内容により、融資の⼀部または全部をご利⽤いただけない場合がございます。予めご了承ください。
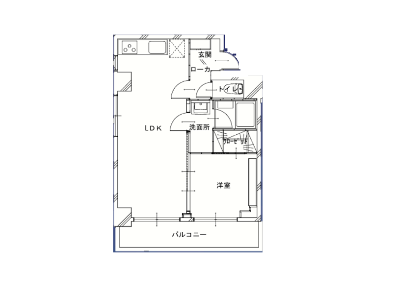
間取り図
4F
編集部が実際に現地を訪れ、見たもの・感じたことをレポート。
図面だけでは伝わらない"リアルな空気感"をお届けします。
更新日:2026/03/01
更新日:2026/03/01
駅からすぐ、ひとり暮らしが心地いい部屋

フルリノベーションが施された専有面積40.70㎡の1LDK。1人暮らしに最適な間取りで、生活動線もシンプル。内装はあえて装飾を抑えたデザインなので、家具やインテリアで自分らしさを自由に表現できます。さらに天井が高く設計されているため視線が上へと抜け、お部屋全体がすっきりと広く見えるのも嬉しいポイント。

メインルームは奥行きのある形状となっており、リビングスペースとダイニングスペースを自然にゾーン分けしやすいレイアウト。角部屋ならではの2面採光で日中は明るい光が差し込み、風通しも良好です。照明には埋め込み式のダウンライトを採用しているため、背の高い家具を配置しても圧迫感が出にくく、すっきりとした空間を保てますよ。

キッチンは上品なライトグレーのデザインを採用し、空間にやさしくなじむ仕上がり。グリル付きの3口コンロが備わっており、自炊派の方にも嬉しい仕様。収納スペースも十分に確保し、調味料や調理器具をまとめてしまえ、キッチン周りを常にすっきり保てます。すぐ横には窓があり、換気面も安心。

洋室とメインルームはスライド扉で仕切られており、ライフスタイルに合わせた使い分けが可能です。扉を開ければ空間が一体となり、より開放的な印象に。来客時には扉を閉めて、プライベートな空間をしっかり隠せます。大きな掃き出し窓からはバルコニーへ出ることができ、明るさも十分◎

玄関には大容量のシューズクローゼットを設置。普段使いの靴はもちろん、季節物の靴や折りたたみ傘などもまとめて収納可能です。散らかりがちな玄関スペースをすっきりと保て、帰宅時も来客時も気持ちよく迎えられるのは嬉しいですよね。

無駄を省いたシンプルなデザインのトイレは、明るく清潔感のある印象。温水洗浄機能付き便座で、季節を問わず快適に使えます。背面上部には吊戸収納棚が設置されており、トイレットペーパーなどのストックを手の届く位置に収納できるのも便利。

洗面室には独立タイプの洗面台を設置。ミラーキャビネット付きで、歯ブラシやスキンケア用品など細かなアイテムもきれいに収納できます。3面ミラー仕様のため、身だしなみチェックもスムーズ。また、シャワータイプの水栓を採用しており、ボウルのお掃除も簡単に♪

無駄のない設計でまとめられたバスルームは、1人暮らしにちょうどいいサイズ感。追い焚き機能付きなので、帰宅時間が遅くなっても温かいお湯で入浴できます。コンパクトながらも、リラックスできるバスタイムをしっかり確保できるのが魅力。
その他の室内・設備写真
▲ このお部屋の雰囲気がお好みの方へ
東京グラウンド編集部の住まいレビュー
都営浅草線が乗り入れる馬込駅から徒歩わずか3分、改札を出て住宅街へ入りほどなくすると今回ご紹介する『ロイヤルパレス馬込』が見えてきます。駅近とは思えないほど周囲は落ち着いた雰囲気で、都心へのアクセスと穏やかな住環境をどちらも重視したい方には嬉しい立地だと思いました。
今回ご紹介するのは、フルリノベーションが施された専有面積40.70㎡の1LDK。玄関扉を開けた瞬間から、室内の整った空気感が伝わってきます。まず目に入るのは、コンパクトながらも大容量のシューズクローゼットを備えた玄関スペース。靴はもちろん、折りたたみ傘などもまとめて収納可能。散らかりがちな玄関を常にきれいに保てるのは、日々の暮らしの中で意外と大きなポイントです。室内へ進むと、奥行きのあるメインルームが広がります。天井が高く設計されているため、実際の広さ以上に開放感を感じられる空間。角部屋につき2方面に窓があり、取材時も自然光がたっぷりと差し込み、風通しの良さも実感できました。また、リビングとダイニングをゾーン分けしやすい形状なので、家具配置のイメージも自然と膨らみます♪
メインルームの横にはスライド扉で仕切られた洋室が配置されていました。普段は扉を開けて空間を一体で使えば、より開放的な印象に。来客時には扉を閉めて、プライベートな空間をしっかり確保できます。大きな掃き出し窓からはバルコニーへ出ることができ、明るさも十分。寝室としても心地よく使えそうです。バスルームは1人での入浴には申し分のないサイズ感で追い焚き機能付き。足を伸ばすことは難しそうですが、いつでも温かい湯船につかれるのは嬉しいですよね♡
1人暮らしに最適な間取りと駅徒歩3分という立地を兼ね備えた一室。実際に足を運んでみて、暮らしのイメージが自然と湧いてくる、そんな住まいでした。 ライター:hana【26B05】
この物件の毎月の支払いイメージを
試算してみませんか?
頭金や返済年数などを入力するだけで毎月の合計支払額をシミュレーションできます。
3,120
毎月の支払い予想シミュレーション
※試算結果はあくまで目安であり、実際の借り入れを保証するものではありません。
※物件によっては上記以外の別途費用が発生する場合もございます。詳しくはお問い合わせくださいませ。
住戸概要
こちらのお部屋は販売終了いたしました
過去に販売したお部屋の一部をご紹介。
住まい探しやリノベーションのヒントにご覧ください。
東京グラウンド編集部の住まいレビュー
馬込駅を出るとすぐに見えるレモンイエローのマンション『ロイヤルパレス馬込』。金色のライオンが飾られたアプローチを進み、今回は4階のお部屋へお邪魔します。1~2人暮らしにおすすめな専有面積52.34㎡の2DKで、陽当たり良好な南向きです。新規リノベーションが2024年11月に完了しました。ダイニングキッチンと2部屋の洋室は繋がっており、扉を開けておくとダイニング側までしっかり光と風が届きます✧間取りの記載は2DKですが、家具配置によっては1LDKや仕切りが付いたワンルームのような感覚でも使えそう◎元々の間取りに囚われず、自由な発想でレイアウトを考えてみてください。バルコニーは環七通りと反対側を向いているので、窓を開けても騒音が気になりませんでした。ご注意いただきたいポイントは天井がやや低いこと。居室間を仕切る扉の部分やウォークインクローゼットの入り口はおおよそ160~165㎝ほどしかないため、高身長な方にはおすすめしません。身長160㎝以下の小柄な方なら不便なく暮らせると思うので、ご興味がある方は一度現地でご確認いただくと安心です。 ライター:yuki【25B07】
[ひとつづきの自遊空間] ロイヤルパレス馬込
馬込駅
徒歩3分

屋根の上に「P」の文字が掲げられたレモンイエローのマンション『ロイヤルパレス馬込』。遠くからでもすぐに分かる個性的な外観です✦地下1階・地上11階建て、総戸数92戸のビッグコミュニティ。

環七通り沿いに位置しているため、夜遅い時間でも周辺が明るく安心◎アプローチは段差のないバリアフリーな造りです。エントランス前に大きな屋根が付いており、落ち着いて雨傘を準備できます。

オートロックを抜けてエントランスホールに入るとエレベーターが2基。こちらは偶数階用・奇数階用で分けられています。

共用廊下は完全な屋内型なので、雨の日も快適に移動できます。夏場に虫が入ってきづらいことや、外からの視線が気にならないのも嬉しいポイントですね。
その他の共用部・設備写真
物件概要
設備・特徴
エレベーター オートロック 防犯カメラ
馬込は大田区と品川区の境目付近に位置するエリア。馬込駅には都営浅草線が乗り入れており、五反田駅におおよそ6分でアクセス可能です◎五反田駅でJR山手線に乗り換えできるので都市部への移動がしやすく、通勤・通学に便利。大きな商業施設や商店街などはありませんが、駅周辺にスーパー、コンビニ、ドラッグストア、各種クリニックが集まるメディカルモールが揃っています。
アクセス
都営浅草線 『馬込』駅 徒歩3分
東急大井町線 『荏原町』駅 徒歩13分
東急池上線 『長原』駅 徒歩16分
買い物
学区
※掲載している学区情報は、記事制作時点での参考情報です。
区域によっては学校の指定が異なる場合もありますので、詳細は必ずご確認ください。
その他
こちらの物件は弊社運営の別サイトでもご紹介中♪