仲介物件の多くは『レインズ』という不動産会社だけが利用できる情報サイトに掲載されています。レインズはどの不動産会社も同じ情報にアクセスできる仕組みのため、会社によって紹介できる物件が限定されるということはほとんどありません。
当サイトに掲載されていない物件であっても、気になる物件があれば、仲介手数料無料または割引(規定上限額の30〜50%)でご案内可能です。そのため、物件の条件にかかわらず、常にお客さまのご負担を最小限に抑えたご提案を行っています。
こちらのお部屋は販売終了いたしました
過去に販売したお部屋の一部をご紹介。
住まい探しやリノベーションのヒントにご覧ください。
東京グラウンド編集部の住まいレビュー
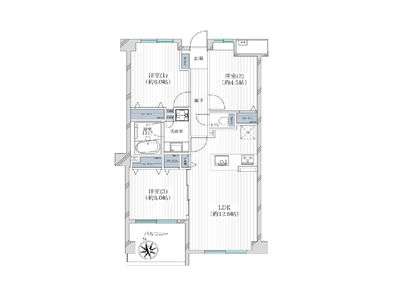
ご紹介するのは、下北沢駅から徒歩6分の所に佇む『東急ドエルアルス下北沢サウスウインド』の3階部分に位置するお部屋です。専有面積63.85㎡の3LDKで、お子様のいるファミリーでもゆったりと暮らせる間取り。2025年8月にリノベーションが施されたばかりで、上品なデザインで新築のように美しい室内でした✧。南向きにつき陽当たりは良好で、全室に収納スペースを備えた抜群の収納力◎リビングダイニングキッチンに隣接する洋室は、すりガラス仕様のスライドドアを採用しており、閉めていても開けていても圧迫感がなく空間全体に開放感が広がっていました。窓の外には電車が走りますが、2重サッシ仕様のため騒音は気にならず快適にお過ごしいただけますよ♪ぜひ気になる方は現地にて、この住まいの魅力をご体感くださいね。 ライター:hana【25H13】
こちらのお部屋は販売終了いたしました
過去に販売したお部屋の一部をご紹介。
住まい探しやリノベーションのヒントにご覧ください。
東京グラウンド編集部の住まいレビュー
最寄りは小田急小田原線、京王井の頭線が利用できる下北沢駅。新宿や渋谷の都心部へのアクセスが良好◎ライブハウスや古着屋さんが集まるサブカルチャーなエリアです。駅周辺には多彩な飲食店が立ち並ぶ商店街や、「ミカン下北」という複合施設があり昼夜問わず活気にあふれた街並み♩どれだけ歩いても飽きることなく楽しめる街並に感じました。そんなエリアに位置する『東急ドエルアルス下北沢サウスウインド』。ご紹介するのは2025年3月にリフォームが施されたばかりの2階部分のお部屋。間取りは2LDKですが大きなメインルームを分けて3LDKに変更する事も可能◎アフターサービス保証も付いているので安心です♩南向きの窓があり陽当たり良好☀また、嬉しい2重サッシ仕様のため外の騒音も気になりませんでした!そんなお部屋がある『東急ドエルアルス下北沢サウスウインド』。気になる方はぜひ現地でご確認ください。
ライター:hana【25D13】
こちらのお部屋は販売終了いたしました
過去に販売したお部屋の一部をご紹介。
住まい探しやリノベーションのヒントにご覧ください。
東京グラウンド編集部の住まいレビュー
再開発が進むサブカルタウン、下北沢駅♡たくさんの個性が混じり合う、自由な雰囲気がお好きな方も多いのではないでしょうか。新しく誕生した「ミカン下北」を通り抜け、線路沿いを突き当りまで進むと『東急ドエルアルス下北沢サウスウインド』の姿が見えてきます。ご紹介したのは最上階のお部屋。下北沢という街を象徴するかのような、個性あふれる内装デザインが魅力的ですね✦最大のポイントは曲線のラインを描く木目天井。無垢材のようにも見える素朴な質感がたまりません。天井高はなんと最大4.6mと、非常に開放的ですよ。電車の音がうるさいのでは?と思いきや、窓を閉めていると線路沿いであることを忘れてしまうほどの静かさでした♩遊び心と個性を大切にする大人におすすめしたい1部屋です。 ライター:加藤【23G10】
[遊び心を忘れない大人へ] 東急ドエルアルス下北沢サウスウインド
池ノ上駅
徒歩3分

こちらの建物が『東急ドエルアルス下北沢サウスウインド』です。目に優しい柔らかなブラウンの外壁ですね✿地下1階地上4階建てで、総戸数は22戸。1998年築のため新耐震基準を満たしており、安心してお住まいいただけます。

少し奥まった部分にエントランスが見えました。階段の横にスロープが併設されているので、ベビーカーをご利用の方でも移動しやすいですね。宅配ボックスが設置されているため、お荷物の受取がスムーズにできますよ。

エントランス内に入ると、目の前にちょこんとフクロウの像が立っていました。オートロックと防犯カメラを完備し、セキュリティ面は心配ありません◎ エレベーターは1基稼働しています。フロア数・総戸数共にそれほど多くないので、待ち時間が少なくストレスフリー♪

外階段が2か所に設置されています。お急ぎの際はこちらも併せてご利用ください。玄関扉が並ぶのは開放的な外廊下✦屋外ではありますが公道には面しておらず、プライベート感が強く感じられました。
その他の共用部・設備写真
物件概要
設備・特徴
エレベーター オートロック 宅配BOX 防犯カメラ 新耐震基準適合
ご紹介する『東急ドエルアルス下北沢サウスウインド』までは、下北沢駅から徒歩6分・池ノ上駅から徒歩3分です。京王井の頭線と小田急線を利用できるので、渋谷駅や新宿駅に乗り換えなしでアクセスできます✦サブカルチャーや古着ファンの聖地でもある下北沢♡ガヤガヤとした街中に個性あふれるお店が並び、自由な雰囲気が漂っていました。繁華街という印象が強いかもしれませんが、駅から少し離れると閑静な住宅街が広がっていますよ。駅前に大きなスーパーがあり、お買い物の際に不便はありません。線路の高架下にある「ミカン下北」は街の雰囲気を活かしたクールなデザインですね。飲食店の多さは言うまでもありません。ぜひ散策してお気に入りのお店を探してみてください♬
アクセス
京王井の頭線 『池ノ上』駅 徒歩3分
京王井の頭線/小田急線 『下北沢』駅 徒歩6分
買い物
学区
※掲載している学区情報は、記事制作時点での参考情報です。
区域によっては学校の指定が異なる場合もありますので、詳細は必ずご確認ください。
その他
こちらの物件は弊社運営の別サイトでもご紹介中♪
東急ドエルアルス下北沢もご紹介中