仲介物件の多くは『レインズ』という不動産会社だけが利用できる情報サイトに掲載されています。レインズはどの不動産会社も同じ情報にアクセスできる仕組みのため、会社によって紹介できる物件が限定されるということはほとんどありません。
当サイトに掲載されていない物件であっても、気になる物件があれば、仲介手数料無料または割引(規定上限額の30〜50%)でご案内可能です。そのため、物件の条件にかかわらず、常にお客さまのご負担を最小限に抑えたご提案を行っています。
こちらのお部屋は販売終了いたしました
過去に販売したお部屋の一部をご紹介。
住まい探しやリノベーションのヒントにご覧ください。
東京グラウンド編集部の住まいレビュー
代官山・中目黒・恵比寿が徒歩圏内の好立地マンションをご紹介します。通勤通学はもちろん、プライベートも充実しそうな目黒区中目黒アドレス。『中目黒フラワーマンション』の1階部分に位置する、1LDKのお部屋です。大切なペットと一緒に暮らせます♡メインとなるのは、約10.5帖のリビングダイニングキッチン。南西向きの窓からはたっぷりの採光が入り、お部屋全体が明るくポカポカと温かな印象です。さらにはエアコンも備わっているので、引越し直後から快適な暮らしをスタートできます。約5.2帖の洋室は2面採光で陽当たり&風通し良好。開放感があり、寝室にピッタリです。居住用、投資用、セカンドルームなど使用用途は様々なので、是非一度ご内見にいらして下さいね。 ライター:rei【25H19】
こちらのお部屋は販売終了いたしました
過去に販売したお部屋の一部をご紹介。
住まい探しやリノベーションのヒントにご覧ください。
東京グラウンド編集部の住まいレビュー
今回ご紹介したのはおしゃれタウン、代官山や恵比寿が最寄りのマンション。華やかな街並みは、ご帰宅道中もワクワクしそうです…✿グルメ・ショッピング・ファッション、どれも楽しめる若者に人気のエリアですよ。『中目黒フラワーマンション』は車通りの多い駒沢通り沿いに佇みます。1967年築と年数は経過しているものの、清掃がしっかりと行き届いたマンションからは管理体制の良さがうかがえ、安心してご入居いただけるのではないでしょうか。室内は新規リノベーション済み1LDK。天井・フローリング共に木材を使用したナチュラルでオシャレな南向きリビングダイニングが魅力+* お部屋探しの際に重視する収納力も、ウォークインクローゼットがあればバッチリですね✧ ライター:石川【22I19】
こちらのお部屋は販売終了いたしました
過去に販売したお部屋の一部をご紹介。
住まい探しやリノベーションのヒントにご覧ください。
東京グラウンド編集部の住まいレビュー
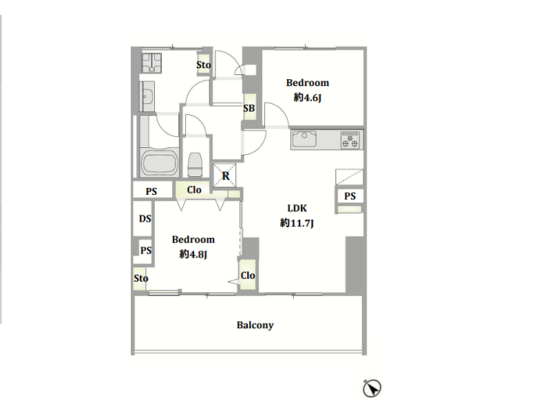
都内屈指のオシャレエリア、目黒区中目黒に佇む『中目黒フラワーマンション』をご紹介。代官山や恵比寿も徒歩圏内なので、プライベートも充実しそうですね。ご紹介のお部屋は6階部分に位置する、南西向きの1DK。2025年7月に新規内装フルリノベーションが施されたばかりです。メインとなるダイニングキッチンには、エアコン1基が新設されたので引越し直後から快適な暮らしをスタートできます。窓からはたっぷりの採光が入り、1年を通して快適にお過ごしいただけそう。是非一度ご内見にいらして、大切なペットと一緒に暮らす豊かな毎日をイメージしてみてください♡ ライター:rei【25H08】
こちらのお部屋は販売終了いたしました
過去に販売したお部屋の一部をご紹介。
住まい探しやリノベーションのヒントにご覧ください。
東京グラウンド編集部の住まいレビュー
『代官山』と『恵比寿』という兎に角お洒落なお店が多く、休日に街散策するだけで楽しいエリアです。美味しいレストランやカフェも沢山あるので、お気に入りのお店をみつけてみてくださいね♡今回ご紹介するのは、ペット飼育可能な1LDKのお部屋。平成28年に大規模工事実施済み、新規内装・水回り設備フルリフォーム済みなので、まるで新築のような住み心地ですよ。 ライター:渡邊【21J27】
[センスが日常に溶け込む] 中目黒フラワーマンション
代官山駅
徒歩4分

坂の上に佇むこちらの7階建てマンションが『中目黒フラワーマンション』です。淡いピンクの外観が魅力的♡総戸数は48戸です。

青々とした植栽に囲まれたアプローチ部分。スロープ付きなので、スーツケースやベビーカーなどもスムーズに移動できます。

敷地内には屋根付きの駐輪場がありました。駐車場は平置き型で道路に面しているため出し入れが簡単です。

共用部は隅々まで清潔に保たれていて、管理体制の良さが伺えました。過去には大規模修繕工事が行われたこともあります。
その他の共用部・設備写真
物件概要
設備・特徴
エレベーター 防犯カメラ 長期修繕計画有
中目黒駅は東急東横線と日比谷線が利用でき、渋谷や恵比寿、六本木、銀座方面への移動がスムーズ♪周辺にはセンスの光るカフェやショップ、ギャラリーが点在し、日常に彩りを与えてくれます。さらに目黒川沿いの桜や緑道は、季節の移ろいを身近に感じさせてくれる癒しの存在。都心の利便性と自然、文化が心地よく調和した暮らしが叶う街です。
アクセス
東急東横線 『代官山』駅 徒歩4分
東急東横線/東京メトロ日比谷線 『中目黒』駅 徒歩5分
JR山手線/埼京線/湘南新宿ライン/東京メトロ日比谷線 『恵比寿』駅 徒歩8分
買い物
学区
※掲載している学区情報は、記事制作時点での参考情報です。
区域によっては学校の指定が異なる場合もありますので、詳細は必ずご確認ください。
その他
こちらの物件は弊社運営の別サイトでもご紹介中♪