購入・売却・リノベ・無料相談はこちら 公式LINEで気軽に相談

ル・フェール桜新町

URLとタイトルをコピーしました!

【仲介手数料最大無料】世田谷区用賀1-7-17/桜新町駅徒歩11分/駐車場有/ペット飼育可/新耐震基準適合/定休日なしで内見予約・無料相談受付中です!
この物件の売却相談はこちら

仲介手数料最大無料でご紹介

東京グラウンド掲載物件以外も
仲介手数料が最大無料!

仲介物件の多くは『レインズ』という不動産会社だけが利用できる情報サイトに掲載されています。レインズはどの不動産会社も同じ情報にアクセスできる仕組みのため、会社によって紹介できる物件が限定されるということはほとんどありません。
仲介手数料最大無料でご紹介 当サイトに掲載されていない物件であっても、気になる物件があれば、仲介手数料無料または割引(規定上限額の30〜50%)でご案内可能です。そのため、物件の条件にかかわらず、常にお客さまのご負担を最小限に抑えたご提案を行っています。

●ご購入以外の当社サービスについても、すべて無料相談を承っております

ご希望のサービスにチェックを入れて、お問い合わせフォームへお進みください。

無料相談する

成約済み
販売終了物件
成約済み
販売終了物件

こちらのお部屋は販売終了いたしました

編集部の
部屋レポ

過去に販売したお部屋の一部をご紹介。
住まい探しやリノベーションのヒントにご覧ください。

▲ このお部屋の雰囲気がお好みの方へ

東京グラウンド編集部の住まいレビュー

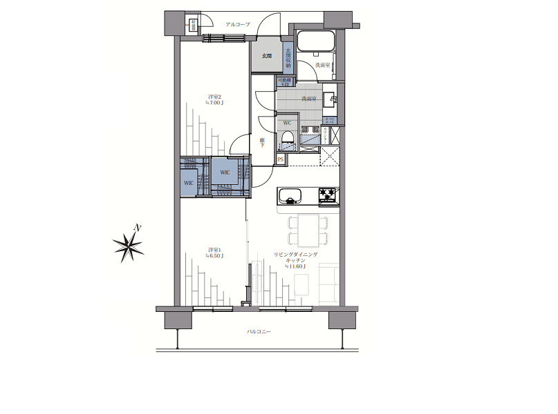
街中が「サザエさん」や桜のモチーフで埋め尽くされた桜新町。とても明るい雰囲気の街並みで、歩いていると楽しい気分になりますよ♪『ル・フェール桜新町』は駅から11分ほど歩いた場所にありますが、たくさんのお店が並ぶ「サザエさん通り」を通るため退屈せず、帰り道で買い出しを済ませることができます。ご紹介したお部屋は陽当り・通風・眺望良好な2LDKでした。家事動線が良いため、たくさんの家事に追われる日々もストレスなく過ごせますね。バルコニーからの眺望は、7階とは思えないほど開放感抜群+*朝焼けや夜景をこちらから見ることが、日々の楽しみの1つになりそうです。 ライター:加藤【22J02】

こちらのお部屋は販売終了いたしました

編集部の
部屋レポ

過去に販売したお部屋の一部をご紹介。
住まい探しやリノベーションのヒントにご覧ください。

▲ このお部屋の雰囲気がお好みの方へ

建物と街のようす

[サザエさん通りを抜けた先に…] ル・フェール桜新町

世田谷区用賀1-7-17MAP

桜新町駅

徒歩11分

外観・共用部

その他の共用部・設備写真

物件概要

物件名
ル・フェール桜新町
所在地
世田谷区用賀1-7-17
築年月
平成16年/2004年1月
構造
鉄筋コンクリート造
階数
10階建
土地
所有権
総戸数
38戸
分譲会社
株式会社興和不動産
管理会社
株式会社日鉄コミュニティ
駐車場
有 (22,000円~26,000円/月)
駐輪場
有 (1,000円/月)
ペット飼育
可 (細則有)

設備・特徴

エレベーター オートロック 宅配BOX 新耐震基準適合

アクセス・周辺環境

アクセス

東急田園都市線 『桜新町』駅 徒歩11分

東急田園都市線 『用賀』駅 徒歩12分

こんなお部屋に住みたい方へ リフォーム:リノベーション

不動産にまつわるご相談・ご質問・資料請求など
まずはお気軽にお問い合わせくださいませ。