間取り図
価格改定
こちらの物件の仲介手数料は
個別にご案内いたします。
詳細をご希望の方は
お気軽にご相談ください。
お問い合わせはこちら
月々の支払い目安を見る
※ローンの⽬安は、頭⾦ゼロ、借⼊年数35年、都市銀⾏・変動⾦利0.595%(優遇利⽤を想定。) 審査内容により、融資の⼀部または全部をご利⽤いただけない場合がございます。予めご了承ください。
間取り図
503号室
編集部が実際に現地を訪れ、見たもの・感じたことをレポート。
図面だけでは伝わらない"リアルな空気感"をお届けします。
更新日:2026/04/15
更新日:2026/04/15
住居でもSOHOでも

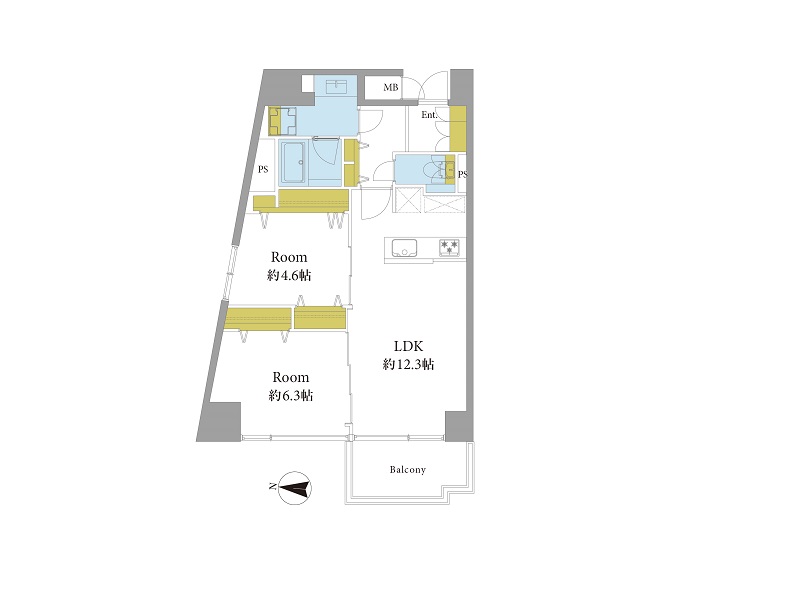
今回ご紹介するのは5階部分に位置する2LDK。専有面積は57.81㎡で、パートナーやご家族との新居にオススメです。事務所利用ができるので、住居やオフィス、両方を兼ねたSOHOなど様々な使い方ができますね。

リビングダイニングキッチンはおよそ12.3帖です。白いクロスとフローリングのシンプルな空間に、タイル調のクロスがアクセントとして用いられています。大きなアートや壁掛けテレビを飾っても良さそうですね。撮影時シーリングライトが設置されていなかったので、お好みのライトを取り付けてください♩

こちらの2LDKは2020年11月にリノベーションが実施されており、キッチンもその際に新しいものに交換されていますよ◎食洗機や浄水器一体型の水栓、グリル付きの3口コンロを搭載。自炊を頻繁に行う方にも、これなら快適にご利用いただけます。

およそ6.3帖の洋室はメインルームに面しています。引き戸が大きく開くので、寝室として使わない際は戸を開けてメインルームを大きく見せることができます。ワイドな窓があり、とっても開放的です。

もう1部屋は約4.6帖とちょっぴりコンパクト。ただ、クローゼットが2つも備わっているため、荷物をたくさんしまってお部屋を広く使うことができるんです!全ての居室にエアコンを完備しているのも嬉しいポイント。オールシーズン室内を心地良い状態に保てます。

サニタリールームは玄関正面に。ご帰宅後すぐに手を洗うことができて衛生的ですよね。洗面化粧台は鏡が大きく使い勝手が良さそう♪洗面ボウル周りのカウンターが広いので、タオルやドライヤーなどを置きやすいという特徴も。

玄関は土間が広く、ベビーカーを折りたたまずにご帰宅いただけます。万が一出先でお子様が寝てしまっても、これなら安心ですね。ビッグサイズのシューズボックスに加えて、廊下にも大きな収納をご用意。廊下の収納には日用品のストックやお掃除道具などをしまってください。

西向きのバルコニーへは、リビングダイニングキッチンから出入りできます。4.85㎡とコンパクトな空間。下を見ると、「薬師坂」が広がっていました。交差点に位置していることで前面が開けており、開放的な景色をお楽しみいただけます。
その他の室内・設備写真
▲ このお部屋の雰囲気がお好みの方へ
東京グラウンド編集部の住まいレビュー
『グランドシティ白山』は、白山駅や本駒込駅、春日駅の3駅3路線が利用可能です。特に白山駅は徒歩1分という近さなので、悪天候の日でも駅まで向かうストレスが少なく済みますよ。また地下鉄なので駅近ながら電車の走行音が気にならない点も嬉しいですね♪生活圏には「白山神社」や「小石川植物園」など古くからの歴史を持つスポットが。都心ながら豊かな自然を味わえるのは、この地で暮らす魅力の1つと言えますね。『グランドシティ白山』は13階建ての平成築マンション。数年前に大規模修繕工事が実施されており、マンション内はとても綺麗な状態が保たれていました。宅配ボックスや24時間ゴミ出し可能なゴミ捨て場があり、快適な暮らしをサポートしてくれる設備を完備。そしてセキュリティ面もバッチリです。お目当ての2LDKは、シンプルかつモダンなナチュラルテイスト仕様。どんな家具を置くかでお部屋の雰囲気がガラッと変わりそう。収納があちこちに備わっているのも印象に残りました。生活感のあるアイテムをたくさんしまって、お部屋をすっきりと美しく保てます。 ライター:mii【26A11】
この物件の毎月の支払いイメージを
試算してみませんか?
頭金や返済年数などを入力するだけで毎月の合計支払額をシミュレーションできます。
8,499
毎月の支払い予想シミュレーション
※試算結果はあくまで目安であり、実際の借り入れを保証するものではありません。
※物件によっては上記以外の別途費用が発生する場合もございます。詳しくはお問い合わせくださいませ。
住戸概要
こちらのお部屋は販売終了いたしました
[心安らぐ住環境] グランドシティ白山
白山駅
徒歩1分

バルコニーが前に突き出た立体的な外観が印象的な『グランドシティ白山』。1992年1月築のマンションで、数年前に大規模修繕工事が実施されました。長期修繕計画もあるので長い目で見ても安心して暮らせますね。

美しい草花が植えられたアプローチを進むと、タイル貼りのエントランスが現れます。オートロック・管理人室・防犯カメラを完備。荷物の受け取りに便利な宅配ボックスもご用意していますよ。

白く美しいエントランスを進みましょう。大きな窓の先にはきちんと手入れされた坪庭が♫エレベーターは1番突き当りに設けられていました。

居住フロアは外廊下仕様になっていました。廊下の様子が外から見えないように配置が工夫されているので、プライバシーが守られます。
その他の共用部・設備写真
物件概要
設備・特徴
エレベーター オートロック 宅配BOX 防犯カメラ 新耐震基準適合 長期修繕計画有
テナント
飲食店、学習塾
高級住宅街として知られる白山駅。治安が良く、1人暮らしからファミリー層まで幅広い世代に人気です。駅前の「薬師坂」沿いにはスーパーやコンビニ、ドラッグストアを始め飲食店など様々なお店が並んでいます。お目当ての『グランドシティ白山』の低層階にも飲食店や学習塾など様々なテナントが入っていました。マンションエントランスは、閑静な「浄心寺坂」に面していますよ。
アクセス
都営三田線 『白山』駅 徒歩1分
東京メトロ南北線 『本駒込』駅 徒歩10分
都営大江戸線/三田線 『春日』駅 徒歩14分
買い物
学区
※掲載している学区情報は、記事制作時点での参考情報です。
区域によっては学校の指定が異なる場合もありますので、詳細は必ずご確認ください。
その他
こちらの物件は弊社運営の別サイトでもご紹介中♪