仲介物件の多くは『レインズ』という不動産会社だけが利用できる情報サイトに掲載されています。レインズはどの不動産会社も同じ情報にアクセスできる仕組みのため、会社によって紹介できる物件が限定されるということはほとんどありません。
当サイトに掲載されていない物件であっても、気になる物件があれば、仲介手数料無料または割引(規定上限額の30〜50%)でご案内可能です。そのため、物件の条件にかかわらず、常にお客さまのご負担を最小限に抑えたご提案を行っています。
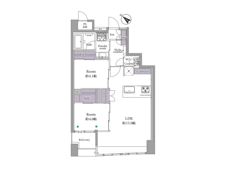
こちらのお部屋は販売終了いたしました
東京グラウンド編集部の住まいレビュー
今回のお目当て『フォルム小石川』は、後楽園駅からは徒歩5分♪駅からすぐのところに東京ドームや、遊園地、大型商業施設「ラクーア」があり、休日はもちろん、仕事終わりでもショッピングやグルメが楽しめますよ。野球の試合やライブの日などは駅が混雑する可能性が高いので、その日は終了時間などを避けてご帰宅するのがオススメ◎タイル貼りのビッグコミュニティ『フォルム小石川』をご紹介します。角地に建っているマンションのため、周囲の建物に日差しが遮られにくく、採光面で期待ができます。マンションの1階にテナントが入っているというのも嬉しいポイントです。何か買い忘れがあってもすぐに買い足せますね。今回は、専有面積90㎡超えの明るく開放的な空間へ。隅々までしっかりとリノベーションが行われているので、使用感がなく快適にお過ごしいただけますよ。廊下が少し特徴的な造りになっていて、メインルームと、洋室・サニタリールームが少し離れた配置になっています。PP分離がしっかりしていて、お客様がいらしてもプライベートな部分を見られずに済みそうです◎廊下収納にワイドサイズのクローゼット、玄関に大容量のシューズインクローゼットを備え収納量も問題ありません。荷物をたくさんしまって、お部屋を広く見せることが可能です。 ライター:yuka【25C26】
こちらのお部屋は販売終了いたしました
過去に販売したお部屋の一部をご紹介。
住まい探しやリノベーションのヒントにご覧ください。
東京グラウンド編集部の住まいレビュー
『春日』駅から徒歩4分と好立地の大規模マンション、『フォルム小石川』。周辺には下町情緒溢れる商店街があり、懐かしさを感じながらお食事やお買い物を楽しめます。また、徒歩圏内に東京ドームや後楽園があるので、お散歩がてらに立ち寄れるのも魅力的。今回ご紹介したお部屋は、8階部分に位置する2LDK。2021年11月に新規リノベーションが施されており、オシャレで綺麗な室内でお過ごしいただけます✧約17.3帖の広々としたリビングダイニングキッチンは、窓が多く開放的ですよ。是非一度ご自身の目で確かめてみてくださいね。 ライター:石川【22B01】
[充実した生活環境] フォルム小石川
春日駅
徒歩4分

地下2階付き地上14階建て、総戸数106戸の大規模マンション『フォルム小石川』。ブラウンのタイルが用いられた、上品な外観が目印です。1990年9月築ですが、数年前に大規模修繕工事が実施され綺麗な状態が保たれています。

エントランスはスーパーなどのテナントとは別の位置に設けられていました。これなら店舗のお客様がマンション内に立ち入るリスクは低そうです。アプローチには大きな庇が備わっています。雨具や日傘などの支度をゆっくり行えますね。

エントランスにはオートロックや防犯カメラを完備。24時間有人管理なので、往来の多いエリアでも安心してお過ごしいただけるはず。管理人室はマンションの3階部分に設けられているようです。宅配ボックスを備えているほか、24時間ゴミ出し可能なのも嬉しいポイントです。

エレベーターは2基完備しています。ビッグコミュニティですが、待ち時間は少なく済みそう◎居住フロアはロの字型になっている外廊下仕様です。吹き抜けから明るい太陽の光が降り注ぎます。マンションの外から廊下の様子が見えないので、外廊下ながらプライバシーが守られますね。
その他の共用部・設備写真
物件概要
設備・特徴
エレベーター オートロック 宅配BOX 防犯カメラ 24時間有人管理コンシェルジュサービス 新耐震基準適合
都営三田線・大江戸線が乗り入れる春日駅。新宿駅や目黒駅、日比谷駅へ1本で行けるアクセス良好な立地です。近代的なデザインが美しい大型複数施設「文京ガーデン」や懐かしい雰囲気漂う「えんま通り商店街」など、お買い物やお食事を楽しめるお店が充実しています。マンションの目の前にドラッグストアがある上に、マンション1階部分には24時間営業のスーパーが入っています。生活至便な住環境と言えますね。
アクセス
都営大江戸線/三田線 『春日』駅 徒歩4分
東京メトロ丸ノ内線/南北線 『後楽園』駅 徒歩5分
買い物
学区
※掲載している学区情報は、記事制作時点での参考情報です。
区域によっては学校の指定が異なる場合もありますので、詳細は必ずご確認ください。
その他