仲介物件の多くは『レインズ』という不動産会社だけが利用できる情報サイトに掲載されています。レインズはどの不動産会社も同じ情報にアクセスできる仕組みのため、会社によって紹介できる物件が限定されるということはほとんどありません。
当サイトに掲載されていない物件であっても、気になる物件があれば、仲介手数料無料または割引(規定上限額の30〜50%)でご案内可能です。そのため、物件の条件にかかわらず、常にお客さまのご負担を最小限に抑えたご提案を行っています。
こちらのお部屋は販売終了いたしました
[文教の気配に住まう] サンテミリオン江戸川橋
江戸川橋駅
徒歩3分

『サンテミリオン江戸川橋』は東京メトロ有楽町線江戸川橋から徒歩3分の場所に佇む、鉄筋コンクリート造・6階建てのマンションです。レンガ調の外観がゆったりとした周囲の街並みと調和し、穏やかな印象。大地震の際にも安心な、新耐震基準をクリアしています。

石造りがシックでおしゃれなアプローチ部分。庇がしっかりと設けられ、傘を取り出したり、荷物を整理したりするのにちょうどよいスペースとなっています。アプローチから右側に回り込むと駐輪場があるので、自転車をよく使う方も安心です。

エントランスを入ってすぐの場所に宅配ボックスがあります。荷物の多い方も帰宅のついでに確認できて便利です。監視カメラ&オートロック付きでセキュリティは◎時間帯によっては管理人さんもいるようでしたよ。

管理の行き届いた外廊下。ガラス部分には曇りガラスを採用しているので、外からの視線が気になりません。雨風を防ぎながら、通気性の良さも確保された造りになっています。廊下の端には外階段があり、そちらもご利用いただけます。
その他の共用部・設備写真
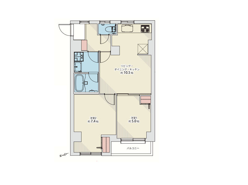
物件概要
設備・特徴
エレベーター オートロック 宅配BOX 防犯カメラ 新耐震基準適合 長期修繕計画有
東京メトロ有楽町線が乗り入れる江戸川橋駅は、池袋まで6分・有楽町駅まで12分と主要エリアへのアクセスは抜群。お出かけにも通勤にもバランスの良いエリアになっています。周辺は、上を高速道路が通り、下に神田川が流れるダイナミックな雰囲気。駅前の大通りには、飲食店のほかにスーパー・病院といった生活に密着したお店が立ち並んでいます。休日にはファミリーや年配の方がのんびりと歩いている様子が多く見受けられ、なんだか温かさを感じる街です。
アクセス
東京メトロ有楽町線 『江戸川橋』駅 徒歩3分
東京メトロ東西線 『神楽坂』駅 徒歩12分
東京メトロ丸ノ内線 『茗荷谷』駅 徒歩13分
東京メトロ有楽町線 『護国寺』駅 徒歩14分
買い物
学区
※掲載している学区情報は、記事制作時点での参考情報です。
区域によっては学校の指定が異なる場合もありますので、詳細は必ずご確認ください。
その他