仲介物件の多くは『レインズ』という不動産会社だけが利用できる情報サイトに掲載されています。レインズはどの不動産会社も同じ情報にアクセスできる仕組みのため、会社によって紹介できる物件が限定されるということはほとんどありません。
当サイトに掲載されていない物件であっても、気になる物件があれば、仲介手数料無料または割引(規定上限額の30〜50%)でご案内可能です。そのため、物件の条件にかかわらず、常にお客さまのご負担を最小限に抑えたご提案を行っています。
【菱和パレス日本橋浜町 2F】はご成約となりましたが、弊社では他にも仲介手数料無料もしくは30%OFFでご紹介できる物件を多数(売買も賃貸も)扱っております。
お問い合せを頂けましたら、皆様にぴったりなお部屋をお探しさせて頂きます♪

●種類 中古マンション/リノベーション
●住所 中央区日本橋浜町3-29-5
●築年月 平成11年2月
●構造 鉄骨鉄筋コンクリート造 11階建2階部分
●土地 所有権
●総戸数 32戸
●管理会社 株式会社クレアスコミュニティー
●専有 33.49㎡
●バルコニー 4.82㎡
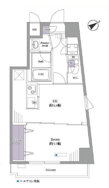
●間取り 1DK+2Closet
○管理費 10,700円/月
○修繕積立金 11,770円/月
○駐車場 無
○駐輪場 空有(無償)
○バイク置き場 空無(3,000円/月)
※ペット飼育 可(細則有)
※事務所利用 可(条件有)
※アフターサービス保証付
※フラット35s適合
※R1住宅適合
※長期修繕計画書有
※平成28年12月 大規模修繕工事実施済
ACCESS
・都営新宿線 『浜町』駅 徒歩5分
・東京メトロ半蔵門線 『水天宮前』駅 徒歩7分
・東京メトロ日比谷線/都営浅草線 『人形町』駅 徒歩10分
・東京メトロ半蔵門線/都営大江戸線 『清澄白河』駅 徒歩13分
【間取り】


最寄りは『浜町』駅。他にも『人形町』駅や『水天宮前』駅が徒歩10分以内にあり、下町情緒溢れる街に佇むマンションをご紹介します✿
『浜町』駅を出ると目の前には「浜町公園」が♪運動場や無料のデイキャンプ場、お子様が遊べる遊具からスポーツセンターまであり、ビルが建ち並ぶエリアで思い切り体を動かせる公園があるのは、嬉しいポイントです♡


マンションまでは舗装され、歩きやすい道のりを進みます。浜町公園以外にも小さな公園や神社などがあり、なんだか落ち着く雰囲気✿お買い物はマンションから徒歩2分のところにスーパーがあるので、ご案内ください(*ノωノ)
ブラウンの外観が街に馴染んだこちらが「菱和パレス日本橋浜町」★平成11年築のまだまだ新しいマンションです♪

フラットなアプローチは旅行用トランクなども運びやすいですね(‘ω’)ノ石張りで高級感漂います♥


エントランスはオートロックと管理人さん、防犯カメラがあり女性の一人暮らしも安心の管理体制☆彡


エレベーターで上へ…1フロアに3住居程度しかないのでプライベート感がありますよ。

こちらが今回ご紹介する2階のお部屋✨シングルやディンクスの方にオススメの1DK♡
玄関右手にあるクローゼットはシューズボックスとしての利用が良さそう♪トールサイズで、容量も申し分ありません☆彡

玄関上がって右手にあるのは洗面台とバスルームがあるサニタリールーム✿
洗面台はまだミラー設置前でしたが、ちゃんとミラーが付くのでご安心ください♥コンパクトな大きさですが、1人で身支度をする分には十分なサイズかと思います(*^-^*)


ストライプのパネルが爽やかな雰囲気のバスルーム★1116サイズと少々こぢんまりとしていますが、追い焚き機能と浴室換気乾燥暖房機が備わり機能面はバッチリ♬
サニタリールームの向かいには開戸付きの洗濯機置き場が✨左手にちょっとしたスペースがあり、洗剤や洗濯カゴを置いておく場所として重宝しそう(=゚ω゚)ノ


デッドスペースを作らないスライドドアが採用されたトイレ✿ホワイトでまとめられ、清潔感たっぷり♬トイレカバー等で彩りをプラスするのもオススメ(*’ω’*)
廊下突き当りのドアからいよいよ居住スペースです✨

ダイニングキッチンの広さは約6.4帖✿


2人~3人掛けのダイニングテーブルとちょっとした家具を置ける広さがあります♪小窓もから陽が射し込み、十分明るい空間☀
キッチンは半独立型☆彡開口部分がダイニングのちょっとしたアクセスになっていますね♡


シンクは大きく、コンロは2口。お料理好きの方も満足の設備ではないでしょうか♬キッチン背面にカップボードを置いてもいいかも(*’▽’)


南東向きの窓に面した洋室は約5.5帖✿ダイニングとはスライドドアで繋がっているので来客時もプライベート空間を隠せます♪ベッドやデスクを置くには丁度良い広さ(*ノωノ)
洋室に備わるクローゼットは真ん中に仕切りがあり、シーズンごとにしまう衣類等が分けれて整理整頓がしやすそう✨枕棚も有効活用してください♪


バルコニーは洗濯物を干すには十分な大きさがあります。南東向きで洗濯物の乾きも良さそう☀

マンションが密集しているので、陽当り抜群…とまではいきませんが、丁度抜けたところから空を眺められますよ☀圧迫感もさほど感じませんでした✨
【動画もご覧ください】
https://youtu.be/pmGVhdTH5U8
ao18d05
都心の仲介手数料無料、割引の中古マンションをお探しの方はハイアーグラウンドまでお問い合わせ下さいませ♪