間取り図
なら
仲介手数料 30% OFF
マンションは、“どこから買うか”で
支払う費用が変わります
仕組みを詳しく見る
月々の支払い目安を見る
※ローンの⽬安は、頭⾦ゼロ、借⼊年数35年、都市銀⾏・変動⾦利0.595%(優遇利⽤を想定。) 審査内容により、融資の⼀部または全部をご利⽤いただけない場合がございます。予めご了承ください。
間取り図
41F
東京グラウンド編集部の住まいレビュー
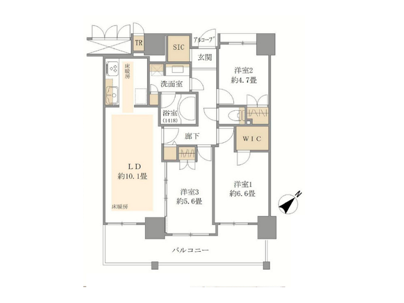
東京メトロ有楽町線「辰巳」駅から徒歩8分、都心の喧騒を忘れるような穏やかな空気が流れるベイエリアに佇むタワーマンション『アップルタワー東京キャナルコート』。今回ご紹介するのは、その41階、地上約150mほどに位置する贅沢な1室です✧お部屋は、専有面積130㎡超という広さの3LDK。玄関を抜けると、まず目に飛び込むのが約26.4帖のリビングダイニング。晴れた日には大きな窓から東京湾を一望できる開放的な眺望が広がります。自然光がたっぷりと差し込み、時間帯によって表情を変える空のグラデーションが、日々の暮らしに彩りをプラスします。キッチンや各洋室もゆとりある設計で、家族それぞれの時間も大切にできるよう工夫。特に約10.1帖の主寝室は、大容量の収納も充実しており、洋服はもちろんのこと他にもシーズンものの用品などを大切に保管できます。マンション内には天然温泉のスパ施設やゲストルーム、ラウンジなどの共用施設も整っており、まるで高級ホテルのような住環境。外観やエントランスも清潔感と重厚感があり、住まうこと自体が誇らしく感じられそうです♩空と水辺が共存するキャナルエリアで、ゆとりある日常を手に入れてみませんか? ライター:risako【25J22】
この物件の毎月の支払いイメージを
試算してみませんか?
頭金や返済年数などを入力するだけで毎月の合計支払額をシミュレーションできます。
23,800
毎月の支払い予想シミュレーション
※試算結果はあくまで目安であり、実際の借り入れを保証するものではありません。
※物件によっては上記以外の別途費用が発生する場合もございます。詳しくはお問い合わせくださいませ。
住戸概要
間取り図
なら
仲介手数料 無料!
追加費用も一切なし
マンションは、“どこから買うか”で
支払う費用が変わります
仕組みを詳しく見る
月々の支払い目安を見る
※ローンの⽬安は、頭⾦ゼロ、借⼊年数35年、都市銀⾏・変動⾦利0.595%(優遇利⽤を想定。) 審査内容により、融資の⼀部または全部をご利⽤いただけない場合がございます。予めご了承ください。
間取り図
1610号室
この物件の毎月の支払いイメージを
試算してみませんか?
頭金や返済年数などを入力するだけで毎月の合計支払額をシミュレーションできます。
11,680
毎月の支払い予想シミュレーション
※試算結果はあくまで目安であり、実際の借り入れを保証するものではありません。
※物件によっては上記以外の別途費用が発生する場合もございます。詳しくはお問い合わせくださいませ。
住戸概要
こちらのお部屋は販売終了いたしました
過去に販売したお部屋の一部をご紹介。
住まい探しやリノベーションのヒントにご覧ください。
東京グラウンド編集部の住まいレビュー
『アップルタワー東京キャナルコート』は、辰巳駅と東雲駅の2駅が利用可能。東雲駅から利用できるりんかい線には、埼京線に直通している便があります。新宿駅や渋谷駅など東京の主要駅に1本でアクセスできるのは便利ですよね。マンションを目指して「東雲キャナルコート」を進みましょう。高層マンションがいくつも建っている再開発地区です。近くに広がる「東雲水辺公園」は、春には桜が咲いてとっても綺麗。運河沿いの遊歩道からは東京スカイツリーも一望できます。また少し歩けば24時間営業の大型スーパー「イオン 東雲店」もあり、生活しやすそうな住環境だと感じました。アパホテルで有名なアパグループが手掛ける『アップルタワー東京キャナルコート』。内装もホテルのような高級感あるデザインでした。2023年7月に大規模修繕工事が行われたばかりなのもポイントです。共用施設も豊富なので、マンションにいながら充実した時間を過ごせますよ。エレベーターで35階へ向かい、お目当てのお部屋へ。全ての居室に窓があり、とっても開放的でした。キッチンやサニタリールーム、トイレなど、水回りの機能性の高さも魅力的。何より、天然温泉に毎日入れるなんて嬉しいですよね。こちらのお部屋で大切なご家族と新しい暮らしを送ってみませんか。 ライター:mii【25B08】
こちらのお部屋は販売終了いたしました
過去に販売したお部屋の一部をご紹介。
住まい探しやリノベーションのヒントにご覧ください。
[MY秘湯へようこそ] アップルタワー東京キャナルコート
辰巳駅
徒歩8分

『アップルタワー東京キャナルコート』はアパホテルで有名なアパグループが手掛けた、地下2階付き地上44階建て、総戸数440戸の大規模タワーマンションです♬都内では珍しい全住戸天然温泉付き。ホテルのような贅沢な日々を過ごせます。

植栽に囲まれたアプローチを進みましょう。車寄せがあり、雨の日でも快適にお車に乗り込むことができます。エントランスにはオートロックや防犯カメラを完備。その上24時間有人管理なので居住者が安心して暮らせる設備が整っていると言えますね。

天井が高く開放感のあるエントランスロビー。上質なソファやマッサージチェアなどが置いてあるほか、コンシェルジュもいる徹底したサービス体制が自慢です。マンション内にはライブラリーコーナーやウッドデッキラウンジ、シアタールームやパーティルームまであるので多様なシーンに対応できますよ◎

ダブルオートロックの先に広がるエレベーターホールには、5基のエレベーターがありました。階やペットがいるかどうかで利用できるエレベーターが決まっているので混雑緩和が期待できるはず。居住フロアは開放的な外廊下仕様。各フロアにゴミ置き場があり、スムーズにゴミ出しできるのも特徴。
その他の共用部・設備写真
物件概要
設備・特徴
エレベーター オートロック 宅配BOX トランクルーム 防犯カメラ 24時間有人管理各階ダストステーション温泉施設キッズルームパーティルームコンシェルジュサービスシアタールームサウンドルームライブラリーコーナーフロンティアガーデンゲストルームスカイラウンジトリミングルーム.洗車コーナー屋上庭園 新耐震基準適合 大規模修繕履歴有
東京メトロ有楽町線が乗り入れる辰巳駅。もんじゃで有名な月島やショッピングを楽しめる銀座一丁目、池袋まで乗り換え無しで行けるアクセスの良さが魅力です♪辰巳運河にかかる「辰巳桜橋」から望む景色はとっても開放的。海と空を一望できますよ。橋を渡った先にある再開発地区「東雲キャナルコート」にお目当てのマンションが。周囲にはコンビニやドラッグストアがあり、お買い物がしやすそう…!
アクセス
東京メトロ有楽町線 『辰巳』駅 徒歩8分
りんかい線 『東雲』駅 徒歩12分
買い物
学区
※掲載している学区情報は、記事制作時点での参考情報です。
区域によっては学校の指定が異なる場合もありますので、詳細は必ずご確認ください。
その他