間取り図
価格改定
こちらの物件の仲介手数料は
個別にご案内いたします。
詳細をご希望の方は
お気軽にご相談ください。
お問い合わせはこちら
月々の支払い目安を見る
※ローンの⽬安は、頭⾦ゼロ、借⼊年数35年、都市銀⾏・変動⾦利0.595%(優遇利⽤を想定。) 審査内容により、融資の⼀部または全部をご利⽤いただけない場合がございます。予めご了承ください。
間取り図
103号室
編集部が実際に現地を訪れ、見たもの・感じたことをレポート。
図面だけでは伝わらない"リアルな空気感"をお届けします。
更新日:2026/05/14
更新日:2026/05/14
心安らぐ住まい

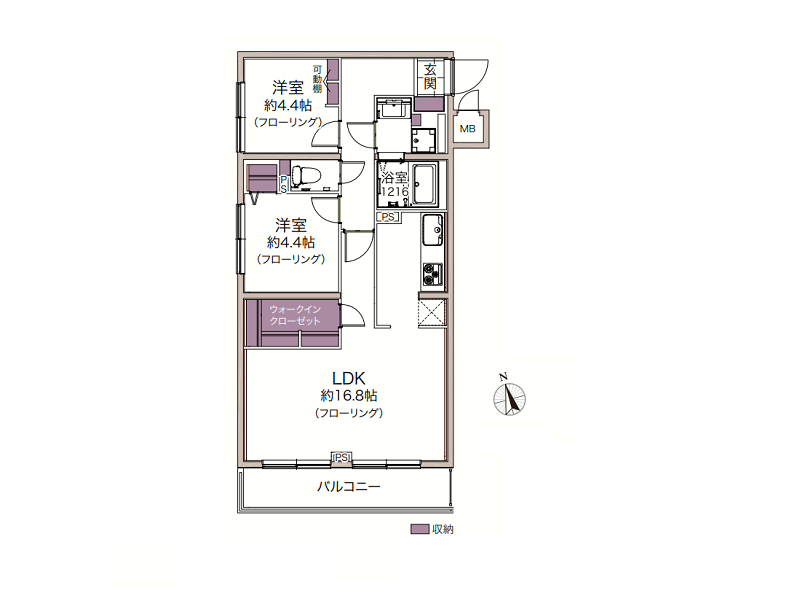
グレーが優しい雰囲気を醸し出す、ナチュラルテイストの2LDKをご紹介します。1階に位置する角部屋なので、足音や生活音の心配が少なくのびのび暮らせます。主採光が南向きで、日当たりも良好です。

メインルームはおよそ16.8帖の広々空間。リビングダイニングが広く、家具の配置がしやすいはず。大きな窓から明るい光が射し込む、とっても居心地の良いお部屋。コーブ照明など間接照明が多用され、奥行きをもたらしています。

メインルームの壁面にはグレーのウッドパネルが使用され、シンプルかつモダンなアクセントになっています。写真のようにアートやグリーンを飾っても素敵ですし、大きな液晶テレビも良く映えそうです。

私が素敵だと思ったのはこちらのウォークインクローゼット。洋室ではなく、メインルーム内に設けられています。洋室のクローゼットは少しコンパクトなので、オフシーズンのお洋服はこちらで保管しても良いかも。扇風機や加湿器といった季節家電の保管場所にも最適。

白×グレーのデザインが素敵なシステムキッチン。新規交換されているので、気持ちよくお料理できますよ。大きなキッチンシンクや食洗機、3口のガスコンロなどを備えていて、毎日の自炊がもっと楽しくなりそうです。収納豊富なのも嬉しいポイント。

パウダールームは玄関廊下を進んだ左手に。ご帰宅後すぐに手を洗える便利な配置です。3面鏡の洗面化粧台は、ミラーキャビネットや台下の収納に加え、右手にも可動棚が。リネン類をしまっておけば、濡れた手でもさっと取り出せます。

洋室は2へやともおよそ4.4帖とコンパクト。ローベッドやデスク付きのロフトベッドなどを使えば空間を有効的に活用できますね。2部屋とも窓があり通気性はバッチリ。こちらのお部屋にはオープンクローゼットをご用意。どこに何があるか一目でわかり、身支度楽々です。

南向きのバルコニーはマンション前の通りに面しています。少し高い場所に造られているので通行人よりは視線が高いものの、レースカーテンなどを使った方が安心して暮らせそう。バスルームの浴室換気乾燥機を使って部屋干しするのもオススメです。
その他の室内・設備写真
▲ このお部屋の雰囲気がお好みの方へ
東京グラウンド編集部の住まいレビュー
アニメなどサブカルの聖地として知られる中野駅。近年特に南口の再開発工事が進んでいて、数年前とは雰囲気が全く違います。これからどんどん開発が進むので、今お引越しをしておくのがオススメのエリアと言えます。
『藤和中野コープ』は昭和築ながら、しっかりと手入れされていて築年数は気になりません。辺りは車や人もほとんど通らないので、のんびりリラックスした毎日を過ごせそう。中野駅から10分程歩いただけでこんな閑静なエリアが広がっているとは正直驚きでした。
今回はパートナーとの新生活にオススメな2LDKをご紹介しました。1階の廊下の端に位置しており、玄関前の行き来する人が限られるのでプライベート性の高い暮らしを送れます。洋室の広さが全く一緒なので、どちらを使うか選ぶのに困らなそう。洋室はややコンパクトですが、その分リビングダイニングキッチンが広めに作られており、家族の時間を存分に満喫できます。利便性と暮らしやすさの両方が叶う住まいです。 ライター:mii【26E14】
この物件の毎月の支払いイメージを
試算してみませんか?
頭金や返済年数などを入力するだけで毎月の合計支払額をシミュレーションできます。
7,480
毎月の支払い予想シミュレーション
※試算結果はあくまで目安であり、実際の借り入れを保証するものではありません。
※物件によっては上記以外の別途費用が発生する場合もございます。詳しくはお問い合わせくださいませ。
住戸概要
[都心と静けさを手に入れる] 藤和中野コープ
中野駅
徒歩9分

横に長い4階建ての低層レジデンス、『藤和中野コープ』。1985年7月築で強い地震に耐えられる新耐震基準に適合しています。2027年春頃に大規模修繕工事を検討しているよう。長い目で見ても安心して暮らせますね!

マンション名が掲げられた大きな門のあるアプローチ。かなり奥まで続いていることがわかります。通りと距離があることで、プライベート性を高める効果がありますよ。植栽がたくさん植えられていて、素敵な雰囲気です。

通りからエントランスの様子がわからないように奥まった構造になっていました。管理人室とオートロックを完備。関係者以外の立ち入りを防ぎます。荷物の受け取りに便利な宅配ボックスもご用意。

オートロックの先には、広々とした中庭が。屋根付きの駐輪場が設けられていました。ちなみに駐車場はマンションの裏手にあるようです。エレベーターはないので、階段でお部屋に向かいましょう。
その他の共用部・設備写真
物件概要
設備・特徴
オートロック 宅配BOX 防犯カメラ 新耐震基準適合
JR中央線・総武線・東京メトロ東西線の3路線が使え、新宿駅にも近いため交通利便性に大変優れた中野駅。近年は駅周辺の再開発工事が進み、近代的な建物も多くなってきました。北口周辺には「中野サンモール」という商店街を中心にたくさんのお店が。飲み屋街もありますが、少し歩くだけで閑静な住宅街に変化します。途中見つけた「打越天神北野神社」は木々が多く、敷地内に公園も有しているので人々の憩いの場所になっていました。
アクセス
JR中央線/総武線/東京メトロ東西線 『中野』駅 徒歩9分
JR総武線/都営大江戸線 『東中野』駅 徒歩11分
買い物
学区
※掲載している学区情報は、記事制作時点での参考情報です。
区域によっては学校の指定が異なる場合もありますので、詳細は必ずご確認ください。
その他
こちらの物件は弊社運営の別サイトでもご紹介中♪