購入・売却・リノベ・無料相談はこちら 公式LINEで気軽に相談

フォルム内藤町

URLとタイトルをコピーしました!

【仲介手数料最大無料】新宿区内藤町1-2/新宿御苑前駅徒歩6分/駐車場有/ペット飼育可/新耐震基準適合/定休日なしで内見予約・無料相談受付中です!
この物件の売却相談はこちら

仲介手数料最大無料でご紹介

東京グラウンド掲載物件以外も
仲介手数料が最大無料!

仲介物件の多くは『レインズ』という不動産会社だけが利用できる情報サイトに掲載されています。レインズはどの不動産会社も同じ情報にアクセスできる仕組みのため、会社によって紹介できる物件が限定されるということはほとんどありません。
仲介手数料最大無料でご紹介 当サイトに掲載されていない物件であっても、気になる物件があれば、仲介手数料無料または割引(規定上限額の30〜50%)でご案内可能です。そのため、物件の条件にかかわらず、常にお客さまのご負担を最小限に抑えたご提案を行っています。

●ご購入以外の当社サービスについても、すべて無料相談を承っております

ご希望のサービスにチェックを入れて、お問い合わせフォームへお進みください。

無料相談する

成約済み
販売終了物件

こちらのお部屋は販売終了いたしました

編集部の
部屋レポ

過去に販売したお部屋の一部をご紹介。
住まい探しやリノベーションのヒントにご覧ください。

▲ このお部屋の雰囲気がお好みの方へ

東京グラウンド編集部の住まいレビュー

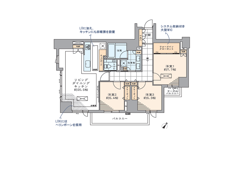
『新宿御苑前』駅は数多くの飲食店が軒を連ねる激戦区。多種多様なお店が揃っているので、皆様の舌に叶うお店もきっと見つかることでしょう♪そんな街に佇む『フォルム内藤町』は、タワーマンションのような設備を揃えた人気マンション。防犯対策、耐震性能と合わせて、家族でも過ごしやすいマンションと言えるでしょう♦お部屋は、4階部分に位置する1LDK。高級感漂うお部屋で、家族やペットと一緒に快適な新生活を始めてみてはいかがでしょうか★ ライター:石原【21H30】

建物と街のようす

[四季折々の自然を堪能] フォルム内藤町

新宿区内藤町1-2MAP

新宿御苑前駅

徒歩6分

外観・共用部

その他の共用部・設備写真

物件概要

物件名
フォルム内藤町
所在地
新宿区内藤町1-2
築年月
平成21年/2009年1月
構造
鉄筋コンクリート造
階数
地下2階付 14階建
土地
所有権
総戸数
60戸
分譲会社
株式会社コスモスイニシア
管理会社
大和ライフネクスト株式会社
駐車場
有 (33,000円~40,000円/月 ※1)
駐輪場
有 (100円~1,000円/月)
バイク置き場
有 (3,000円/月)
ペット飼育
可 (体長50㎝程度までの犬猫2匹迄 ※細則有)
事務所使用
不可 (在宅で業務を行う職業で主に居住使用の場合は可)
備考・その他
※1 機械式駐車場サイズ
全長:5,300㎜・全幅:2,050㎜・全高:2,000㎜・質量:2,300㎏・最低地上高さ:130㎜以下

設備・特徴

エレベーター オートロック 宅配BOX 防犯カメラ コンシェルジュサービスラウンジスペースオーナー専用スペース24時間監視システム 新耐震基準適合 大規模修繕履歴有

アクセス・周辺環境

新宿御苑前駅新宿御苑前駅
新宿御苑新宿御苑
COPACOPA
輝太郎居酒屋輝太郎居酒屋
COCOCHIYOCOCOCHIYO
DOUTORDOUTOR
花園公園花園公園
セブンイレブンセブンイレブン
まいばすけっとまいばすけっと
新宿御苑前駅新宿御苑前駅
新宿御苑新宿御苑
COPACOPA
輝太郎居酒屋輝太郎居酒屋
COCOCHIYOCOCOCHIYO
DOUTORDOUTOR
花園公園花園公園
セブンイレブンセブンイレブン
まいばすけっとまいばすけっと

新宿御苑の緑をすぐそばに感じられる新宿御苑前駅。都心にありながらも穏やかな空気が流れ、自然と調和した暮らしが叶うエリアです。丸ノ内線を利用すれば新宿三丁目までわずか1駅。銀座や東京駅方面へもダイレクトにアクセスでき、通勤やお出かけも快適です✧駅周辺にはカフェやベーカリー、こだわりの飲食店が点在し、暮らしの中にちょっとした楽しみが散りばめられたロケーション。休日は御苑で散歩をしたり、四季の移ろいを感じながら過ごすことも…♥利便性と自然の潤い、どちらも手に入れたい方にぴったりの住環境です。

アクセス

東京メトロ丸ノ内線 『新宿御苑前』駅 徒歩6分

東京メトロ丸ノ内線 『四谷三丁目』駅 徒歩7分

JR総武線 『千駄ヶ谷』駅 徒歩13分

東京メトロ丸ノ内線/副都心線/都営新宿線 『新宿三丁目』駅 徒歩13分

都営大江戸線 『国立競技場』駅 徒歩13分

都営新宿線 『曙橋』駅 徒歩13分

買い物

まいばすけっと 新宿外苑西通り店
徒歩4分(210m)
セブン-イレブン 新宿御苑前本通り店
徒歩5分(300m)
スギ薬局 新宿御苑店
徒歩12分(750m)

学区

四谷第六小学校
徒歩10分(750m)
四谷中学校
徒歩21分(1.5km)

※掲載している学区情報は、記事制作時点での参考情報です。
区域によっては学校の指定が異なる場合もありますので、詳細は必ずご確認ください。

その他

新宿御苑
徒歩6分(300m)
慶應義塾大学病院
徒歩13分
こんなお部屋に住みたい方へ リフォーム:リノベーション

不動産にまつわるご相談・ご質問・資料請求など
まずはお気軽にお問い合わせくださいませ。