間取り図
なら
仲介手数料 30% OFF
マンションは、“どこから買うか”で
支払う費用が変わります
仕組みを詳しく見る
月々の支払い目安を見る
※ローンの⽬安は、頭⾦ゼロ、借⼊年数35年、都市銀⾏・変動⾦利0.595%(優遇利⽤を想定。) 審査内容により、融資の⼀部または全部をご利⽤いただけない場合がございます。予めご了承ください。
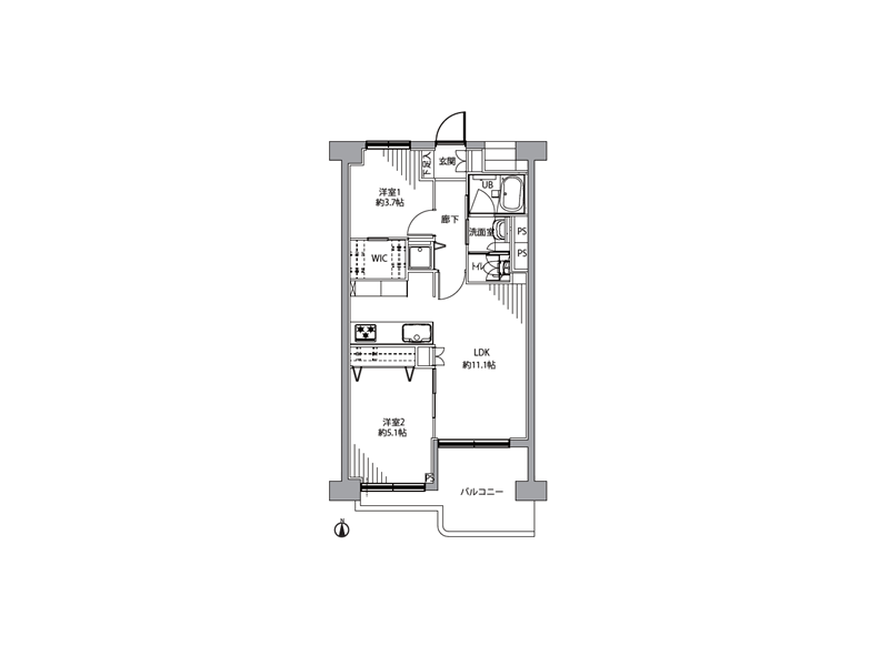
間取り図
11F
東京グラウンド編集部の住まいレビュー
高田馬場駅から徒歩3分。JR山手線など3路線が使える利便性の高いロケーションでありながら、どこか落ち着いた空気が流れる街並みが印象的です。学生街らしい活気はありつつも日々の暮らしに寄り添うリーズナブルなお店が点在し、生活のしやすさを感じられるエリア✿そんな立地に佇むのが、総戸数181戸のビッグコミュニティ、『トキワパレス』です。
お部屋は11階部分、専有面積54.35㎡の3LDK。2021年にフルリノベーションが施された室内は、すぐに暮らし始めることも好みに合わせてアレンジを加えることもできるゆとりある余白が感じられます。南向きのメインルームは明るい光に満たされ、バルコニーへと自然に視線が伸びる開放感が魅力。L型キッチンは作業動線が短く、毎日の料理時間を効率よく心地よく楽しめますよ!水回りは洗面・バス・トイレがコンパクトにまとまり、日々の生活リズムを整えやすい点も嬉しいポイント。洋室は廊下側に独立して配置され、プライベート空間もしっかりと確保◎
和室は南向きのやわらかな光が差し込む、静かで心地よいプライベートゾーン。畳のやさしい質感が室内に穏やかな空気感を生み出し、インテリア次第で表情を変えられる自由度の高さも魅力です。琉球畳や木目調の家具を合わせれば、現代的なインテリアとも調和する和モダンな空間としても♡
家族構成やライフスタイルの変化に応じて子ども部屋やリラックススペースとしても柔軟に活用でき、長く暮らしながら空間の使い方を育てていける住まいですよ♩ ライター:mao【26C05】
この物件の毎月の支払いイメージを
試算してみませんか?
頭金や返済年数などを入力するだけで毎月の合計支払額をシミュレーションできます。
4,808
毎月の支払い予想シミュレーション
※試算結果はあくまで目安であり、実際の借り入れを保証するものではありません。
※物件によっては上記以外の別途費用が発生する場合もございます。詳しくはお問い合わせくださいませ。
住戸概要
間取り図
なら
仲介手数料 30% OFF
マンションは、“どこから買うか”で
支払う費用が変わります
仕組みを詳しく見る
月々の支払い目安を見る
※ローンの⽬安は、頭⾦ゼロ、借⼊年数35年、都市銀⾏・変動⾦利0.595%(優遇利⽤を想定。) 審査内容により、融資の⼀部または全部をご利⽤いただけない場合がございます。予めご了承ください。
間取り図
9F
東京グラウンド編集部の住まいレビュー
JR山手線・高田馬場駅から徒歩わずか3分、人々が行き交う賑わいを横目に館内に1歩足を踏み入れると、落ち着きある生活空間が広がる『トキワパレス』。総戸数181戸のビッグコミュニティならではの安定感と手入れの行き届いた共用部が印象的で、エントランスロビーは明るく開放的。毎日の帰宅が少し誇らしく感じられる雰囲気です♪ご紹介するお部屋は9階部分の角住戸。間取りは専有面積54.3㎡の3LDKで、廊下を中心に洋室×2・和室×1・LDKが配置された、生活動線の良い使い勝手の高さが魅力です。LDKは南東向きのバルコニーに面しており、明るい自然光が差し込む開放的な空間。バルコニーからは遠くまで視界が抜け、都会にいながらも伸びやかな眺望を楽しめそうです☀和室は4.5帖の程よい広さで、客間にはもちろん小さなお子さまのプレイルームや家事スペースとしても重宝します。2つの洋室はいずれも独立性の高い配置で、仕事部屋や寝室などプライベート空間をしっかり確保可能。家族構成やライフスタイルに合わせて柔軟に使える間取りです。駅近で利便性の高い立地に加え、角部屋ならではの通風と明るさを享受できるこの住まい。日々の暮らしを快適にしてくれるポイントが揃ったバランスの良い一室です。 ライター:hana【25K28】
この物件の毎月の支払いイメージを
試算してみませんか?
頭金や返済年数などを入力するだけで毎月の合計支払額をシミュレーションできます。
5,130
毎月の支払い予想シミュレーション
※試算結果はあくまで目安であり、実際の借り入れを保証するものではありません。
※物件によっては上記以外の別途費用が発生する場合もございます。詳しくはお問い合わせくださいませ。
住戸概要
間取り図
こちらの物件の仲介手数料は
個別にご案内いたします。
詳細をご希望の方は
お気軽にご相談ください。
お問い合わせはこちら
月々の支払い目安を見る
※ローンの⽬安は、頭⾦ゼロ、借⼊年数35年、都市銀⾏・変動⾦利0.595%(優遇利⽤を想定。) 審査内容により、融資の⼀部または全部をご利⽤いただけない場合がございます。予めご了承ください。
間取り図
1210号室
この物件の毎月の支払いイメージを
試算してみませんか?
頭金や返済年数などを入力するだけで毎月の合計支払額をシミュレーションできます。
5,780
毎月の支払い予想シミュレーション
※試算結果はあくまで目安であり、実際の借り入れを保証するものではありません。
※物件によっては上記以外の別途費用が発生する場合もございます。詳しくはお問い合わせくださいませ。
住戸概要
こちらのお部屋は販売終了いたしました
過去に販売したお部屋の一部をご紹介。
住まい探しやリノベーションのヒントにご覧ください。
東京グラウンド編集部の住まいレビュー
今回は高田馬場駅からわずか徒歩3分の好立地マンション『トキワパレス』を訪れました。ご紹介するのは上層階の9階部分に位置するお部屋、室内の新規リノベーションが施された2LDK。デザイン性の溢れたお洒落な内装にリニューアルされました♡南・西・北向きの3方角住戸につき、陽当たりと風通しが抜群☀また、2面バルコニーの贅沢な造りのお部屋ですよ。ぜひ写真では伝えきれない魅力を、現地にてご確認ください♪ ライター:hana【25F18】
[神田川沿いをお散歩] トキワパレス
高田馬場駅
徒歩3分

神田川沿いに佇む、総戸数181戸のビックコミュニティ『トキワパレス』。周辺に高い建物がないので眺望も期待できそうですね♪

広々としたエントランスアプローチは掃除が行き届き、管理体制の良さが伺えます。駐車場、駐輪場ともに雨が当たりにくい位置に設けられているため安心ですよ。

エントランスには防犯カメラがあり、安全性に期待ができそうです。更に、便利な宅配ボックスを発見!不在時の荷物の受け取りもスムーズにできます。

隅々まで綺麗に整えられたエントランスロビーには、管理人室がありました。
その他の共用部・設備写真
物件概要
設備・特徴
エレベーター 宅配BOX 防犯カメラ 24時間ゴミ出し可 大規模修繕履歴有 長期修繕計画有
高田馬場駅は、JR山手線・東京メトロ東西線・西武新宿線の3路線が利用でき、都心各地へのアクセスが非常にスムーズです。新宿や池袋へは数分で到着でき、通勤や通学に便利なだけでなく、休日のお出かけ先も広がります。駅周辺にはスーパーや飲食店が豊富に揃い、外食も自炊も楽しめる住環境が整っています。また、学生の街としての顔を持つため、活気がありながらもリーズナブルなお店が多く、日常生活において経済的なメリットも大きいのが特徴です。少し歩けば神田川沿いの散策路など自然を感じられる場所もあり、都会の喧騒から離れてリフレッシュできるのも嬉しいポイント♪
アクセス
JR山手線/西武新宿線/東京メトロ東西線 『高田馬場』駅 徒歩3分
西武新宿線 『下落合』駅 徒歩12分
買い物
学区
※掲載している学区情報は、記事制作時点での参考情報です。
区域によっては学校の指定が異なる場合もありますので、詳細は必ずご確認ください。
その他
こちらの物件は弊社運営の別サイトでもご紹介中♪