間取り図
なら
仲介手数料 50% OFF
マンションは、“どこから買うか”で
支払う費用が変わります
仕組みを詳しく見る
月々の支払い目安を見る
※ローンの⽬安は、頭⾦ゼロ、借⼊年数35年、都市銀⾏・変動⾦利0.595%(優遇利⽤を想定。) 審査内容により、融資の⼀部または全部をご利⽤いただけない場合がございます。予めご了承ください。
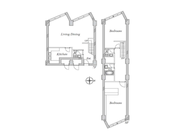
間取り図
7-8F
東京グラウンド編集部の住まいレビュー
原宿駅、明治神宮前駅の目の前。日本の流行を牽引し続ける原宿エリアの中心に佇む『コープオリンピア』は、街の賑わいを日常に取り込みながらも長い年月を経てなお存在感を放つマンションです。周囲には話題のショップやカフェが立ち並び、一方で少し足を伸ばせば明治神宮の豊かな緑にも触れられる、都市と自然が共存するロケーション✿実際に歩くと、人の流れと落ち着きが絶妙な距離感で共存していることを実感します。ご紹介するのは7・8階部分を使用した2LDKのメゾネット住戸。専有面積は7階部分56.21㎡・8階部分63.32㎡の合計119.53㎡と、都心では貴重なゆとりある広さです。7階にはリビングダイニングとキッチンを配し、生活の中心を一体感のある空間に。窓の多い形状からは採光も期待でき、家族が自然と集まる場としての役割をしっかり果たしてくれそうです。8階にはプライベート性の高い寝室を配置。上下階で生活と休息を分けられるため、ご家族での暮らしにもメリハリが生まれます。立地の希少性とメゾネットならではの空間構成を併せ持ち、将来の資産価値にも期待が持てる一室。原宿という街を日常にしながら、ゆったりとした住空間を求める方にぜひご覧いただきたい物件です。 ライター:hana【26A21】
この物件の毎月の支払いイメージを
試算してみませんか?
頭金や返済年数などを入力するだけで毎月の合計支払額をシミュレーションできます。
38,800
毎月の支払い予想シミュレーション
※試算結果はあくまで目安であり、実際の借り入れを保証するものではありません。
※物件によっては上記以外の別途費用が発生する場合もございます。詳しくはお問い合わせくださいませ。
住戸概要
[流行の発信地] コープオリンピア
原宿駅
徒歩1分

原宿駅・明治神宮前駅からわずか徒歩1分。表参道の象徴とも言えるケヤキ並木沿いに佇む、希少性の高い立地を誇るマンション『コープオリンピア』。都心でも限られたロケーションであり、将来の資産価値を見据えた選択としても魅力的。1階部分には複数のテナントが入店しており、街に開かれた存在としての価値も感じられます。

1965年に建てられた、総戸数171戸の大規模マンション。鉄骨鉄筋コンクリート造ならではの安定感と存在感があり、昭和築であることを感じさせない堂々とした姿が目を引きます。原宿を訪れたことがある方なら1度は目にしたことがあるであろう、街のランドマーク的存在。

賑わいある原宿エリアにありながら、住戸者専用のエントランスを設けることで落ち着いた住環境を実現。防犯カメラも設置されており、日々の暮らしを見えないところで支えてくれます。人通りの多い立地だからこそ、こうした配慮が嬉しいポイント。

エントランスホールは無駄を省いたシンプルなデザインながら、広さと開放感をしっかりと確保。多数の照明が設置されており、昼夜を問わず明るい空間が保たれています。住まう方や来訪者を気持ちよく迎え入れる、品のある共用部ですね。
その他の共用部・設備写真
物件概要
設備・特徴
エレベーター 防犯カメラ コンシェルジュ24時間ゴミ出し可
テナント
Zoff飲食店薬局
JR山手線・原宿駅をはじめ東京メトロ千代田線・副都心線が利用できる明治神宮前駅も身近に揃い、都内主要エリアへのアクセスは軽快そのもの。通勤や通学はもちろん、休日の外出も行き先に応じて路線を選べる利便性が魅力です。駅周辺には表参道や竹下通りを中心に多彩なショップや飲食店が集まり、日常の買い物からトレンドを楽しむ時間まで幅広く対応。一方で明治神宮の豊かな緑や落ち着いた住宅街も近く、賑わいと穏やかさが共存する住環境が整っています。都市生活の刺激を享受しながら、心を休める場所も身近にある原宿エリアならではのバランスの取れた暮らしが叶います✿
アクセス
JR山手線 『原宿』駅 徒歩1分
東京メトロ副都心線/千代田線 『明治神宮前』駅 徒歩1分
買い物
学区
※掲載している学区情報は、記事制作時点での参考情報です。
区域によっては学校の指定が異なる場合もありますので、詳細は必ずご確認ください。
その他