間取り図
価格改定
なら
仲介手数料 50% OFF
マンションは、“どこから買うか”で
支払う費用が変わります
仕組みを詳しく見る
月々の支払い目安を見る
※ローンの⽬安は、頭⾦ゼロ、借⼊年数35年、都市銀⾏・変動⾦利0.595%(優遇利⽤を想定。) 審査内容により、融資の⼀部または全部をご利⽤いただけない場合がございます。予めご了承ください。
間取り図
7F
編集部が実際に現地を訪れ、見たもの・感じたことをレポート。
図面だけでは伝わらない"リアルな空気感"をお届けします。
更新日:2026/04/20
更新日:2026/04/20
都会的ミニマル空間

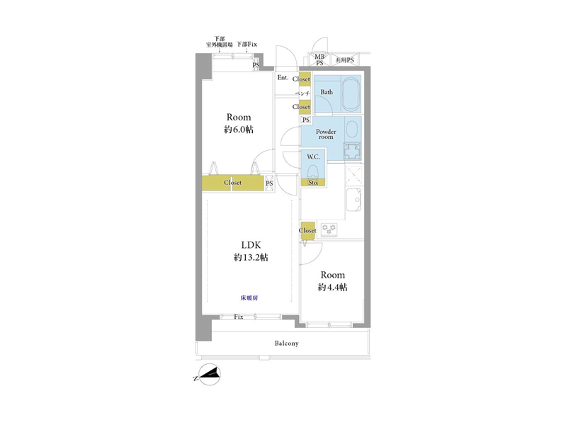
2026年1月にリノベーションを終えた、7階部分の1LDKをご紹介。専有面積42.27㎡の空間は、シングルやDINKSに心地よい広さです。新しく整えられた室内は、シンプルながらも暮らしのイメージを膨らませてくれる雰囲気。さらにペット飼育が可能なのも嬉しいポイント。お気に入りの家具と大切なペットと共に自分らしい住まいを作っていけますよ✧

約13.8帖のリビングダイニングキッチンはホワイトを基調にグレーのアクセントウォールを取り入れたスタイリッシュな空間。リビングとダイニングを分けて使いやすい間取りで、家具の配置もしやすそう♪ソファやラグを置いてリラックススペースをつくったりダイニングテーブルを置いて食事を楽しんだりと、暮らし方に合わせて自由にレイアウトできますよ。

キッチンは壁付けタイプで、リビングダイニングから少し奥まった位置に。生活空間に匂いや油煙が広がりにくく快適に料理をお楽しみいただけます。グリル付き3口コンロと浄水器が備わり、調理環境も充実。平日は手早く、休日はゆっくりと料理を楽しむなど、日々の食卓づくりがもっと楽しくなるのでは♥

洗面化粧台は、見た目にもお洒落なワイドカウンタータイプ。背面にはグレーのアクセントウォールが施され、落ち着きのある洗練された空間に仕上がっています。カウンター左側にはゆとりのスペースがあり、スキンケア用品やメイク道具を広げながらゆっくり身支度ができそう✦

バスルームはホワイトを基調とした、清潔感のある空間。小窓が付いているため、換気がしやすく心地よいバスタイムを過ごせそうです。追い焚き機能や浴室乾燥機も備わり、設備面も充実。ゆっくり半身浴を楽しんだり、1日の疲れを癒すリラックスタイムにぴったりですよ♩

廊下側に独立する洋室は、外部からの視線も気になりにくいプライベート感のある空間。約5.0帖の広さがあり、シングルベッドを設置してもゆとりのあるレイアウトが可能です。お気に入りの照明やファブリックを取り入れて、落ち着いた寝室空間をつくるのも良さそうですね✿

洋室にはクローゼットに加えて可動棚も備わっています。可動棚にはお気に入りの本や小物をディスプレイ感覚で並べて、インテリアとして楽しむのも◎反対に、見せたくない衣類や日用品はクローゼットへすっきり収納できます。見せる収納と隠す収納を上手に使い分けると空間をすっきりと保つことができますよ。

ホワイトと木目でまとめられた玄関は、温かみを感じるナチュラルな空間。トールサイズのシューズボックスが設けられており、1人暮らしなら靴をゆったり収納できる容量があります。空いたスペースには防災グッズや日用品のストックをしまっておくのもおすすめ。
その他の室内・設備写真
▲ このお部屋の雰囲気がお好みの方へ
東京グラウンド編集部の住まいレビュー
京王井の頭線・神泉駅から歩いてわずか2分。駅周辺には飲食店やカフェが点在し、少し足を延ばせば渋谷の賑わいもすぐそこに。都心ならではの利便性を感じながらも、一本通りを入ると落ち着いた空気が流れており、日常の暮らしにも心地よく寄り添ってくれるエリアです。
そんな立地に佇むのが『ライオンズマンション渋谷道玄坂』。地上14階建てのマンションで、大規模修繕工事が実施済み、さらに長期修繕計画も立てられているなど管理体制の良さが伺えます◎
今回ご紹介するのは、2026年1月にリノベーションを終えた7階部分の1LDK。専有面積は42.27㎡で、シングルやDINKSにちょうど良い広さです。白を基調にグレーのアクセントを効かせた落ち着きある約13.8帖のリビングダイニングキッチン。ソファでくつろぐリビングスペースと、食事を楽しむダイニングスペースを自然に分けて使える間取りで、家具の配置次第で空間の表情も変わりそう♩
壁付けタイプのキッチンはリビングから少し奥まった位置にあり、生活感が出にくいのも嬉しいポイント。グリル付き3口コンロや浄水器が備わり、料理のレパートリーも広がりそうでした。廊下側に独立した約5.0帖の洋室は静かな寝室にぴったり。シングルベッドを置いてもゆとりがあり、クローゼットと可動棚で収納力も充実しています。
水回りにはワイドカウンターの洗面化粧台を採用し、ゆったり身支度が可能。小窓付きのバスルームには追い焚き機能や浴室乾燥機が備わり、半身浴でゆっくりと1日の疲れを癒せそう。
渋谷を身近に感じながら、自分らしい暮らしをスタートしませんか✦
ライター:mao【26D20】
この物件の毎月の支払いイメージを
試算してみませんか?
頭金や返済年数などを入力するだけで毎月の合計支払額をシミュレーションできます。
8,898
毎月の支払い予想シミュレーション
※試算結果はあくまで目安であり、実際の借り入れを保証するものではありません。
※物件によっては上記以外の別途費用が発生する場合もございます。詳しくはお問い合わせくださいませ。
住戸概要
間取り図
価格改定
なら
仲介手数料 無料!
追加費用も一切なし
マンションは、“どこから買うか”で
支払う費用が変わります
仕組みを詳しく見る
月々の支払い目安を見る
※ローンの⽬安は、頭⾦ゼロ、借⼊年数35年、都市銀⾏・変動⾦利0.595%(優遇利⽤を想定。) 審査内容により、融資の⼀部または全部をご利⽤いただけない場合がございます。予めご了承ください。
間取り図
6F
編集部が実際に現地を訪れ、見たもの・感じたことをレポート。
図面だけでは伝わらない"リアルな空気感"をお届けします。
更新日:2026/04/20
更新日:2026/04/20
渋谷を庭に

2026年1月にリノベーションが完了した専有面積52.95㎡の2LDK。室内はすっきりと整えられ、心地よく新生活を始められる仕上がり✧ペットの飼育も可能で、犬または猫いずれか1匹までご相談いただけます。ご家族はもちろん、愛するペットと穏やかに暮らしたい方にもおすすめの一室ですよ。

メイン空間は約13.8帖のリビングダイニングキッチン。白をベースにまとめられた室内は清潔感があり、形の整ったレイアウトも好印象です。装飾のない壁面が余白を生み、空間づくりを楽しめそう。ダイニングとリビングを分けて使える点も魅力です。

扉は設けられていないものの、独立キッチンのような落ち着きあるレイアウト◎壁付けタイプのため空間を広く活用できます。3口コンロとグリルを備え、さらに食洗機付き。調理から片付けまで快適にこなせる仕様ですよ。

洋室は約6.0帖と約3.8帖の2部屋。約6.0帖の洋室は廊下側に独立し、落ち着いた主寝室にぴったりです。グレーのアクセントウォールが空間にさりげない表情を添え、クローゼットも備えて収納面も安心。メリハリのあるプライベート空間が整っていますね。

木目調の鏡面パネルが空間に温かみを添えるバスルーム。追い焚き機能付きでライフスタイルに合わせた入浴が可能です。浴室乾燥機も設置されており、日々の家事をしっかりサポートしてくれますよ。

洗面化粧台と洗濯機置き場、そしてバスルームを集約したパウダールーム。無駄のないレイアウトで使い勝手も良好です。鏡の一部がオープン棚になっており、お気に入りのアイテムをディスプレイ感覚で収納できできちゃいます♥

白を基調にまとめられたトイレは、明るく爽やかな印象。シンプルだからこそ清潔感が際立ち、居心地の良さを感じられる空間に仕上がっています。温水洗浄便座付きで、冬場も冷たさを感じにくく快適♩

西向きのバルコニーは6階部分に位置し、目の前を遮る建物がなく開放的。視界いっぱいに広がる青空が印象的で、思わず深呼吸したくなるような心地よさです。是非現地にてこの心地よさを体感してくださいね☀
その他の室内・設備写真
▲ このお部屋の雰囲気がお好みの方へ
東京グラウンド編集部の住まいレビュー
京王井の頭線神泉駅から徒歩2分、さらに渋谷駅も徒歩7分という利便性の高い立地地建つのが『ライオンズマンション渋谷道玄坂』。1999年5月築・地上14階建て総戸数99戸で街中にありながら穏やかに佇む存在です。
ご紹介したのは6階部分、2026年1月にリノベーションが完了した専有面積52.95㎡の2LDK。室内は白を基調に端正に整えられ、余計な装飾を削ぎ落とした軽やかな印象です。約13.8帖のLDKは形がきれいで、ダイニングとリビングを自然に分けて使えるレイアウト。家具配置のイメージも膨らみますね。
壁付けキッチンは扉こそありませんが、やや奥まった配置で独立感のある設計。3口コンロ・グリル・食洗機を備え、機能面も充実しています。木目調パネルのバスルームには追い焚き・浴室乾燥機を完備。洗面室は洗濯機置き場と一体で、ミラーの一部がオープン棚になった遊び心あるデザインに✧
ペットは犬または猫いずれか1匹まで相談可能なため、ペットと共に新生活をお考えの方は是非チェックしてくださいね♩ ライター:mao【26B12】
この物件の毎月の支払いイメージを
試算してみませんか?
頭金や返済年数などを入力するだけで毎月の合計支払額をシミュレーションできます。
11,980
毎月の支払い予想シミュレーション
※試算結果はあくまで目安であり、実際の借り入れを保証するものではありません。
※物件によっては上記以外の別途費用が発生する場合もございます。詳しくはお問い合わせくださいませ。
住戸概要
間取り図
こちらの物件の仲介手数料は
個別にご案内いたします。
詳細をご希望の方は
お気軽にご相談ください。
お問い合わせはこちら
月々の支払い目安を見る
※ローンの⽬安は、頭⾦ゼロ、借⼊年数35年、都市銀⾏・変動⾦利0.595%(優遇利⽤を想定。) 審査内容により、融資の⼀部または全部をご利⽤いただけない場合がございます。予めご了承ください。
間取り図
303号室
この物件の毎月の支払いイメージを
試算してみませんか?
頭金や返済年数などを入力するだけで毎月の合計支払額をシミュレーションできます。
13,499
毎月の支払い予想シミュレーション
※試算結果はあくまで目安であり、実際の借り入れを保証するものではありません。
※物件によっては上記以外の別途費用が発生する場合もございます。詳しくはお問い合わせくださいませ。
住戸概要
こちらのお部屋は販売終了いたしました
過去に販売したお部屋の一部をご紹介。
住まい探しやリノベーションのヒントにご覧ください。
[都心で叶うアクティブライフ] ライオンズマンション渋谷道玄坂
神泉駅
徒歩2分

トレンドの中心、渋谷を普段使いできるロケーションの『ライオンズマンション渋谷道玄坂』は地上14階建てのマンション✧大規模修繕工事実施済み、さらに長期修繕計画ありと管理体制良好です。

エントランスはオートロックを採用し、管理人室も設置。安心を重ねたセキュリティ体制が魅力のひとつです♥

ゆったりと腰を下ろせるエントランスホールは、住まう方の憩いの場。宅配ボックスも備わっており、不在時の荷物受け取りもスムーズです。

エレベーターは2基設置。モニターで内部の様子を確認できるため、防犯面にも配慮された仕様です。複数基利用できるため、混み合う時間帯も分散しやすく待ち時間のストレスが軽減されるのではないでしょうか。
その他の共用部・設備写真
物件概要
設備・特徴
エレベーター オートロック 宅配BOX 防犯カメラ 新耐震基準適合 長期修繕計画有
トレンドの最先端を走る渋谷を生活圏にしながら、神泉周辺は一歩入ると落ち着いた住宅街の表情を見せてくれるエリア。駅前にはコンビニや飲食店が揃い、日々の用事は身近で完結◎渋谷駅周辺の大型商業施設や映画館も気軽に利用でき、仕事帰りや休日の過ごし方もぐっと広がりますよ。京王井の頭線を使えば下北沢や吉祥寺方面へ、渋谷駅からはJR・東京メトロ各線で都内主要エリアへダイレクトアクセス。利便性と穏やかな住環境、そのどちらも享受できるロケーションです✧
アクセス
京王井の頭線 『神泉』駅 徒歩2分
JR山手線/埼京線/湘南新宿ライン/京王井の頭線/東急東横線/田園都市線/東京メトロ銀座線/半蔵門線/副都心線 『渋谷』駅 徒歩7分
買い物
学区
※掲載している学区情報は、記事制作時点での参考情報です。
区域によっては学校の指定が異なる場合もありますので、詳細は必ずご確認ください。
その他
こちらの物件は弊社運営の別サイトでもご紹介中♪