間取り図
価格改定
なら
仲介手数料 無料!
追加費用も一切なし
マンションは、“どこから買うか”で
支払う費用が変わります
仕組みを詳しく見る
月々の支払い目安を見る
※ローンの⽬安は、頭⾦ゼロ、借⼊年数35年、都市銀⾏・変動⾦利0.595%(優遇利⽤を想定。) 審査内容により、融資の⼀部または全部をご利⽤いただけない場合がございます。予めご了承ください。
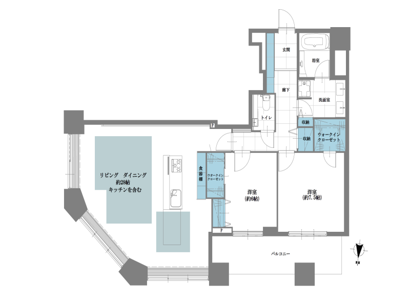
間取り図
2523号室
編集部が実際に現地を訪れ、見たもの・感じたことをレポート。
図面だけでは伝わらない"リアルな空気感"をお届けします。
更新日:2025/11/13
更新日:2025/11/13
時間で変わる絶景、毎日が特等席

高層階ならではの開放感に包まれた1室。ゆるやかなカーブを描く扇形の間取りが印象的で、3方向に窓を備えた開放的な空間設計です。刻々と表情を変える空と街の景色を、朝から夜までパノラマで堪能できます♡

開放的なアイランドキッチンは、デザイン性と機能性を兼ね備えたこだわりの仕様。食卓とひとつながりになった心地よい空間で、お料理をしながら家族との会話も弾みます。毎日の食事時間がもっと楽しくなりそうです♪

大理石が美しく映える玄関は、まるで高級ホテルのような品格ある空間。ホワイトを基調にした明るいデザインが、訪れる人を上品に迎え入れます。大容量のシューズクローゼットを備えており、ご家族全員分の靴をすっきり収納可能。

メインルームの大きな窓から見える「レインボーブリッジ」が、毎日の暮らしに彩りを添えます。昼は爽やかな青空、夜は輝く夜景が贅沢な時間を演出。夏には花火大会も楽しめるとか・・・✿

パウダールームには大きな独立洗面化粧台を設置。ゆったり使える贅沢な造りで、横に椅子を置けばメイクスペースとしても活用できます。鏡裏収納で生活感を隠し、洗練された空間をキープ✧

柔らかな木目調パネルが落ち着きを添えるバスルーム。シンプルな造りながらもゆとりがある空間で1日の疲れをゆっくりと癒せます。大きなミラーが奥行きを感じさせ、開放感のあるリラックス空間に♪

清潔感と上質さを兼ね備えた独立トイレ。ワイドカウンターにはアートやグリーンを飾ることで、心がほっと和む雰囲気を演出します。ミラー付きで、身だしなみチェックもスマートに。

優しい灯りとタイルの質感が心をほぐすベッドルーム。デッドスペースが少なく大きな家具の配置にも困りません◎お気に入りの小物を飾れば華やかさをプラス。ホテルのような安らぎを演出し、心地よい眠りをお届けします。
その他の室内・設備写真
東京グラウンド編集部の住まいレビュー
『芝浦アイランドケープタワー』の25階のお部屋をご紹介。2025年6月にリノベーションに施され、新築のようにピカピカです✧玄関や廊下は白を基調にした高級感あるデザインでメインルームや水回りにはあたたかみのある木目調を使っており、ほっとする空間になっています。そしてメインルームは約28帖もある広々空間!アーチ型の大きな窓から光がたっぷり入り開放感抜群です。窓の外には「東京スカイツリー」や「レインボーブリッジ」があり、夜は夜景が輝く素敵なパノラマビューが楽しめます✧キッチンはアイランドタイプで、皆でお料理をしたり、ホームパーティーをしたりするのにぴったり。お友達や家族との時間がもっと楽しくなりそうです♡25階ならではの眺望と、美しく整えられたお部屋で新しい生活をはじめてみませんか。ぜひ現地でチェックしてみてくださいね。 ライター:hana【25K12】
この物件の毎月の支払いイメージを
試算してみませんか?
頭金や返済年数などを入力するだけで毎月の合計支払額をシミュレーションできます。
28,980
毎月の支払い予想シミュレーション
※試算結果はあくまで目安であり、実際の借り入れを保証するものではありません。
※物件によっては上記以外の別途費用が発生する場合もございます。詳しくはお問い合わせくださいませ。
住戸概要
間取り図
なら
仲介手数料 無料!
追加費用も一切なし
マンションは、“どこから買うか”で
支払う費用が変わります
仕組みを詳しく見る
月々の支払い目安を見る
※ローンの⽬安は、頭⾦ゼロ、借⼊年数35年、都市銀⾏・変動⾦利0.595%(優遇利⽤を想定。) 審査内容により、融資の⼀部または全部をご利⽤いただけない場合がございます。予めご了承ください。
間取り図
43F
編集部が実際に現地を訪れ、見たもの・感じたことをレポート。
図面だけでは伝わらない"リアルな空気感"をお届けします。
更新日:2025/11/13
更新日:2025/11/13
港区のタワマンに住まう💎

48階タワーマンションの43階部分に位置する、2LDKのお部屋。メインとなるリビングダイニングキッチンは、約12.6帖の広さがあり開放感たっぷり♪大切なペットと一緒に暮らせます♡

リビングには床暖房を搭載しているので、寒い季節も安心。北側に位置するバルコニーからは心地よい風が吹き込み、1年を通して快適にお過ごしいただけます。高層階ならではの圧巻の眺望をお楽しみ下さい♡

おおよそ3.4帖のキッチンスペースには、シンプルなデザインのシステムキッチンを完備。グリル付き3口コンロ、食洗機、ディスポーザー、浄水器など便利な機能満載で、毎日の家事もスムーズにはかどりそう♪

天気の良い日は、なんとリビングから東京タワーを望めます。夜は都心の美しい夜景を独り占めしちゃってください♡季節によって移り変わる、都心の景色をご堪能いただけます。

サニタリールームには、洗面化粧台・洗濯機置き場・バスルームが集結。水回りの機能がまとまっていると、家事動線もスムーズですよね。清潔感のあるバスルームには、快適なご入浴に欠かせない追い焚き機能&浴室乾燥機を搭載。機能面も充実しています。

ラグジュアリーな雰囲気の洗面化粧台には、人気の3面鏡が採用されていました。フレームが木製なのも可愛らしいですね♡ミラーキャビネットには細々した洗面用具などをおまとめ下さい。

サニタリールームのお隣にはトイレがあります。余計な設計がないのでお掃除しやすく、いつまでも清潔に保てそう✨吊戸棚にはお掃除用品やトイレットペーパーなどをご収納いただけます。

白を基調としたクロスがスタイリッシュな玄関。備え付けのシューズボックスと大容量のシューズインクローゼットがあるので、ご家族全員分の靴を綺麗に保管できます。
その他の室内・設備写真
東京グラウンド編集部の住まいレビュー
田町駅、三田駅、芝浦ふ頭駅が徒歩圏内で、複数路線利用可能。そんな港区芝浦アドレスに佇む『芝浦アイランドケープタワー』は48階建て・総戸数1095戸のビッグコミュニティタワーマンションです。24時間有人管理でコンシェルジュサービス付き、各階に24時間ゴミ出し可能なゴミ置き場が設置されていて、管理体制は良好です。ご紹介のお部屋は、43階部分に位置する2LDK。大切なペットと一緒に暮らせる開放感溢れる間取りです。メインとなるリビングダイニングキッチンは12.6帖程の広さがあり、床暖房を搭載しています。お隣の約6.1帖の洋室内には大容量サイズのウォークインクローゼットが揃っているので、季節もののコートやかさばりやすいダウンジャケットなども綺麗に保管可能。玄関にはシューズインクローゼットもあり、収納力はかなり豊富です。さらにリビングからは東京タワーも望める圧巻の眺望をご堪能いただけます♡ ライター:rei【25H15】
この物件の毎月の支払いイメージを
試算してみませんか?
頭金や返済年数などを入力するだけで毎月の合計支払額をシミュレーションできます。
14,800
毎月の支払い予想シミュレーション
※試算結果はあくまで目安であり、実際の借り入れを保証するものではありません。
※物件によっては上記以外の別途費用が発生する場合もございます。詳しくはお問い合わせくださいませ。
住戸概要
間取り図
なら
仲介手数料 30% OFF
マンションは、“どこから買うか”で
支払う費用が変わります
仕組みを詳しく見る
月々の支払い目安を見る
※ローンの⽬安は、頭⾦ゼロ、借⼊年数35年、都市銀⾏・変動⾦利0.595%(優遇利⽤を想定。) 審査内容により、融資の⼀部または全部をご利⽤いただけない場合がございます。予めご了承ください。
間取り図
35F
東京グラウンド編集部の住まいレビュー
訪れたのは、港区芝浦にある『芝浦アイランドケープタワー』。都心の躍動と水辺の開放感が交わるこのエリアに、静かに佇む46階建てのタワーレジデンス。エントランスを抜けると、ホテルを感じさせるように整えられたラウンジやフィットネスなど、共用部には、”住まう人の日常を上質にする”工夫が随所にありました。ご紹介するのは35階、南西向きの角住戸。扉を開けるとまず広がるのは、約20帖のリビングダイニング。ワイドな窓からはたっぷりと陽光が差し込み、時間ごとに表情を変える空の色を楽しめます♩隣接するキッチンは、動線が考えられた配置で、かなり機能的。カウンター越しに家族の声を感じながら料理ができる心地よさもありますよ✧各居室には十分な収納を備え、主寝室にはウォークインクローゼットを設置。かさばる洋服はもちろん、季節物の収納にも利用できます。また、1坪以上のゆとりある浴室には追い焚き機能が完備され、35階の眺望を背に湯船に浸かる時間はまさに特等席。外からの光と港の風を受けながら、穏やかに暮らすための空間が演出されていました。アクティブな都心生活を楽しみながら、帰る場所にはやさしい静けさを。芝浦という港区らしい洗練と、空の近くで過ごす解放感、その両方を叶える一邸です。 ライター:【risako25J14】
この物件の毎月の支払いイメージを
試算してみませんか?
頭金や返済年数などを入力するだけで毎月の合計支払額をシミュレーションできます。
26,800
毎月の支払い予想シミュレーション
※試算結果はあくまで目安であり、実際の借り入れを保証するものではありません。
※物件によっては上記以外の別途費用が発生する場合もございます。詳しくはお問い合わせくださいませ。
住戸概要
間取り図
なら
仲介手数料 無料!
追加費用も一切なし
マンションは、“どこから買うか”で
支払う費用が変わります
仕組みを詳しく見る
月々の支払い目安を見る
※ローンの⽬安は、頭⾦ゼロ、借⼊年数35年、都市銀⾏・変動⾦利0.595%(優遇利⽤を想定。) 審査内容により、融資の⼀部または全部をご利⽤いただけない場合がございます。予めご了承ください。
間取り図
4612号室
この物件の毎月の支払いイメージを
試算してみませんか?
頭金や返済年数などを入力するだけで毎月の合計支払額をシミュレーションできます。
28,990
毎月の支払い予想シミュレーション
※試算結果はあくまで目安であり、実際の借り入れを保証するものではありません。
※物件によっては上記以外の別途費用が発生する場合もございます。詳しくはお問い合わせくださいませ。
住戸概要
[新しい都心の“アイランド”] 芝浦アイランドケープタワー
田町駅
徒歩11分

芝浦アイランドの最南端に位置した『芝浦アイランドケープタワー』。地下1階付地上48階建て・総戸数1,095戸のビッグコミュニティです。三井不動産株式会社旧分譲、鹿島建設施工のハイグレードタワーマンション。

エントランスにはもちろんオートロックが導入されています。そのうえに24時間有人管理がされているので、セキュリティ面は万全。地震に強い免震構造を採用しているのもポイントです。

天井が高く開放感バツグンのエントランスホール。入り口付近に設けられたコンシェルジュカウンターでは、様々なサービスを受けることができます。

駐車場・駐輪場・バイク置き場を完備した、安心の住環境。駅から少し距離があるので、自転車やバイクがあるとちょっとした買い出しにも便利ですね。
その他の共用部・設備写真
物件概要
設備・特徴
エレベーター オートロック 宅配BOX トランクルーム 防犯カメラ コンシェルジュサービス24時間セキュリティ24時間有人管理各階ダストステーション24時間ゴミ出し可会議室洗車スペースゲストパーキング専用カートガーデンエントランスペットエントランスプライベートガーデンレンタサイクルハーブガーデンドッグランカーシェアリング 新耐震基準適合 大規模修繕履歴有 長期修繕計画有 建物状況調査済 免震構造
テナント
居住者専用24時間営業コンビニ
山手線と京浜東北線の2本が乗り入れる田町駅。東京都の中心地である港区に位置し、都内屈指のビジネスエリアとしても知られています。都内中心部への移動だけではなく、横浜・埼玉方面など広範囲へのアクセス良好。近年では再開発によって新しいビルや商業施設が増え、ベイエリアならではの美しい街並みも魅力です♪
アクセス
ゆりかもめ 『芝浦ふ頭』駅 徒歩11分
JR山手線/京浜東北線 『田町』駅 徒歩12分
都営三田線/浅草線 『三田』駅 徒歩13分
都営バス 『芝浦四丁目』停 徒歩7分
買い物
学区
※掲載している学区情報は、記事制作時点での参考情報です。
区域によっては学校の指定が異なる場合もありますので、詳細は必ずご確認ください。
その他
こちらの物件は弊社運営の別サイトでもご紹介中♪
芝浦アイランドグローヴタワーもご紹介中