間取り図
こちらの物件の仲介手数料は
個別にご案内いたします。
詳細をご希望の方は
お気軽にご相談ください。
お問い合わせはこちら
月々の支払い目安を見る
※ローンの⽬安は、頭⾦ゼロ、借⼊年数35年、都市銀⾏・変動⾦利0.595%(優遇利⽤を想定。) 審査内容により、融資の⼀部または全部をご利⽤いただけない場合がございます。予めご了承ください。
間取り図
702号室
編集部が実際に現地を訪れ、見たもの・感じたことをレポート。
図面だけでは伝わらない"リアルな空気感"をお届けします。
更新日:2026/03/24
更新日:2026/03/24
光を集めるお部屋

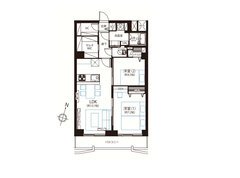
代々木駅の西口に佇むマンション『メゾンドール代々木』の7階にあるお部屋を訪れました。間取りは2LDKで専有面積は61.81㎡の広さです。新規フルリノベーションにより、1971年築マンションとは思えないお洒落な空間に生まれ変わりました♩嬉しい家具付きで、そのままお住まいいただけます。

約13.1帖のメインルームは端から端まで見通せる縦長の造りになっておりました。コーブ照明×コーニス照明×ダウンライトの組み合わせにより各照明のON/OFFが切り替えられ、繊細な明るさ調節が可能です◎

バルコニーへと繋がる窓は南東向き☀1日を通して太陽の光をキャッチすることができます!お部屋に散りばめられた照明を駆使しながら、お好みの明るさで生活してみましょう。

こちらがキッチンです。お部屋のカラーリングに馴染むシンプルな見た目ですが、機能性は抜群!広々ともうけられた調理スペースで、ご自身のお料理スキルを最大限に発揮してください◎

メインルームの隣には、寝室に最適な約7.2帖の洋室がありました。こちらもリビング同様、窓は南東向きです♩朝は心地よい最高で目覚めることができ、肌寒い時期の日中はポカポカとした陽光を室内から感じることができます。

約7.2帖の洋室にはDENスペースが設けられておりました。適度な明るさをキープしてくれる間接照明が上品です。夜は壁側についたコーニス照明と組み合わせて、ラグジュアリーな雰囲気で就寝の準備を♩

廊下にあるWICはなかなかの収納力◎お洋服が多くて困っているという方もこの広さなら安心です。ハンガーラックと引き出しを組み合わせれば、お洋服が散らかることも少なくなりますよ。

パウダールームも優しい色味で統一されており、リラックスできそうな空間。トイレ以外の水回りが集約されているうえ、便利な収納棚が設置されているので、お掃除も楽々行えそうです♩
その他の室内・設備写真
▲ このお部屋の雰囲気がお好みの方へ
東京グラウンド編集部の住まいレビュー
今回ご紹介したのは代々木駅から歩いて3分の好立地にあるマンション、『メゾンドール代々木』の7階にあるお部屋です。
山手線のターミナル駅「渋谷」と「新宿」に挟まれた住環境は、日々のお買い物から通勤通学、休日のアクティビティまでストレスなく行えるのが魅力。また、近隣には自然を感じられるスポットが多く、お散歩やランニングなどにも最適です◎
さて今回訪れた7階のお部屋は、建物の歴史を感じさせないオシャレな内装が素敵な2LDK♩照明が細かく分けられたメインルームは、南東向きの窓からの採光を生かしつつも、太陽の動きに合わせてこまめに明るさを調節できる空間。リビングでテレビを見たり、ダイニングでお食事を楽しんだり、あるいは外が晴れていたり曇っていたり...とシチュエーションや気候に合わせて居心地の良い明るさを調整できます。洋室は2つあり、大きな窓がある約7.2帖の洋室は寝室向け、窓がない代わりに一定の明るさを保ち続けられる約4.5帖の洋室は収納・書斎・ワークスペース向けだと思いました。一見コンパクトにまとまったお部屋に感じましたが、収納や各お部屋など、広くするべきお部屋は広くするように設計されているようでした◎新婚さんやカップルさんがのびのびと暮らすのに最適な、アクティブさとゆったり感を両立できるお部屋です!
このお部屋が気になる方はぜひ、実際に足を運んでみてください。 ライター:takumi【26C22】
この物件の毎月の支払いイメージを
試算してみませんか?
頭金や返済年数などを入力するだけで毎月の合計支払額をシミュレーションできます。
6,299
毎月の支払い予想シミュレーション
※試算結果はあくまで目安であり、実際の借り入れを保証するものではありません。
※物件によっては上記以外の別途費用が発生する場合もございます。詳しくはお問い合わせくださいませ。
住戸概要
こちらのお部屋は販売終了いたしました
過去に販売したお部屋の一部をご紹介。
住まい探しやリノベーションのヒントにご覧ください。
東京グラウンド編集部の住まいレビュー
今回の舞台はJR山手線と中央線・総武線、都営大江戸線が乗り入れる代々木駅。代々木エリアは代々木公園や明治神宮外苑、新宿御苑の3つの公園の中心にし、自然豊かな街並みが魅力です。買い物環境はスーパーマーケットやコンビニエンスストアが多く、日常の買い出しが便利。また、新宿や渋谷にも近いため大型ショッピングセンターやデパートでの買い物も気軽にできます。今回ご紹介の『メゾンドール代々木』は代々木一丁目に位置し、代々木駅に非常に近く交通の便や買い物の利便性が高いエリア。1本通りを入った場所にあり車の往来が少なく静かな印象です。お部屋は専有面積60.70㎡の2LDK。リビングダイニングキッチンに加えて2つの寝室があるため、夫婦や小さな子供がいる家族にオススメです。ウォークインクローゼットを3つ備えた間取りのため部屋をすっきりと保つことができ、生活空間を広く使えるのが嬉しいポイント。こちらは家具付き販売となっており、ご入居時には素敵な家具でコーディネートが完成してる予定です。ご入居前にぜひ現地にてご確認くださいね。 ライター:mao【24E29】
[住みよい街] メゾンドール代々木
代々木駅
徒歩3分

代々木駅より徒歩3分、通勤・通学に便利な立地に佇むこちらがお目当ての『メゾンドール代々木』。1971年3月築、8階建てのメゾンドール代々木は長期修繕計画があり、今後もますます快適な暮らしが叶います。総戸数は37戸と住戸数が少ないため共有スペースでの人の往来が少なく、プライバシーが保たれやすいのではないでしょうか。

代々木駅前から続く大通りから1本入った場所に位置するため、アプローチ前の通りは静かな印象。駐車場の出入り口でもあるため、間口が広くゆとりがありますね。アプローチを進んでいくと、メールボックスが並ぶエントランスに到着です。

駐車場はエントランス手前と建物の裏側に設けられていました。駐車スペースは広々と確保されていますが、ご入居前に空き情報をお問い合わせくださいね。バイク置き場や駐輪場もしっかり完備。バイクや自転車があると生活の幅が広がり、快適な暮らしが叶いますね。

エントランスには管理人室を備え、優しい管理人さんが居住者の安全を見守ってくれています。撮影時は管理人さんが共用スペースを清掃しており、管理体制の良さが見て取れました。フロア間はエレベーターに加え、2つの外階段で移動可能。外階段は避難経路としての役割を持つため、緊急時には外階段をご活用くださいね。
その他の共用部・設備写真
物件概要
設備・特徴
エレベーター 防犯カメラ 長期修繕計画有
『メゾンドール代々木』が建つ代々木駅西口、は利便性と落ち着きを兼ね備えた「都心の隠れ家」的なエリアです。駅周辺には多くの飲食店が連なり、サラリーマンと学生が交わる学生街特有の賑わいがあります。それとは打って変わり、マンションの周辺は閑静な住宅街が広がっておりました。徒歩圏内には明治神宮や新宿御苑、代々木公園といった都内有数森林浴スポットがあり、賑やかさと落ち着きの2面性を兼ね備えた住環境が大きな魅力です。
アクセス
小田急線 『南新宿』駅 徒歩3分
JR山手線/総武線/都営大江戸線 『代々木』駅 徒歩3分
JR山手線/埼京線/湘南新宿ライン/中央線/総武線/京王線/京王新線/小田急線/東京メトロ丸ノ内線/都営新宿線/大江戸線 『新宿』駅 徒歩11分
買い物
学区
※掲載している学区情報は、記事制作時点での参考情報です。
区域によっては学校の指定が異なる場合もありますので、詳細は必ずご確認ください。
その他
こちらの物件は弊社運営の別サイトでもご紹介中♪