間取り図
こちらの物件の仲介手数料は
個別にご案内いたします。
詳細をご希望の方は
お気軽にご相談ください。
お問い合わせはこちら
月々の支払い目安を見る
※ローンの⽬安は、頭⾦ゼロ、借⼊年数35年、都市銀⾏・変動⾦利0.595%(優遇利⽤を想定。) 審査内容により、融資の⼀部または全部をご利⽤いただけない場合がございます。予めご了承ください。
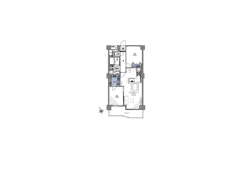
間取り図
604号室
この物件の毎月の支払いイメージを
試算してみませんか?
頭金や返済年数などを入力するだけで毎月の合計支払額をシミュレーションできます。
9,280
毎月の支払い予想シミュレーション
※試算結果はあくまで目安であり、実際の借り入れを保証するものではありません。
※物件によっては上記以外の別途費用が発生する場合もございます。詳しくはお問い合わせくださいませ。
住戸概要
こちらのお部屋は販売終了いたしました
過去に販売したお部屋の一部をご紹介。
住まい探しやリノベーションのヒントにご覧ください。
洗濯物はサンルームで




東京グラウンド編集部の住まいレビュー
代々木駅と北参道駅から徒歩4分、他に南新宿駅と千駄ヶ谷駅が徒歩圏内の『北参道ダイヤモンドパレス』をご紹介します。合わせて5路線が徒歩圏内で利用できる好立地マンション。明治神宮と新宿御苑の間に位置していて、都心ながらも自然を感じることができるエリアです。北参道駅周辺はオシャレで個性的な飲食店が多い印象。代々木駅周辺は飲食チェーン店や居酒屋さんが多く見受けられます。近いエリアながらも違った雰囲気が漂っていて、外食の日のお店選びが楽しそうです。ご紹介の北参道ダイヤモンドパレスは1983年3月に誕生した11階建て、総戸数85戸のマンション。地震の揺れに強い新耐震基準を満たした建物のため、安心してお住まいいただけるのではないでしょうか。お目当ては8階に位置する1LDK+WIC。三井デザインテックによるデザインリフォームが実施されました。これまでモデルルームとして使用されていたそうで、今回は家具付きでの販売です。南西・南東角住戸につき陽当り良好。私が注目してほしいポイントは2つあります。1つ目はメインルームの窓際に設けられたサンルームです。サンルームに洗濯物を干していれば突然雨が降っても服が濡れる心配ありません。2つ目のポイントは動線の良さ。サニタリールームやクローゼットへはそれぞれ2つの場所から行き来することができちゃいます。魅力がたっぷり詰まったこちらの1LDKで新生活をスタートしませんか。 ライター:asuka【24F14】
こちらのお部屋は販売終了いたしました
過去に販売したお部屋の一部をご紹介。
住まい探しやリノベーションのヒントにご覧ください。




東京グラウンド編集部の住まいレビュー
今回ご紹介したのは代々木駅から徒歩4分、他にも北参道駅や南新宿駅などがご利用いただけて、ビッグターミナルの新宿までも近い好立地のマンション。代々木駅周辺には飲食店が密集していて、毎日何を食べようかお店選びに悩んでしまいそう+* 『北参道ダイヤモンドパレス』の1階部分にも多数飲食店が入っていましたよ。ご紹介のお部屋は新規フルリノベーション済み、3LDK。大きな特徴は全室ウォークインクローゼット付きという贅沢な収納力!居住スペースを広く確保できるので、衣装持ちの方にも満足していただけるのではないでしょうか。間接照明を用いたリビングダイニングは上品な雰囲気で、ちょっとした特別感を味わえそう。ペットとの暮らしも叶いますよ。是非一度ご自身の目でお確かめくださいね◎ ライター:石川【22I29】
[休日の選択肢が広がる] 北参道ダイヤモンドパレス
代々木駅
徒歩4分
その他の共用部・設備写真
物件概要
設備・特徴
エレベーター 防犯カメラ 新耐震基準適合 長期修繕計画有
アクセス
JR山手線/総武線/都営大江戸線 『代々木』駅 徒歩4分
東京メトロ副都心線 『北参道』駅 徒歩4分
小田急線 『南新宿』駅 徒歩8分
JR総武線 『千駄ヶ谷』駅 徒歩9分
学区
※掲載している学区情報は、記事制作時点での参考情報です。
区域によっては学校の指定が異なる場合もありますので、詳細は必ずご確認ください。
こちらの物件は弊社運営の別サイトでもご紹介中♪