間取り図
価格改定
なら
仲介手数料 無料!
追加費用も一切なし
マンションは、“どこから買うか”で
支払う費用が変わります
仕組みを詳しく見る
月々の支払い目安を見る
※ローンの⽬安は、頭⾦ゼロ、借⼊年数35年、都市銀⾏・変動⾦利0.595%(優遇利⽤を想定。) 審査内容により、融資の⼀部または全部をご利⽤いただけない場合がございます。予めご了承ください。
間取り図
409号室
編集部が実際に現地を訪れ、見たもの・感じたことをレポート。
図面だけでは伝わらない"リアルな空気感"をお届けします。
更新日:2025/12/01
更新日:2025/12/01
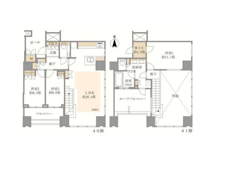
メリハリのある暮らしが叶うメゾネット

今回ご紹介するのは、4階&5階に位置するメゾネットタイプのお部屋となっています。スケルトン階段には透明の柵が設けられ、デザイン性が高い上に落下防止の対策もバッチリですね。

キッチンはリビングダイニングスペースを広々とご利用いただける壁付けのレイアウト。設備は新規交換されておらず、やや使用感がある部分もありますが神経質な方でなければ十分そのままでもご利用いただけそうです。

メゾネットならではの吹き抜け部分には、棚板の高さを調整可能なオープン収納が備わっていました。お店のディスプレイのように、お気に入りのアートや雑貨をオシャレにを飾ることが出来そうです。

上階にあがると、吹き抜け側に階段と同じくガラスの柵が設置されていました。4階部分と5階部分それぞれに玄関があるので、大きな家具や重たい荷物を運び入れる際には階段を経由せず、共用部のエレベーターをご利用いただけます。

洋室には収納力抜群のウォークインクローゼットが完備されていました。しっかり奥行きがあり、スーツケースなど大きな物を収納するのにも最適です。

バルコニーは4階のメインルームからアクセス可能になっていました。高層階ではありませんが、奥行きのある清々しい眺望をお楽しみいただけます。

こちらはゆったりとしたサニタリールーム。洗濯機は洗面化粧台の左側に設置できるようになっていました。扉付きの収納が豊富に備わっており、バス用品や洗面用品を仕舞う場所には困りません。

ホワイト基調の玄関。L字に設置された大きなシューズクローゼットはフロート納まりになっていて、下部の照明が足元を明るく照らしてくれていました。
その他の室内・設備写真
東京グラウンド編集部の住まいレビュー
天王洲アイル駅徒歩7分&ビッグターミナル品川駅も徒歩圏内という魅力的な立地にそびえ立つ『ワールドシティタワーズキャピタルタワー』。敷地内にスーパーや洋菓子店があり、日々のお買い物には困りませんね。すぐ近くには緑豊かな公園や、ローズガーデン、運河沿いの緑地があり、ちょっとしたお散歩や気分転換にピッタリな自然を感じられるスポットも豊富です。お部屋は4階&5階に位置するメゾネットタイプの1LDK。4階部分にはLDKとトイレ、5階部分には洋室とサニタリールームが配置され、メリハリのある生活を送ることができそうです。リビングダイニングスペースはメゾネットならではの吹き抜けとなっており開放感抜群◎南向きでこそありませんが、2階層分の高さのある窓からたっぷりと自然光が降り注ぎ、とっても明るく爽やかな印象でした。お洒落なスケルトン階段も魅力的ですよね。水回りの設備は新規交換はされておらずやや使用感が残る部分も。そのままでも十分お住まいいただけそうですが、気になる場合は追加でリノベーションを施すのも良いかもしれませんね。リノベーションは弊社でも承りますのでお気軽にご相談くださいませ。 ライター:kayo【25H21】
この物件の毎月の支払いイメージを
試算してみませんか?
頭金や返済年数などを入力するだけで毎月の合計支払額をシミュレーションできます。
10,480
毎月の支払い予想シミュレーション
※試算結果はあくまで目安であり、実際の借り入れを保証するものではありません。
※物件によっては上記以外の別途費用が発生する場合もございます。詳しくはお問い合わせくださいませ。
住戸概要
間取り図
なら
仲介手数料 無料!
追加費用も一切なし
マンションは、“どこから買うか”で
支払う費用が変わります
仕組みを詳しく見る
月々の支払い目安を見る
※ローンの⽬安は、頭⾦ゼロ、借⼊年数35年、都市銀⾏・変動⾦利0.595%(優遇利⽤を想定。) 審査内容により、融資の⼀部または全部をご利⽤いただけない場合がございます。予めご了承ください。
間取り図
8-4007号室
この物件の毎月の支払いイメージを
試算してみませんか?
頭金や返済年数などを入力するだけで毎月の合計支払額をシミュレーションできます。
36,980
毎月の支払い予想シミュレーション
※試算結果はあくまで目安であり、実際の借り入れを保証するものではありません。
※物件によっては上記以外の別途費用が発生する場合もございます。詳しくはお問い合わせくださいませ。
住戸概要
こちらのお部屋は販売終了いたしました
過去に販売したお部屋の一部をご紹介。
住まい探しやリノベーションのヒントにご覧ください。
煌びやかな夜景が自慢




東京グラウンド編集部の住まいレビュー
充実した共用設備を備えるビッグコミュニティの『ワールドシティタワーズキャピタルタワー』。今回は高層フロアにある2LDKをご案内します。室内はフルリノベーションが完了し、どこもかしこもピッカピカ★専有面積は82.89㎡で2LDKという、ゆとりある間取り設計となっています。エントランスポーチにはプライベートトランクを設け、お部屋にしまいきれないアウトドア用品などをしっかりしまうことが可能です。1番広い洋室には大容量のウォークインクローゼットを設置し、お洋服をたくさんお持ちの方でも安心◎キッチン・ユニットバス・洗面化粧台はLクラス、トイレはネオレストLSを採用したハイグレード設備なところも魅力の1つです。1つ1つの設備にこだわったスペシャルなお部屋で豊かな毎日を過ごしましょう♪こちらのお部屋は夜景も素敵なんです。昼と夜では雰囲気の全く異なる景色をご堪能ください。ちなみに私は、キラキラとした宝石のような夜景がオススメです✰それではお部屋を詳しく見ていきましょう♪ ライター:yuka【24L03】
[非日常がここに] ワールドシティタワーズキャピタルタワー
天王洲アイル駅
徒歩4分

国内最大の集合住宅のワールドシティタワーズ。3棟のうちの1つ『キャピタルタワー』がこちら。住友不動産株式会社旧分譲×清水建設施工の大規模タワーマンションです。2007年にグッドデザイン賞を受賞した、水辺の光を反射するスタイリッシュな外観は近未来的。

清掃が行き届いたエントランスはオートロックを完備。さらに、24時間有人管理を採用し万全のセキュリティ体制が整っています。開放的なエントランスホールではコンシェルジュサービスをご利用することが可能です。

共用施設はとっても充実しています。スカイラウンジやトレーニングジム、プール、ゲストルームなど…居住者の方はもちろん、ご来客の方も不便なく過ごせるでしょう♡

各フロアには24時間ゴミ出し可能なクリーンステーションが。ゴミ出しの度に下へ降りる手間が省けるのは嬉しいですね。絨毯が敷かれたホテルライクな内廊下仕様で、天候を気にすることなくお部屋へ向かえますね。
その他の共用部・設備写真
物件概要
設備・特徴
エレベーター オートロック 宅配BOX トランクルーム 防犯カメラ パーティールームコンシェルジュサービス24時間有人管理(夜間警備員)24時間ゴミ出し可各階ダストステーション居住者専用シャトルバス(120円/回) 新耐震基準適合 大規模修繕履歴有 建物状況調査済 免震構造 制震構造
テナント
クリニック銀行保育園カフェスーパー
港区港南は、品川駅を中心に発展する利便性の高いエリアです。新幹線の停車駅であるビックターミナル品川駅が利用でき、羽田空港へのアクセスも良好なため、出張や旅行が多い方に最適です。駅周辺には高層オフィスビルや商業施設が立ち並び、ショッピングスポットや飲食店が豊富。一方で、少し歩くと運河沿いの遊歩道や公園が整備されており、都会にいながら水辺の景色を楽しめるのも魅力です。オフィス街のイメージが強いですが、高層マンションも多く、都心へのアクセスを重視するビジネスパーソンやファミリー層に人気の住環境となっています。
アクセス
東京モノレール/りんかい線 『天王洲アイル』駅 徒歩4分
JR山手線/京浜東北線/常磐線/横須賀線/東海道本線/東海道新幹線/京急本線 『品川』駅 徒歩10分
買い物
学区
※掲載している学区情報は、記事制作時点での参考情報です。
区域によっては学校の指定が異なる場合もありますので、詳細は必ずご確認ください。
その他
こちらの物件は弊社運営の別サイトでもご紹介中♪
ワールドシティタワーズブリーズタワーもご紹介中
ワールドシティタワーズアクアタワーもご紹介中