仲介物件の多くは『レインズ』という不動産会社だけが利用できる情報サイトに掲載されています。レインズはどの不動産会社も同じ情報にアクセスできる仕組みのため、会社によって紹介できる物件が限定されるということはほとんどありません。
当サイトに掲載されていない物件であっても、気になる物件があれば、仲介手数料無料または割引(規定上限額の30〜50%)でご案内可能です。そのため、物件の条件にかかわらず、常にお客さまのご負担を最小限に抑えたご提案を行っています。
こちらのお部屋は販売終了いたしました
過去に販売したお部屋の一部をご紹介。
住まい探しやリノベーションのヒントにご覧ください。




こちらのお部屋は販売終了いたしました
東京グラウンド編集部の住まいレビュー
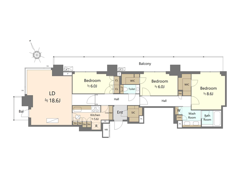
老舗旅館の跡地に建てられた『アトラスタワー五反田』。美しい桜並木のほとりに堂々佇む姿は存在感を放ちます。エントランスゲートを抜けると喧騒から静寂へ…。充実した共用施設にラグジュアリーホテルのような内装デザイン、至る所までこだわりが詰め込まれた上質な空間が広がります。今回ご紹介するお部屋は22階の高層フロアにある3LDK。ご家族での住まいに是非オススメしたいお部屋です。隣合う住戸の少ない角部屋は、騒音トラブルのリスクが少ないメリットが。ウォークスルーキッチンを採用するなどスムーズな動線を確保しています。開放感溢れる景色は圧巻。ご家族揃ってのお引越し先にいかがでしょうか♡
《設備・条件・住宅性能》
〇高層階住戸×築後未入居の希少性の高いお部屋
〇トイレは廊下の独立空間に。使用後にサッと手を洗うことが出来る手洗い器付き
〇廊下には収納を複数設け、日用品の収納にピッタリ
〇サニタリールームは洗面化粧台・洗濯機置き場・バスルームがまとまった造り
〇約5.5帖と6.5帖ほどの洋室はプライベート性の高い独立空間♪
〇およそ6.5帖の洋室にはウォークインクローゼットが備わっています
〇メインルームの広さは約12.1帖
〇L字型の大きな窓が開放感をプラス◎
〇床暖房を完備し足元からポカポカです♡
〇廊下とメインルームのどちらからもアクセスできるウォークスルーキッチンを採用☆
〇無駄のない動線で効率良く家事に取り組めるでしょう
〇4.5帖ほどの洋室はメインルームに隣接
〇スライドドアを開けっぱなしにしてメインルームの一部としても利用可能です♫
〇バルコニーは南西と北西の2ヶ所に
〇建物に遮られない開けた眺望は高層階ならでは
〇夜はビル夜景を楽しんでも素敵ですね°˖✧
ライター:yuka【24H09】
こちらのお部屋は販売終了いたしました
東京グラウンド編集部の住まいレビュー
『アトラスタワー五反田』の魅力は圧倒的な利便性と豪華な共用設備✦JR山手線を始めとした3路線が乗り入れる五反田駅から徒歩5分なので、どこへ行くにも便利です。日本庭園を彷彿とさせるアプローチを通り抜けてマンション内にお邪魔すると、その先に待つのは豪華な設備の数々。パーティールーム、スタディルーム、パブリックビューイングができる広々ホールなどたくさんの設備がありますが、「蔦屋書店」の選書サービスを導入したライブラリーラウンジは特に印象的でした。雨が降る休日にマンション内でまったり読書を楽しんだり、ご友人とパーティールームで賑やかに過ごしたり。既にお仕事をリタイアした方も、充実した毎日を過ごせるのではないでしょうか。『アトラスタワー』は2024年3月に建てられたばかりで、こちらの物件は新築未入居✧18階に位置する専有面積57.25㎡の2LDKです。今回お部屋の中を見ることはできませんでしたが、南東向きなのでバルコニーから目黒川が見えるかもしれません✿ご興味があればぜひご内見をしてみてください。
《設備・条件・住宅性能》
〇豪華な共用設備が詰まったタワーマンションの18階!
〇コンシェルジュサービスを受けられます
〇新築未入居の2LDK
〇リビングダイニングキッチンの広さは約12.7帖
〇リビングダイニングに床暖房を完備しています
〇洋室は2部屋あり、それぞれ約4帖/6帖
〇居室に加えて廊下と玄関にも収納を完備
〇玄関~廊下にトイレとパウダールームが隣接
〇玄関から居室が見えないレイアウトです
〇バルコニーは南東向き。実際の内装と眺望はぜひ現地でご確認ください✿ ライター:yuki【24G26】
こちらのお部屋は販売終了いたしました
過去に販売したお部屋の一部をご紹介。
住まい探しやリノベーションのヒントにご覧ください。




東京グラウンド編集部の住まいレビュー
五反田駅から徒歩3分の好立地に建つ『アトラスタワー五反田』。2024年3月に完成したばかりの新築タワーマンションです。旭化成不動産レジデンシャルの分譲マンション「アトラスシリーズ」の1つで洗練された佇まいが特徴。施工から館内の空間デザインまで各分野のエキスパートが集まり、理想を詰め込んだマンションとなっています。エントランスゲートの先には別世界が…。木々が植えられ日本庭園のような空間はビジネス街との結界を表現しています。複数のオートロックを完備した館内は高いセキュリティー体制が整い、誰もが安心したマンションライフが送れることでしょう。ラウンジやパーティールーム、蔦屋書店の選書サービスを導入したライブラリーラウンジなど、充実した共用施設が揃っているのも特徴。お目当てのお部屋は21階の高層フロアにあります。ダークブラウンを基調としたモダンで落ち着きのある空間。バスルームにミストサウナ、リビングダイニングキッチンには床暖房を搭載。全ての居室に収納を設けることで常に綺麗な空間を保つことができるでしょう。バルコニーからの景色は圧巻。春になれ目黒川の桜を望むことができますよ。五反田の中心でハイクラスな暮らしを始めませんか。それではお部屋を詳しく見ていきましょう。 ライター:yuka【24D03】
[ゲートの先に広がる別世界] アトラスタワー五反田
五反田駅
徒歩3分
その他の共用部・設備写真
物件概要
設備・特徴
エレベーター オートロック 宅配BOX トランクルーム 防犯カメラ 24時間ゴミ出し可各階ダストステーションコンシェルジュサービス(一部有償)フロントサービスペット用施設スカイデッキスタディルームフィットネスルーム 新耐震基準適合