仲介物件の多くは『レインズ』という不動産会社だけが利用できる情報サイトに掲載されています。レインズはどの不動産会社も同じ情報にアクセスできる仕組みのため、会社によって紹介できる物件が限定されるということはほとんどありません。
当サイトに掲載されていない物件であっても、気になる物件があれば、仲介手数料無料または割引(規定上限額の30〜50%)でご案内可能です。そのため、物件の条件にかかわらず、常にお客さまのご負担を最小限に抑えたご提案を行っています。
こちらのお部屋は販売終了いたしました
過去に販売したお部屋の一部をご紹介。
住まい探しやリノベーションのヒントにご覧ください。
東京グラウンド編集部の住まいレビュー
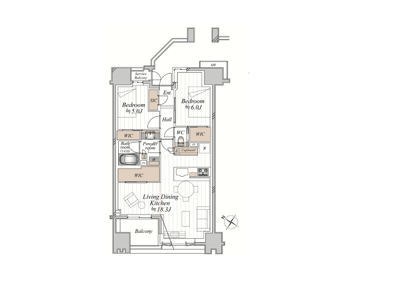
目黒駅より徒歩8分、利便性の高い山手通り沿いに佇む『ザ・マジェスティコート目黒』。今回の舞台は7階にある2LDKです。メインルームは約18.3帖とかなりゆったりとしたスペースが確保され、バルコニーに面した大きな窓と、コーナーウィンドウが設けられ解放的で清々しい印象の空間となっています。2つある洋室はいずれも5帖以上とバランスの良い間取りで、家族構成やライフスタイルにあわせて多様な活用の仕方が出来そうです。2025年10月にリノベーションが施されたばかりで室内はまるで新築のように綺麗な状態でした。ホワイトの壁&明るいトーンのフローリングに、建具や水回りの設備にはダークブラウンが取り入れられ、全体的に統一感がある落ち着いた雰囲気の内装デザインに仕上がっています。ペットを2匹まで飼育可能なのもオススメしたいポイント。新生活をスタートするのにふさわしい一室です。ぜひ一度内見してみてくださいね。 ライター:kayo【25K06】
[“格式高い美術館”をコンセプトに] ザ・マジェスティコート目黒
目黒駅
徒歩8分




その他の共用部・設備写真
物件概要
設備・特徴
エレベーター オートロック 宅配BOX 防犯カメラ 24時間ゴミ出し可ギャラリーホールオーナーズラウンジサイクルポート 新耐震基準適合