間取り図
価格改定
なら
仲介手数料 50% OFF
マンションは、“どこから買うか”で
支払う費用が変わります
仕組みを詳しく見る
月々の支払い目安を見る
※ローンの⽬安は、頭⾦ゼロ、借⼊年数35年、都市銀⾏・変動⾦利0.595%(優遇利⽤を想定。) 審査内容により、融資の⼀部または全部をご利⽤いただけない場合がございます。予めご了承ください。
間取り図
2F
編集部が実際に現地を訪れ、見たもの・感じたことをレポート。
図面だけでは伝わらない"リアルな空気感"をお届けします。
更新日:2026/05/15
更新日:2026/05/15
新耐震×3方角住戸

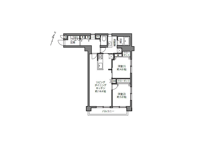
専有面積60㎡超えの2LDKのお部屋をご紹介します♬木目の質感と柔らかな照明が調和した、落ち着きのあるリビング空間。どんな家具とも相性が良さそうな内装デザインで、シンプルな暮らしを好む方にもフィットしそうです。

ナチュラルカラーでまとめられたリビングダイニングは、肩の力を抜いて過ごせる穏やかな雰囲気。ソファやダイニングテーブルを置いても圧迫感が出にくく、空間をバランスよく使えるレイアウトです✦

バルコニーに面したリビングダイニングは、窓から陽光が射し込みとっても爽やかです☀エアコンが備わっているので、引っ越ししてきたその日から快適に過ごせますね。初期費用も抑えられて、一石二鳥♬

システムキッチンは明るいトーンでまとめられたすっきりとしたデザインで、お部屋全体にも自然と統一感が生まれています。作業スペースにもゆとりがあり、毎日の料理をストレスなくこなせそう。食洗機付きなのも嬉しいです♡

洋室は約4.6帖と約5.0帖の2部屋あります。大きなクローゼットが設けられており、衣類だけでなく季節家電や日用品までしっかり収納可能。窓はすりガラス仕様のため、外からの視線を気にせず落ち着いて過ごせる空間です✦

ワイドな洗面化粧台は、身支度をスムーズに行えて使いやすいので、朝の身支度もスムーズですね。三面鏡の裏や下部収納も充実しており、生活感が出やすい洗面まわりをすっきり保てます。小窓付きで換気しやすいのも嬉しいポイント。

デザインパネルがアクセントになったバスルームは、清潔感の中にお洒落さもしっかり感じられるデザイン。浴室乾燥機付きなので、天候を気にせず洗濯できるのも便利ですね。ゆったり湯船に浸かって、1日の疲れをしっかりリセットできそうです◎

玄関には大容量のシューズクローゼットを備え、靴が多い方でも安心の収納力。ニッチスペースにはお気に入りの雑貨や季節の小物を飾ることができ、帰宅するたびにちょっと気分が上がりそうです♬
その他の室内・設備写真
▲ このお部屋の雰囲気がお好みの方へ
東京グラウンド編集部の住まいレビュー
大崎駅徒歩6分、北品川駅徒歩15分。再開発によって利便性が高まり続ける大崎エリアを身近にしながら、現地周辺には落ち着いた住宅街らしい空気も残る『セザール御殿山』をご紹介しました。
今回のお部屋は60.6㎡の2LDK。室内へ入ってまず感じたのは、生活動線のスムーズさでした。キッチン・洗面室・リビングが回遊できるよう設計されており、日々の家事や身支度が自然と効率良くこなせそうな間取りに。実際に歩いてみると移動のストレスが少なく、数字以上に暮らしやすそうな印象を受けました。
内装は淡いグレージュを基調にまとめられており、柔らかな光が室内全体に広がる穏やかな雰囲気。真鍮のアクセントも程よく効いていて、ナチュラルでありながらどこか品のある空間に仕上がっていました。約14.4帖のLDKは家具配置の自由度も高く、食事をする場所とリラックスする場所を自然に分けながら使えそうです。
また、全居室に収納を備えているほか、玄関まわりにも棚や収納スペースが充実。暮らしやすさをしっかり考えて作られていることが伝わってくる住まいでした。都心へ軽やかにアクセスしながら、家では落ち着いて過ごしたい。そんな方にぜひ見ていただきたい一室です。ご内見お待ちしております。 ライター:kayo【26E15】
この物件の毎月の支払いイメージを
試算してみませんか?
頭金や返済年数などを入力するだけで毎月の合計支払額をシミュレーションできます。
7,990
毎月の支払い予想シミュレーション
※試算結果はあくまで目安であり、実際の借り入れを保証するものではありません。
※物件によっては上記以外の別途費用が発生する場合もございます。詳しくはお問い合わせくださいませ。
住戸概要
こちらのお部屋は販売終了いたしました
過去に販売したお部屋の一部をご紹介。
住まい探しやリノベーションのヒントにご覧ください。
東京グラウンド編集部の住まいレビュー
大崎駅より徒歩6分ほどの位置に佇む『セザール御殿山』をご紹介しました。2025年10月にリノベーションが施されたばかりで室内はまるで新築のように綺麗な状態です。明るいトーンのフローリングと白い壁が採用されたナチュラルな内装となっており、室内ドアなど建具もフローリングと同じトーンの木目調が取り入れられていました。角部屋のため窓が多く、すべての居室に窓があり全体的に開放的でさわやかな印象でした。特におよそ4.8帖の洋室は二面採のため南向きでこそありませんが、かなり日当たりが良く感じられました。最上階にあるお部屋なので、上階にお住まいの方の足音が気になることも無さそうです。のびのびとした暮らしを手に入れたい方にオススメしたいお部屋でした。 ライター:kayo【25K10】
[身近で全てが手に入る] セザール御殿山
大崎駅
徒歩6分

通りを少し入ったところに佇む『セザール御殿山』。外観は御殿山エリアの落ち着いた街並みに自然と馴染む、重厚感のあるデザイン。低層レジデンスらしい穏やかさと品の良さを大切にした佇まいが印象的です。

敷地内に駐車場・駐輪場・バイク置場が備わっています。天候の影響が受けづらく、愛車を綺麗に保てます。日々の移動手段の選択肢を多く持てるのは助かりますね。

管理の行き届いたマンション内はハッピーな気分になるイエローが目立ちます。住民の方々への掲示板があったり、管理体制の良さが伺えますよ。オートロックと防犯カメラを完備し、安心のセキュリティ。

共用廊下も丁寧に管理されており、日々の清掃状況から管理体制の良さが伝わってきます。住戸同士の距離感にもゆとりがあり、落ち着いて生活しやすい印象です。
その他の共用部・設備写真
物件概要
設備・特徴
エレベーター オートロック 防犯カメラ 新耐震基準適合 耐震補強工事実施済
山手線やりんかい線が通り、アクセス至便な大崎駅。オフィスビルが多く、平日はサラリーマンが行き交います。東口を出ると「大崎ニューシティー」に直結。スーパー、ドラッグストア、100円ショップなどがありとっても便利です。近所の友人との食事にも便利な飲食店も充実◎再開発で整った町並みも魅力的で、街路樹や広場があり気持ちの良い道のりです♪マンションの近くには、3つの施設からなる「パークシティ大崎」が。こちらにもスーパーや飲食店、クリニックなどが入っていてこの上ない住環境と言えます。
アクセス
JR山手線/埼京線/りんかい線/湘南新宿ライン 『大崎』駅 徒歩6分
JR山手線/都営浅草線/東急池上線 『五反田』駅 徒歩15分
東急池上線 『大崎広小路』駅 徒歩15分
京急本線 『北品川』駅 徒歩17分
京急本線 『新馬場』駅 徒歩17分
買い物
学区
※掲載している学区情報は、記事制作時点での参考情報です。
区域によっては学校の指定が異なる場合もありますので、詳細は必ずご確認ください。
その他
こちらの物件は弊社運営の別サイトでもご紹介中♪