購入・売却・リノベ・無料相談はこちら 公式LINEで気軽に相談

ライオンズステージ門前仲町冬木

ライオンズステージ門前仲町冬木

URLとタイトルをコピーしました!

【仲介手数料相談】江東区冬木10-10/門前仲町駅徒歩7分/駐車場有/ペット飼育可/新耐震基準適合/定休日なしで内見予約・無料相談受付中です!
この物件の売却相談はこちら
仲介手数料相談
206号室
11,500万円
成約済み
販売終了物件

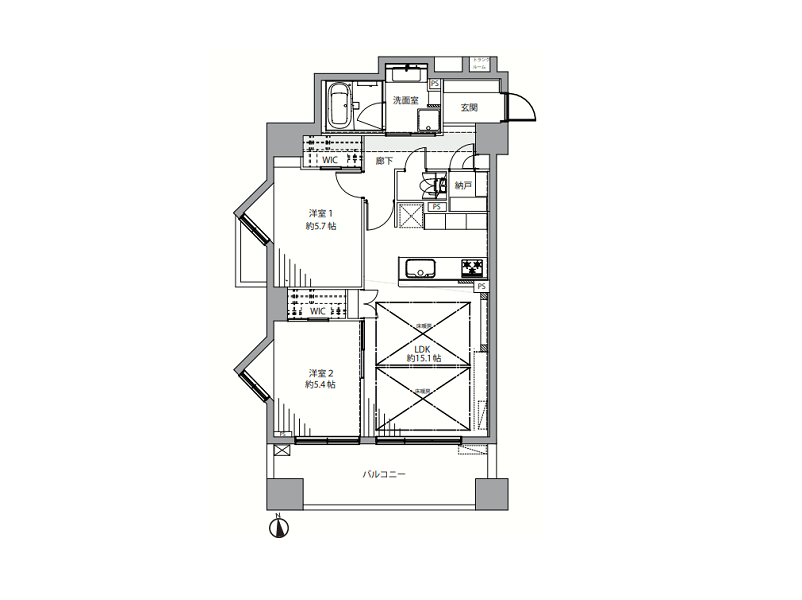
間取り図

URLとタイトルをコピーしました!
11,500万円
67.86㎡
2LDK

こちらの物件の仲介手数料は
個別にご案内いたします。
詳細をご希望の方は
お気軽にご相談ください。

お問い合わせはこちら

月々の支払い目安を見る

ローンの目安
303,000円/月
管理費
13,700円/月
修繕積立金
15,340円/月
合計
332,040円/月

※ローンの⽬安は、頭⾦ゼロ、借⼊年数35年、都市銀⾏・変動⾦利0.595%(優遇利⽤を想定。) 審査内容により、融資の⼀部または全部をご利⽤いただけない場合がございます。予めご了承ください。

間取り図

206号室
67.86㎡ 2LDK

この物件の毎月の支払いイメージを
試算してみませんか?

頭金や返済年数などを入力するだけで毎月の合計支払額をシミュレーションできます。

11,500

万円

最初にまとめて支払うお金です。
頭金なしでもローンは組めますので
ご安心ください。

万円

ローンを何年かけて返済するかを
入力します。よくある期間は
35年、30年、20年など。

変動金利で0.3〜0.6%(低金利だが将来的に変動)、固定金利で1.0〜1.5%(返済額がずっと一定で安心)が一般的な目安です。

毎月の支払い予想シミュレーション

ローン支払い目安
303,000円/月
管理費
13,700円/月
修繕積立金
15,340円/月
合計
332,040円/月

※試算結果はあくまで目安であり、実際の借り入れを保証するものではありません。
※物件によっては上記以外の別途費用が発生する場合もございます。詳しくはお問い合わせくださいませ。

住戸概要

価格
11,500万円
所在階
2階
間取り
2LDK
専有面積
67.86㎡
バルコニー
9.42㎡
管理費
13,700円/月
修繕積立金
15,340円/月
トランクルーム
0.36㎡(専有面積に含む)
リノベーションアフターサービス保証付住宅ローン控除対象

こちらのお部屋は販売終了いたしました

編集部の
部屋レポ

過去に販売したお部屋の一部をご紹介。
住まい探しやリノベーションのヒントにご覧ください。

▲ このお部屋の雰囲気がお好みの方へ

建物と街のようす

[下町の温もりと都心の利便 ] ライオンズステージ門前仲町冬木

江東区冬木10-10MAP

門前仲町駅

徒歩7分

外観・共用部

その他の共用部・設備写真

物件概要

物件名
ライオンズステージ門前仲町冬木
所在地
江東区冬木10-10
築年月
平成14年/2002年1月
構造
鉄骨鉄筋コンクリート・鉄筋コンクリート造
階数
地下1階付 10階建
土地
所有権
総戸数
103戸
分譲会社
株式会社大京
管理会社
株式会社大京アステージ
駐車場
有 (28,000円~32,000円/月)
ペット飼育
可 (成長時体長70cm10kg以内の犬猫1住戸1匹迄 ※細則有)
事務所使用
不可

設備・特徴

エレベーター オートロック 宅配BOX トランクルーム 防犯カメラ 新耐震基準適合 長期修繕計画有

アクセス・周辺環境

アクセス

東京メトロ東西線/都営大江戸線 『門前仲町』駅 徒歩7分

東京メトロ半蔵門線/都営大江戸線 『清澄白河』駅 徒歩13分

学区

数矢小学校
徒歩4分(280m)
深川第二中学校
徒歩4分(280m)

※掲載している学区情報は、記事制作時点での参考情報です。
区域によっては学校の指定が異なる場合もありますので、詳細は必ずご確認ください。

こんなお部屋に住みたい方へ リフォーム:リノベーション

不動産にまつわるご相談・ご質問・資料請求など
まずはお気軽にお問い合わせくださいませ。