間取り図
なら
仲介手数料 無料!
追加費用も一切なし
マンションは、“どこから買うか”で
支払う費用が変わります
仕組みを詳しく見る
月々の支払い目安を見る
※ローンの⽬安は、頭⾦ゼロ、借⼊年数35年、都市銀⾏・変動⾦利0.595%(優遇利⽤を想定。) 審査内容により、融資の⼀部または全部をご利⽤いただけない場合がございます。予めご了承ください。
間取り図
1F
編集部が実際に現地を訪れ、見たもの・感じたことをレポート。
図面だけでは伝わらない"リアルな空気感"をお届けします。
更新日:2025/11/14
更新日:2025/11/14
家族の時間をデザインする、快適空間

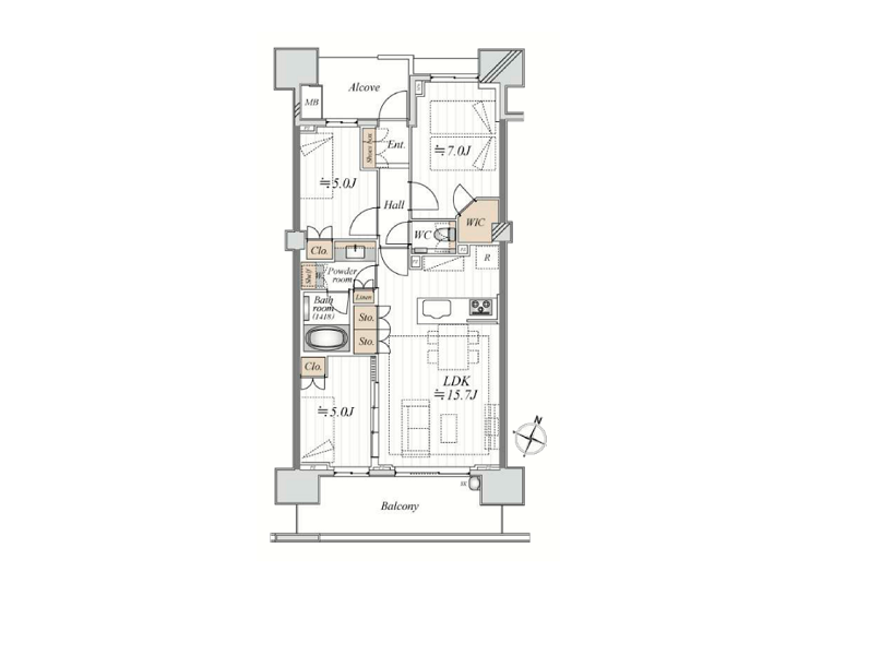
ご紹介するのは、1階に位置する72.51㎡の3LDK。ファミリーでの暮らしにぴったりの広さを誇ります。2025年10月にリノベーションが施され、新築同様の美しさを実現。室内は明るく爽やかなトーンでまとめられ、壁や建具、床まで丁寧に仕上げられており清潔感と快適さが際立つ空間に生まれ変わりました。

メインのリビングダイニングキッチンは約16.9帖の広々空間。横長の造りにより食事スペースとくつろぎスペースを自然にゾーン分けでき、家族がそれぞれの時間を過ごしやすい設計です。西向きの大きな窓から差し込む優しい陽光が室内を満たし、穏やかでリラックスした時間を演出します♪

壁面にはピクチャーレールを設置し、シンプルな内装にアクセントを加えられるよう工夫されていました!お気に入りの写真やイラスト、アートを飾れば、自分だけのギャラリー空間を簡単に作ることができ、センスが光るお洒落な居室に変身します。

メインルームとスライドドアで仕切られた洋室は約5.0帖。廊下やメインルームからのアクセスがスムーズで、家事や生活動線に配慮した設計です。クローゼットも完備されており、衣類や季節のアイテムを整理して収納できるのも安心ポイント。子ども部屋や書斎、趣味のスペースなど、使い方の自由度も高いお部屋です。

新設されたシステムキッチンは、ご家族が並んで調理できるほど広く、対面式のためゲストや家族と会話を楽しみながら作業できます。ディスポーザーや食洗器を搭載しており、日々の家事を効率よくサポート。収納スペースも十分に確保されており、調理器具や食器の整理もスムーズです。家族みんなが集まりやすいキッチンで、自然と笑顔が増える空間になりそう◎

落ち着いた木目調パネルを用いたバスルームは、足をゆったり伸ばせる広々としたバスタブを完備。追い焚き機能により、いつでも簡単にお湯の温度を調整できるのも嬉しいポイントです。さらに浴室乾燥機も搭載されており、雨の日の洗濯や湿気対策にも安心して活用できます。

上品なオフホワイトで統一されたサニタリースペースは、清潔感と洗練された印象を併せ持ちます。木目調の洗面化粧台が温かみを加え、両サイドに設けられたカウンターはメイクやヘアセットなど、日常の身支度を快適にサポート。使いやすさとデザイン性を両立させた空間です✧

テラスはタイル張りで、雨が降るたびに自然に汚れが流れ落ちる仕組み。1階部分ですがグリーンによる目隠しが施されているため外からの視線は気になりません。テラスチェアを置けば、朝のコーヒータイムや読書の時間を楽しむこともできる、プライベート感のある空間です☀
その他の室内・設備写真
東京グラウンド編集部の住まいレビュー
今回訪れたのは、池尻大橋駅から徒歩8分の場所に佇む『クラッシィハウス世田谷公園』。渋谷にも近く利便性が高い一方で、落ち着いた街並みが広がる魅力的なエリアです。ご紹介するのは1階に位置する3LDKのお部屋で、専有面積は72.51㎡とゆとりある広さ。お子様のいるご家庭でも快適に暮らせる空間です。室内はリノベーションが施されており、新築のような清潔感と明るさが際立っていました。シンプルな内装ながらピクチャーレールが設置されているため、アートや写真を飾って華やかさを加えることも可能。どんなテイストのインテリアとも相性が良く自分好みの空間づくりが楽しめそうです♪約5.0帖の洋室はメインルームと廊下のどちらからもアクセス可能。スライドドアを開ければリビングとつながり、家事をしながらお子様を見守れるキッズスペースとしてもぴったりです。また、テラスは西向きで柔らかい陽光が差し込み、爽やかなグリーンで目隠しされているため1階でも安心してアウトドア空間を楽しめます。気になる方はぜひ現地で、その快適さを体感してみてくださいね。 ライター:hana【25K14】
この物件の毎月の支払いイメージを
試算してみませんか?
頭金や返済年数などを入力するだけで毎月の合計支払額をシミュレーションできます。
15,980
毎月の支払い予想シミュレーション
※試算結果はあくまで目安であり、実際の借り入れを保証するものではありません。
※物件によっては上記以外の別途費用が発生する場合もございます。詳しくはお問い合わせくださいませ。
住戸概要
こちらのお部屋は販売終了いたしました
過去に販売したお部屋の一部をご紹介。
住まい探しやリノベーションのヒントにご覧ください。




[世田谷の安心の高台に住まう] クラッシィハウス世田谷公園
池尻大橋駅
徒歩8分

今回ご紹介する『クラッシィハウス世田谷公園』。2012年に建てられた地下1階付地上13階建て、総戸数195戸のビッグコミュニティです。

安心のダブルオートロックシステムによって、不審者が立ち入るリスクが軽減♪24時間ゴミ出し可能だったり、防災倉庫や太陽光システムも完備されていました。快適さと魅力で溢れています◎

戸数の多さもあって、駐輪場はたくさんの自転車が停められるビッグスペースでした。バイク置場も設けられていたり、車両の停め場所が充実しています♡

エントランス横にあるラウンジは、ホテルライクな開放感で満ち溢れていました!パーティールームでは、居住者さんが集まってヨガや集会が行われているんだとか。コミュニケーションが取りやすく、ご近所付き合いのきっかけになりそうですね♪
その他の共用部・設備写真
物件概要
設備・特徴
エレベーター オートロック 宅配BOX 防犯カメラ 新耐震基準適合
今回ご紹介するのは、東急田園都市線・池尻大橋駅より徒歩7分のマンションです。他にも、三軒茶屋駅や祐天寺駅なども徒歩圏内にありますよ☆合わせて3駅3路線を利用できるアクセスの良さを誇ります。駅を出ると、交通量が多い通りに出られました。用賀駅方面や調布駅方面などの所謂「世田谷エリア」には、バスに乗っての移動も叶います。歩きでは時間が掛かってしまう場所へ、比較的に行きやすいかもしれません!歯医者や内科医などのクリニックも、点々と見受けられました。何だかパワーをもらえる「池尻稲荷神社」。年の初めの運試しは、こちらでいかがですか?お洒落な飲食店が多く見受けられ、ランチ時に立ち寄りたくなるような佇まい♪深夜の買い出しに便利なコンビニもありますよ。マンションが近づくに連れて、「東京栄養食糧専門学校」や大きな「池尻地区会館」などが見えてきます。館内には、保育園や身体を動かせるトレーニングスペース「せたがやがやがや館」といった生活に嬉しい施設が充実!
アクセス
東急田園都市線 『池尻大橋』駅 徒歩8分
東急田園都市線/世田谷線 『三軒茶屋』駅 徒歩15分
東急東横線 『祐天寺』駅 徒歩20分
買い物
学区
※掲載している学区情報は、記事制作時点での参考情報です。
区域によっては学校の指定が異なる場合もありますので、詳細は必ずご確認ください。
その他
こちらの物件は弊社運営の別サイトでもご紹介中♪