間取り図
こちらの物件の仲介手数料は
個別にご案内いたします。
詳細をご希望の方は
お気軽にご相談ください。
お問い合わせはこちら
月々の支払い目安を見る
※ローンの⽬安は、頭⾦ゼロ、借⼊年数35年、都市銀⾏・変動⾦利0.595%(優遇利⽤を想定。) 審査内容により、融資の⼀部または全部をご利⽤いただけない場合がございます。予めご了承ください。
間取り図
502号室
編集部が実際に現地を訪れ、見たもの・感じたことをレポート。
図面だけでは伝わらない"リアルな空気感"をお届けします。
更新日:2026/01/24
更新日:2026/01/24
必要なものがぎゅっと詰まった

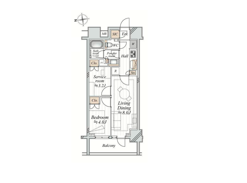
単身やパートナーとの新生活にオススメな1SLDKをご紹介します♪全体的にコンパクトな間取りになっていますが、その分動線にこだわった暮らしやすい配置になっていますよ。2025年11月に一部リノベーションが実施されていて、室内は綺麗な状態です。

リビングダイニングはおよそ8.0帖。天井が高い分、閉塞感はありません。白いクロスとフローリングを基調としたシンプルなデザインで、あらゆるテイストの家具にマッチします。自分好みにレイアウトしてくださいね。床暖房を完備しており、冬場でも快適です◎

キッチンは玄関から広がる廊下部分に。キッチン横に洗濯機置き場がある上に、すぐ後ろにサニタリールームへのドアがあるので、お料理をしながらお洗濯をしたり、お風呂を沸かしたりと同時進行できるのが便利ですね。カウンター部分に大理石調の素材が使用されたリッチなデザインが素敵です。

お次はサニタリールームへ。3面鏡の洗面化粧台なら、鏡の角度を変えてお顔や髪型をチェックできます◎水栓が洗面ボウルの上部にあるので、根元に水が溜まりません。カビが発生しにくくお手入れがしやすいですよ。リネン類は右手に設けられたリネン庫にしまってください。

優しい色合いのバスルームなら、1日の疲れをしっかり癒すことができるはず♪1216サイズなので1人で入るには十分な広さがありますよ。オートバス機能や追い焚き機能はもちろん、ミストサウナを搭載。普通の入浴の2倍も汗をかくそうなので良いデトックスになりますね。

およそ4.0帖の洋室。大きな窓が開放感をプラスしていますね。ローベッドや低めのマットレスを使うと圧迫感を減らすことができ、お部屋を広く見せることができるんだとか。天井まで届く大きなクローゼットがあるので、荷物はたくさんしまえます。

こちらはサービスルーム。約3.2帖とコンパクトなので仕事場や書斎、子供部屋などとして使うのはいかがでしょうか。窓が無い分日差しの影響を受けず、1日中作業に集中できますよ。お子さまのお昼寝場所にも良さそうですね。

防犯性の高いツーロックドアを開けると…大理石調のタイルが敷かれた玄関がお出迎え。人感センサー付きのライトがパッと照らしてくれるため、スイッチを探す手間が省けます。右手のドアを開けると…大きなシューズインクローゼットが。可動棚なのでロングブーツやハイヒールもすっきりしまえます。
その他の室内・設備写真
▲ このお部屋の雰囲気がお好みの方へ
東京グラウンド編集部の住まいレビュー
落ち着いた雰囲気のオフィス街、淡路町駅。スーパーやドラッグストアが多く、日用品や食料品の購入には困りません。飲食店も多く、特に神田方面に足を運ぶと下町情緒の漂う商店街や飲み屋があり、夜には仕事を終えた人々がお酒や食事を楽しんでいます。色々なジャンルのお店があるので、ぜひお気に入りのお店を探してみて下さいね。『ピアース千代田淡路町』の付近は駅近ながら人通りが少なく、静かに暮したい方にもおすすめできますよ。女性の一人暮らしにもピッタリです。
『ピアース千代田淡路町』はモノトーンで統一されたスタイリッシュなマンション。ホテルライクな雰囲気で、何気ない日常を特別なものに感じさせてくれるはず。今回ご紹介するのはナチュラルテイストの1SLDK。必要な設備がしっかり備わっているので、コンパクトながら暮らしにくさは感じません。特に水回りの機能性の高さは抜群です。背の高い方や体の大きな方は、内見の際に動線や広さを確認してくださいね。
大通りから離れている上、最寄り駅が地下鉄なので、駅徒歩1分の距離ながらお部屋の中はとても静か。アクセスの良さと快適な住環境の両方が手に入ります。 ライター:mii【26A24】
この物件の毎月の支払いイメージを
試算してみませんか?
頭金や返済年数などを入力するだけで毎月の合計支払額をシミュレーションできます。
11,490
毎月の支払い予想シミュレーション
※試算結果はあくまで目安であり、実際の借り入れを保証するものではありません。
※物件によっては上記以外の別途費用が発生する場合もございます。詳しくはお問い合わせくださいませ。
住戸概要
[千代田区の3駅から徒歩1分] ピアース千代田淡路町
淡路町駅
徒歩1分

モノトーンのスタイリッシュな外観が美しい『ピアース千代田淡路町』。モリモト株式会社旧分譲、2017年2月築の築浅マンションです。地上13階建て、総戸数71戸。

天井が高く開放的なエントランス。優雅な音楽が流れていました♪タッチキー式のオートロックを搭載しており、スムーズに解錠できるのが嬉しいですね。管理人室や防犯カメラも完備。

オートロックの先にはメールボックスやエレベーターホールが。荷物の受け取りに便利な宅配ボックスも備わっています。ちなみに、ゴミ出しは24時間可能。お好きなタイミングでゴミを捨てられると助かりますね。

モノトーンを基調としたクールな内廊下。カーペットが敷かれていて、足音や物音を吸収してくれます。マンション内はゴミ1つ見当たらず、管理体制の良さが伺えました。
その他の共用部・設備写真
物件概要
設備・特徴
エレベーター オートロック 宅配BOX 防犯カメラ 24時間ゴミ出し可 新耐震基準適合
『ピアース千代田淡路町』の近くには、淡路町駅・新御茶ノ水駅・小川町駅の3駅に繋がる駅の出口があります。そこからそれぞれの改札まで地下通路を歩く必要がありますが、複数駅・路線がまとまっているのは便利ですよね。駅前の「靖国通り」はたくさんの車が行き交う大通り。オフィスビルが多く都会的な雰囲気です。コンビニやドラッグストアが多いのでお買い物はしやすそう。美味しそうな飲食店もあちこちに♪
アクセス
東京メトロ丸ノ内線 『淡路町』駅 徒歩1分
東京メトロ千代田線 『新御茶ノ水』駅 徒歩1分
都営新宿線 『小川町』駅 徒歩1分
東京メトロ丸の内線/東西線/千代田線/半蔵門線/都営三田線 『大手町』駅 徒歩9分
買い物
学区
※掲載している学区情報は、記事制作時点での参考情報です。
区域によっては学校の指定が異なる場合もありますので、詳細は必ずご確認ください。
その他