間取り図
価格改定
なら
仲介手数料 無料!
追加費用も一切なし
マンションは、“どこから買うか”で
支払う費用が変わります
仕組みを詳しく見る
月々の支払い目安を見る
※ローンの⽬安は、頭⾦ゼロ、借⼊年数35年、都市銀⾏・変動⾦利0.595%(優遇利⽤を想定。) 審査内容により、融資の⼀部または全部をご利⽤いただけない場合がございます。予めご了承ください。
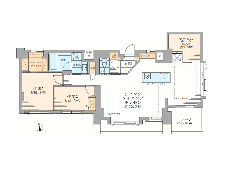
間取り図
1003号室
編集部が実際に現地を訪れ、見たもの・感じたことをレポート。
図面だけでは伝わらない"リアルな空気感"をお届けします。
更新日:2026/04/24
更新日:2026/04/24
ナチュラルな心地よさ

全居室南向きワイドスパンが魅力の陽当たり良好な2SLDK。新規リノベーションが施され、新築に近い感覚でお住まいいただけそうです。落ち着いた木目が基調とされ、爽やかで温かみを感じられる内装デザインが素敵です。

メインルームはおよそ22.3帖とゆとりのある空間です。横に広がりがあるレイアウトのため、リビングとダイニングそれぞれのスペースを無理なく配置することが出来そうですね。エアコンに加え電気式の床暖房が取り入れられ、オールシーズン快適にお過ごしいただけるのではないでしょうか。

私が実際にお部屋を見て一番印象に残ったのはこちらのアイランドキッチン。まるで家具のように洗練されたミニマルなデザインが素敵です。床や壁と近いトーンの木目が採用されていることにより空間にすっと溶け込んでいますね。使い勝手の良いアイランド型のレイアウトに、背面はカップボードが備えられ機能性も申し分ありません◎

窓が多い点もこのメインルームの魅力の1つ。バルコニーにアクセス可能な大きな窓に加え、ちょっとしたカウンターとしてもご利用いただける出窓も取り入れられていました。時間とともに光の表情が変わる窓辺の魅力をご堪能いただけます。

洗面化粧台には、シンプルながら高級感の漂うストーン調のカウンターが採用されていました。床のグレーのタイルと相性抜群ですね。洗面カウンターの下部にはオープンシェルフが取り入れられ、洗面&バス用品を収納しておくことが出来ます。

2つある洋室はそれぞれ約4帖と約5.8帖。寝室としてはもちろん、様々な用途に活用しやすい広さです。サービスルームはおよそ3.3帖と、寝室として活用するのにはやや手狭ですが、収納や書斎として利用するのにピッタリです。

約5.8帖の洋室には大容量のウォークインクローゼットが完備されていました。両サイドにハンガーパイプが取り付けられ、衣類をスッキリと収めることができるようになっています。小窓は北向きなので、直射日光による日焼けの影響を受けにくく、開放感を確保しつつ、安心して大切な衣類を保管できるのではないでしょうか。

アウトドアスペースは横長のバルコニーと奥行きのあるルーフバルコニーの2ヶ所あり、いずれもメインルームから出入りすることが可能です。外干しスペースとは別に、植物を育てたり、ベンチやチェアを置いて休憩スペースを設けたり、屋外空間を使い分けることができそうですね。
その他の室内・設備写真
▲ このお部屋の雰囲気がお好みの方へ
東京グラウンド編集部の住まいレビュー
東京メトロ南北線・都営大江戸線麻布十番駅から徒歩3分という好立地が魅力の『ライオンズマンション麻布十番南』。商店街のにぎわいを身近に感じながらも、一歩奥に入ると落ち着いた空気に包まれるエリアです。
今回の舞台は10階部分の2SLDK、専有面積77.25㎡のゆとりあるお部屋です。南東角住戸の利点を活かされた窓が多いメインルームは視線がすっと外へ抜け開放感抜群◎約22.3帖というゆったりとした空間も相まって、のびのびとした印象を受けました。
内装は新規リノベーションが施され、まるで新築のように清々しいお部屋でした。
特に魅力を感じたのは木目調のアイランドキッチン。メインルームの中心に配置されながら、フローリングに近いトーンの木目を採用したことにより空間と一体感があり圧迫感は感じさせません。
カップボードや背面の壁にも木目が取り入れられ、ナチュラルながら洗練されたまとまりのあるインテリアデザインが素敵ですよね。
見栄えの良さのみではなく、各所にバランスよく取り入れられた収納や、食洗機や床暖房などの便利な設備など、生活のしやすさにも気配りを感じる設計が印象的です。
利便性もデザイン性も妥協したくない方にピッタリの一室でした。ご内見お待ちしております。 ライター:kayo【26C07】
この物件の毎月の支払いイメージを
試算してみませんか?
頭金や返済年数などを入力するだけで毎月の合計支払額をシミュレーションできます。
21,990
毎月の支払い予想シミュレーション
※試算結果はあくまで目安であり、実際の借り入れを保証するものではありません。
※物件によっては上記以外の別途費用が発生する場合もございます。詳しくはお問い合わせくださいませ。
住戸概要
こちらのお部屋は販売終了いたしました
過去に販売したお部屋の一部をご紹介。
住まい探しやリノベーションのヒントにご覧ください。
東京グラウンド編集部の住まいレビュー
今回ご紹介したのは、麻布駅から徒歩3分という駅近好立地の『ライオンズマンション麻布十番南』にある一室。駅周りやマンションの近くには飲食店やコンビニ、スーパー、ドラッグストアなど、便利なお店が点在し生活しやすそうな環境が整っていました。新規リノベーションが施されまるで新築のように綺麗に生まれ変わったお部屋は、幅広い層にオススメの2SLDK。全体的に淡い色で統一されたナチュラルなお部屋はどんなインテリアにもマッチしそうです。洋室&サービスルームは全て4帖以上が確保されたバランスの良い間取りに。寝室としてはもちろん、書斎やストレージルームなどライフスタイルや家族構成に合わせて多種多様な活用方法ができそうです。約4帖の洋室はメインルームと大開口可能な引き戸で区切られているので、扉を開いたままにしてLDKの一部としてご活用いただくことも可能ですよ。デザイン性と利便性を兼ね備えたお部屋でした。ぜひ一度内見してみてくださいね。 ライター:kayo【25J22】
[自慢の立地] ライオンズマンション麻布十番南
麻布十番駅
徒歩4分

こちらの1997年3月築の『ライオンズマンション麻布十番南』は、鉄骨鉄筋コンクリート造11階建て総戸数53戸の新耐震基準適合マンションです。建物の多い都会的な街並みの中に位置していますが、2面が道路に接地し密接した建物がないのでお部屋によっては日当たりが期待できそうですね。

落ち着いたグレーのタイル貼の階段を数段下った所にエントランスがありました。階段の対面にはスロープも設けられているので車イスやベビーカーをご利用の方でもスムーズに往来することが出来るのではないでしょうか。

エントランスは二重扉となっており、入口のグレーのスライドドアの先には更にオートロックを完備した扉が完備されていました。いずれも自動ドアとなっており、両手が塞がっていても出入りがしやすいですよ。

大小さまざまな荷物に対応している宅配ボックスが設置されていました。不在時にも配達してもらうことが出来てとっても便利ですね。共用部は全体的にとても綺麗に保たれており、管理体制良好の様子でした。
その他の共用部・設備写真
物件概要
設備・特徴
エレベーター オートロック 宅配BOX 防犯カメラ 新耐震基準適合 建物状況調査済
麻布十番エリアは、昔ながらの下町情緒と国際色豊かな雰囲気が交差する街です。江戸時代から続く麻布十番商店街には老舗の和菓子屋や豆菓子店があり、歴史を感じさせる一方で、近年はおしゃれなカフェやレストランも増え、日常の買い物からグルメまで幅広く楽しめます。大使館が点在する立地柄、外国人居住者も多く、国際的で開放的な空気が漂うのも特徴。さらに六本木ヒルズや東京ミッドタウン、有栖川宮記念公園といった大型施設や緑豊かなスポットも徒歩圏にあり、都会的な利便性と安らぎを同時に享受できます。アクセスも良好で、都心で快適かつ豊かな暮らしを求める方に理想的なロケーションです。
アクセス
東京メトロ南北線/都営大江戸線 『麻布十番』駅 徒歩4分
東京メトロ日比谷線 『広尾』駅 徒歩16分
東京メトロ日比谷線/都営大江戸線 『六本木』駅 徒歩16分
買い物
学区
※掲載している学区情報は、記事制作時点での参考情報です。
区域によっては学校の指定が異なる場合もありますので、詳細は必ずご確認ください。
その他
こちらの物件は弊社運営の別サイトでもご紹介中♪
ライオンズマンション麻布十番第2もご紹介中
ライオンズマンション麻布十番第3もご紹介中
ライオンズマンション麻布十番もご紹介中
ライオンズマンション麻布十番南もご紹介中