購入・売却・リノベ・無料相談はこちら 公式LINEで気軽に相談

西麻布フォレストプラザ

西麻布フォレストプラザ

URLとタイトルをコピーしました!

【仲介手数料無料・掲載写真82枚】港区西麻布3-6-3/広尾駅徒歩9分/駐車場有/新耐震基準適合/総戸数50戸/定休日なしで内見予約・無料相談受付中です!
この物件の売却相談はこちら
仲介手数料無料
1F
27,800万円
成約済み
販売終了物件

間取り図

URLとタイトルをコピーしました!
  • 価格改定

27,800万円
71.41㎡
2LDK
なら

仲介手数料 無料!

通常
924万円
当社
0

追加費用も一切なし

マンションは、“どこから買うか”で
支払う費用が変わります

仕組みを詳しく見る

月々の支払い目安を見る

ローンの目安
733,000円/月
管理費
24,900円/月
修繕積立金
23,780円/月
合計
781,680円/月

※ローンの⽬安は、頭⾦ゼロ、借⼊年数35年、都市銀⾏・変動⾦利0.595%(優遇利⽤を想定。) 審査内容により、融資の⼀部または全部をご利⽤いただけない場合がございます。予めご了承ください。

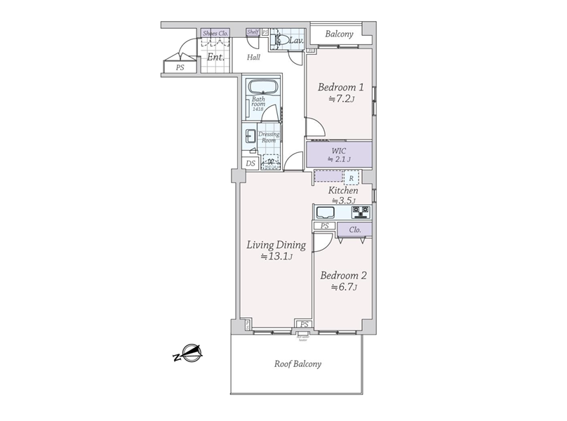
間取り図

1F
71.41㎡ 2LDK

編集部の
部屋レポ

編集部が実際に現地を訪れ、見たもの・感じたことをレポート。
図面だけでは伝わらない"リアルな空気感"をお届けします。

更新日:2026/02/25

更新日:2026/02/25

高台だから叶う、抜け感のある日常

その他の室内・設備写真

▲ このお部屋の雰囲気がお好みの方へ

東京グラウンド編集部の住まいレビュー

広尾駅から徒歩9分。ゆるやかな坂を上った高台に佇むのが今回ご紹介する『西麻布フォレストプラザ』です。都心に位置しながらも、どこか静けさを感じるロケーション。現地に立つと、車通りの喧騒から少し距離を置いた穏やかな空気が流れていました。

エントランスを抜け、向かったのは1階部分のお部屋。1階と聞くと眺望やプライバシーが気になる方もいるかもしれませんが、こちらは高台に建つマンションのため、実際にルーフバルコニーへ出てみると視界がしっかりと開けており、想像以上の開放感がありました。通りにも面していないため車の走行音もほとんど気にならず、ゆったりとした時間が流れています。室内は専有面積71.41㎡の2LDK角住戸。2026年1月末にリノベーションが完了したばかりで、扉を開けた瞬間に感じるのは“新築のような清潔感”。クロスやフローリング、水回りまで一新されており、気持ちよく新生活をスタートできる状態です。

約13.1帖のメインルームは縦長の形状で、自然とリビングとダイニングをゾーニングできる設計。ストーン調のアクセントクロスがさりげなく上質さを添え、間接照明の柔らかな光が空間を包み込みます。実際に立ってみると光と素材感のバランスが心地よく、長く居たくなるリビングだと感じました。約7.2帖の洋室はデッドスペースが少なく、家具配置がしやすい整形空間。約2.1帖のウォークインクローゼットを備え、衣類から季節家電までしっかり収納可能です。もう1つの6.7帖の洋室は、大きな掃き出し窓から午後のやさしい光が差し込む明るいお部屋。シンプルな内装なので、自分好みのインテリアで彩る楽しみも広がります。

そしてルーフバルコニーへ。1階でありながら高台立地の恩恵を受け、視界は開放的。静かな環境の中、テーブルセットを置けばアウトドアリビングとしても活用できそうです。洗濯物を干すだけではもったいない、そんなゆとりある空間でした。ぜひ、気になる方は現地にて直接ご確認ください✿ ライター:hana【26B25】

この物件の毎月の支払いイメージを
試算してみませんか?

頭金や返済年数などを入力するだけで毎月の合計支払額をシミュレーションできます。

27,800

万円

最初にまとめて支払うお金です。
頭金なしでもローンは組めますので
ご安心ください。

万円

ローンを何年かけて返済するかを
入力します。よくある期間は
35年、30年、20年など。

変動金利で0.3〜0.6%(低金利だが将来的に変動)、固定金利で1.0〜1.5%(返済額がずっと一定で安心)が一般的な目安です。

毎月の支払い予想シミュレーション

ローン支払い目安
733,000円/月
管理費
24,900円/月
修繕積立金
23,780円/月
合計
781,680円/月

※試算結果はあくまで目安であり、実際の借り入れを保証するものではありません。
※物件によっては上記以外の別途費用が発生する場合もございます。詳しくはお問い合わせくださいませ。

住戸概要

価格
27,800万円
所在階
1階
間取り
2LDK
専有面積
71.41㎡
バルコニー
1.94㎡
管理費
24,900円/月
修繕積立金
23,780円/月
ルーフバルコニー
12.49㎡
リノベーション住宅ローン控除対象

こちらのお部屋は販売終了いたしました

編集部の
部屋レポ

過去に販売したお部屋の一部をご紹介。
住まい探しやリノベーションのヒントにご覧ください。

▲ このお部屋の雰囲気がお好みの方へ

東京グラウンド編集部の住まいレビュー

落ち着きがあり、おしゃれな街として人気の広尾エリア。街は綺麗に整備されて、洗練された上品な街並みが広がっています。そんな『広尾』駅を最寄りとするこちらのマンション。近代的な外観が特徴的で、立地にふさわしい高級感のある雰囲気。お部屋は使い勝手の良いサービスルーム付き2SLDK。自宅でお仕事をされる方にもピッタリな物件です。トランクルームが使用可能なので、アウトドア用品などをしまえるため、アクティブな方にもおすすめです。 ライター:渡邊【22C15】

建物と街のようす

[自然を浴びてお家へ帰ろう] 西麻布フォレストプラザ

港区西麻布3-6-3MAP

広尾駅

徒歩9分

外観・共用部

その他の共用部・設備写真

物件概要

物件名
西麻布フォレストプラザ
所在地
港区西麻布3-6-3
築年月
平成11年/1999年3月
構造
鉄骨鉄筋コンクリート・鉄筋コンクリート造
階数
地下1階付 14階建
土地
所有権
総戸数
50戸
管理会社
三井不動産レジデンシャルサービス株式会社
駐車場
有 (33,000円~37,000円/月)
ペット飼育
不可

設備・特徴

エレベーター オートロック トランクルーム 防犯カメラ 新耐震基準適合

アクセス・周辺環境

広尾プラザ広尾プラザ
ケンタッキー・フライド・チキンケンタッキー・フライド・チキン
スターバックスコーヒースターバックスコーヒー
外苑西通り外苑西通り
西麻布フォレストプラザ周辺西麻布フォレストプラザ周辺
広尾プラザ広尾プラザ
ケンタッキー・フライド・チキンケンタッキー・フライド・チキン
スターバックスコーヒースターバックスコーヒー
外苑西通り外苑西通り
西麻布フォレストプラザ周辺西麻布フォレストプラザ周辺

広尾駅は都心にありながら落ち着いた空気が流れる、洗練された住宅エリアの玄関口。東京メトロ日比谷線が利用でき、六本木や銀座、霞ケ関方面へダイレクトにアクセス可能。主要ビジネスエリアや商業地へ乗り換えも少なく移動できるため、通勤・通学の利便性は非常に良好です。駅周辺には上質なスーパーやベーカリー、カフェ、インターナショナルなレストランが点在し、日常の買い物から外食まで高いクオリティが揃います。大使館が多く集まるエリアということもあり、街にはどこか品のある国際色が漂い、落ち着いた雰囲気が印象的です。さらに、徒歩圏内には緑豊かな有栖川宮記念公園が広がり、都心とは思えないほどの自然を感じられます。木々に囲まれた園内は散歩やジョギング、休日のリフレッシュに最適。駅近でありながら、静かな住宅街が広がる住環境は、利便性と穏やかさを兼ね備えています✿

アクセス

東京メトロ日比谷線 『広尾』駅 徒歩9分

東京メトロ日比谷線/都営大江戸線 『六本木』駅 徒歩10分

東京メトロ南北線/都営大江戸線 『麻布十番』駅 徒歩12分

買い物

まいばすけっと 西麻布3丁目店
徒歩4分(300m)
セブンイレブン 西麻布3丁目店
徒歩1分(26m)
ウエルシア南麻布店
徒歩7分(500m)

学区

笄小学校
徒歩4分(290m)
高陵中学校
徒歩12分(800m)

※掲載している学区情報は、記事制作時点での参考情報です。
区域によっては学校の指定が異なる場合もありますので、詳細は必ずご確認ください。

その他

有栖川宮記念公園
徒歩4分(290m)
こんなお部屋に住みたい方へ リフォーム:リノベーション

不動産にまつわるご相談・ご質問・資料請求など
まずはお気軽にお問い合わせくださいませ。